Facebook

Moat Lane, Pulborough, RH20

4 Bed │ 2 Bath │ 1 Rec

Guide Price £599,950

Save
Storrington

Christina Bearryman

Sales Associate

Key features

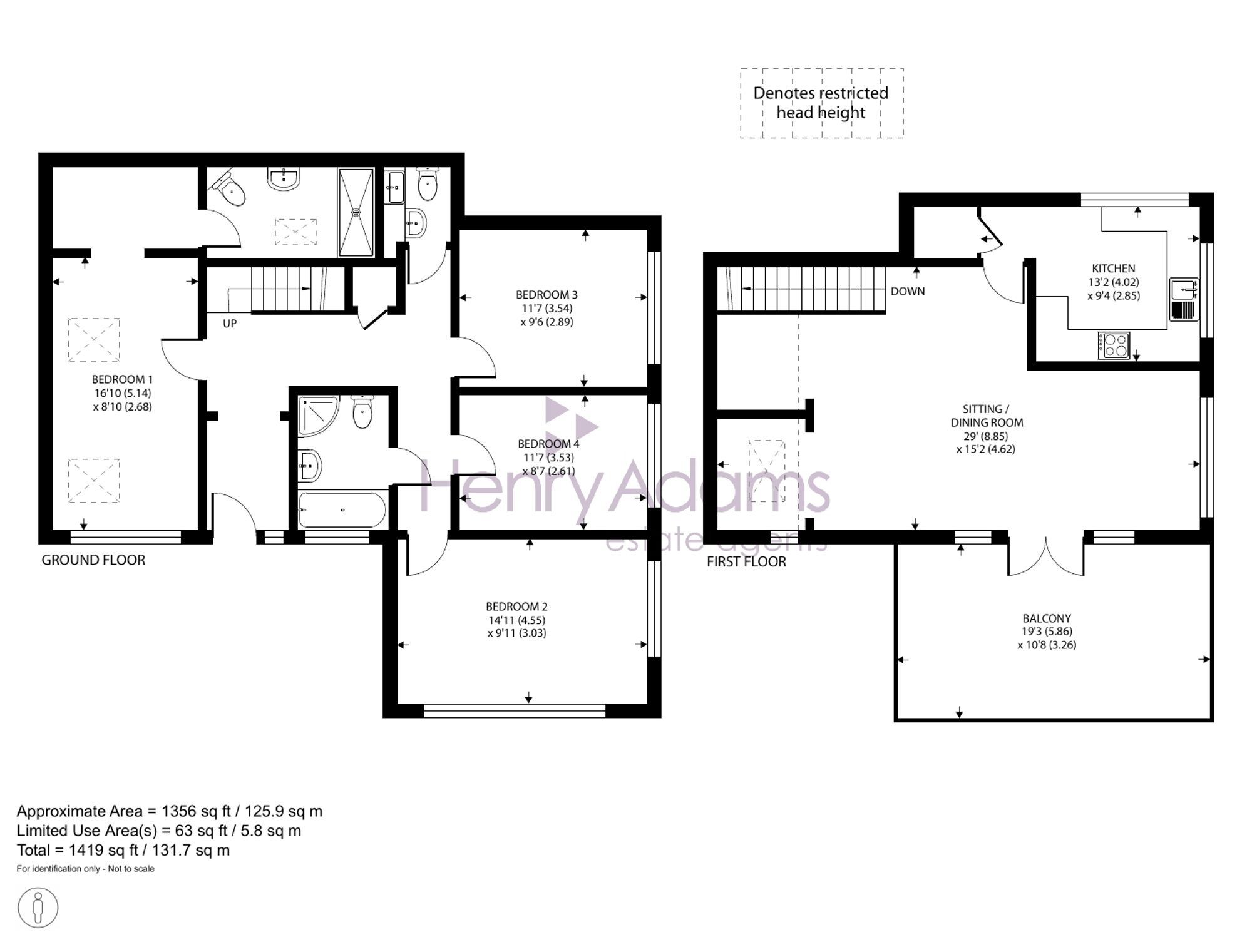
  • A unique upside down house with first floor sitting room to appreciate the stunning views over the Pulborough Wildbrooks and towards the South Downs
  • Main bedroom with en-suite shower room and dressing area with fitted wardrobes
  • Three further double bedrooms, family bathroom and separate cloakroom
  • Sitting / dining room with access onto roof terrace and lovely outlook
  • Kitchen with space for appliances and utility cupboard with plumbing for washing machine
  • Parking for two vehicles
  • Garden with ornamental pond
  • Lovely roof terrace ideal for entertaining
  • Walking distance to the station, school and shops

Full description

Located in the idyllic surroundings of Pulborough with spectacular views stretching over the Pulborough Wildbrooks and towards the South Downs. This unique 4 bedroom detached house offers a truly distinctive living experience. Designed in an upside-down style, the first floor boasts a spacious sitting room that provides a perfect vantage point to admire the views. The main bedroom features an en-suite shower room and dressing area with fitted wardrobes, while three additional double bedrooms, a family bathroom and additional cloakroom ensure ample accommodation space. The sitting/dining room opens onto a delightful roof terrace, offering a charming outlook ideal for relaxing or entertaining. The kitchen, complete with space for appliances, is a functional and bright inviting space. Parking is available for two vehicles, adding convenience for residents. This residence is within walking distance to the station, school, and shops, providing accessibility and convenience for daily life.

The outdoor space of this property is a sanctuary in itself, offering a tranquil escape from the every-day hustle and bustle. The garden features an ornamental pond, adding a touch of serenity to the surroundings, there is a useful garden shed and outside power sockets. A lovely roof terrace complements the property, providing an additional outdoor space perfect for hosting gatherings or simply enjoying the fresh air. With its convenient location and unique design, this residence presents an opportunity to savour a sophisticated lifestyle amidst the natural beauty of Pulborough.

Situation

The area around Pulborough provides a wide range of sporting and recreational facilities with West Sussex Golf Club and other golf clubs further afield at Cowdray Park and Goodwood. There is gliding at nearby Parham, theatres at Chichester, Horsham and Worthing and sailing centres all along the coast. The local countryside provides numerous walks and bridle paths including the South Downs Way. Of special note is the RSPB nature reserve at Wiggonholt Brooks. Pulborough has rugby, bowls and cricket clubs, where there are leisure centres at Storrington and Billingshurst. There is a main line railway station with links to London Victoria and the South Coast. Schooling locally is St Mary’s C of E aided primary school and secondary school is The Weald School in Billingshurst.
  • Entrance Hall
  • Bedroom 1
  • En-Suite Shower Room
  • Bedroom 2
  • Bedroom 3
  • Bedroom 4
  • Bathroom
  • First Floor
  • Sitting / Dining Room
  • Kitchen

Council Tax Band: F

Tenure: Freehold

EPC Rating: D

Why live in Storrington?

This picture-perfect village lies at the foot of the South Downs National Park, halfway along the South Downs Way. Properties here include bungalows, family homes and the famous Wells cottages that were individually designed by the architect Reginald Fairfax Wells in the 1920s to look and feel like 17th century buildings with thatched roofs, small windows and whitewashed exteriors.

Many of the homes in Storrington have wonderful views across rolling countryside and a conservation area just off the bustling high street ensures Storrington will remain as beautiful as it is today for generations to come.

There are lots of specialist shops in the town and convenient amenities such as the large recreational ground with its football and cricket pitches, the Chanctonbury Leisure Centre and an abundance of community groups offering classes in all sorts of interesting activities from ballroom dancing to photography. For a spot of culture, visit the Parham House and Gardens or the local Storrington and District Museum and for outdoor pursuits, take time to explore the natural beauty of the South Downs on foot, bike or horseback or, for a truly spectacular experience, take to the air in a glider.

Our local schools belong to a cluster group called STARS (Storrington Area Rural Schools) and, between them, offer a choice of paths from Reception through to Year 13. Steyning Grammar School is included in the list of STARS and is a popular choice as it’s non-selective and has its own Sixth Form.

Storrington is well connected too; the nearest train station is in the neighbouring village of Pulborough. The five-mile journey only takes 10 minutes by car or you can take a bus; the bus timetable is synced with the train timetable to make life even easier for local commuters.

If you’d like to buy, sell or let a property in Storrington, get in touch with your local team and discover the Henry Adams difference for yourself.

Read more