Facebook

The Bridgeway, Selsey, PO20

3 Bed │ 1 Bath │ 2 Rec

Guide Price £300,000

Save
Selsey

Kevin Daymond

Partner

Key features

  • Quirky and individual semi detached bungalow
  • Offered to the market for the 1st time since the late 80's
  • Property is believed to be on non-standard construction ( timber framed )
  • Three double bedrooms
  • Two bathrooms
  • Sought after road
  • Driveway for 4/5 cars and detached double garage
  • Cash buyers only due to nature of the construction
  • Gardens to the rear with additional area of garden behind double garage
  • No onward chain

Full description

This quirky and individual semi-detached bungalow is offered to the market for the first time since the late 1980s, presenting a rare opportunity to acquire a unique home in a sought after road. Believed to be of non-standard construction (timber framed), requiring modernisation and updating the property is available to cash buyers only due to the nature of its build. The interior comprises three double bedrooms, offering ample accommodation for families or those seeking versatile living space. There are two bathrooms, providing convenience for residents and guests alike. The home is offered with no onward chain, ensuring a straightforward purchase process. The property also benefits from a generous driveway with space for four to five cars and a detached double garage. With its distinctive character and flexible layout, this bungalow represents a fantastic opportunity for buyers seeking something out of the ordinary.

The outside space is equally impressive, with gardens that wrap around two sides of the home and the main area situated to the rear. The gardens are mainly laid to lawn, interspersed with mature flower and shrub borders and beds, creating a private and tranquil setting. A paved seating area provides the perfect spot for outdoor dining or relaxation. Behind the double garage, there is an additional section of garden designed to mimic a wild flower meadow, further enhancing the property’s appeal for nature lovers. The driveway approaches the property as a single track, offering parking for two to three cars, before widening into a double driveway with further parking that leads directly to the detached double garage. The garage itself is in need of complete overhaul or renewal but currently features twin double wooden barn style doors, adding to the property’s character. This extensive outside space, together with the ample parking and garage facilities, makes the property particularly attractive for families or those who enjoy gardening and outdoor living.

Situation

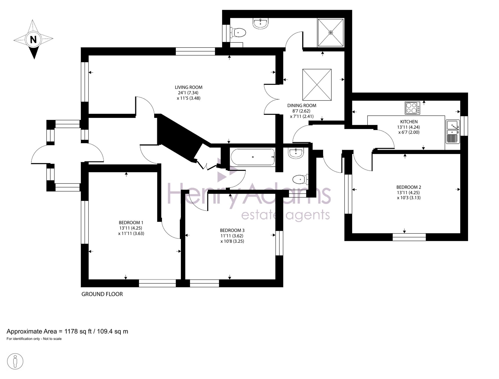
  • Entrance Porch 7' 4" x 3' 7" (2.23m x 1.09m)
  • Entrance Hall
  • Living room 24' 1" x 11' 5" (7.33m x 3.49m)
  • Dining room 8' 7" x 7' 11" (2.62m x 2.41m)
  • Shower Room
  • Rear lobby/hallway
  • Kitchen 13' 10" x 6' 7" (4.21m x 2.00m)
  • Bedroom Two 13' 11" x 10' 3" (4.23m x 3.13m)
  • Inner hallway
  • Bedroom One 13' 11" x 11' 11" (4.25m x 3.63m)
  • Bedroom Three 11' 10" x 10' 7" (3.61m x 3.23m)
  • Bathroom

Council Tax Band: D

Tenure: Freehold

EPC Rating: E

Why live in Selsey?

It may be classed as a town, but Selsey is still a seaside village at heart and, whether you’re looking for a dream home by the beach, a place to indulge your passion for watersports or a quiet retreat away from the hustle and bustle of life, Selsey has it all.

The old town in the south east quarter is known for its charming historic properties, including 17th century thatched houses while you’ll find many large and secluded homes offering stunning views of the water by the seafront. The north of Selsey has many 1970s style properties with more substantial, semi-rural homes set around them.

You’ll find a great selection of shops, pubs and restaurants right here on the High Street along with a strong sense of community, especially at Christmas when the Selsey Lights are a sight to behold. We have two local primary schools, Medmerry Primary and the Seal Primary Academy, and The Academy Selsey senior school in the town with more options in Chichester, including Chichester High School.

Selsey has a long-standing love of sport and is proud home to both Selsey Cricket Club and the Selsey Football and Social Club, as well as a bowls and tennis club, but you’ll find even more sporting activity by the water. If you like scuba diving or snorkelling we have some of the best water for diving in the UK, with more than 100 wrecks to explore just off the coast. If you’re keen to learn, the Mulberry Divers Centre on East Beach offers tuition to everyone from complete beginners to advanced divers. There’s swimming, sailing and windsurfing around the Selsey Bill headland or bike rides along the coastal cycle path or to the stunning beaches at Bracklesham Bay, East Wittering or West Wittering where you can feel the sand under your feet.

While Selsey offers the best of seaside living, it’s just less than 10 miles from the cultural heartland of Chichester and everything that the famous cathedral city has to offer, from the plentiful shops to the Festival Theatre. So you see, Selsey really does have it all.

If you’d like to buy, sell or let a property in Selsey, get in touch with your local team and discover the Henry Adams difference for yourself.

Read more