Facebook

Duncan Road, Chichester, PO19

3 Bed │ 1 Bath │ 2 Rec

In Excess of £350,000

Save
Chichester

Richard Longhurst

Partner

Key features

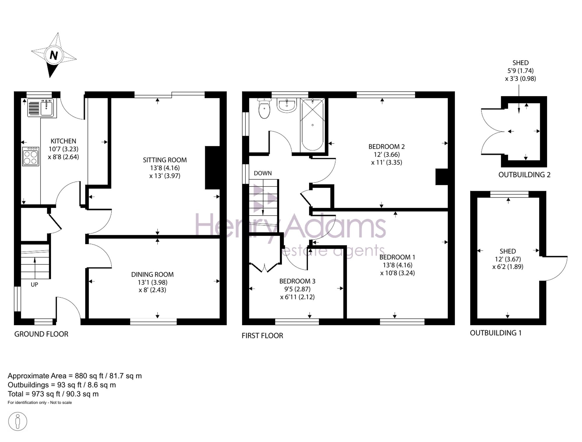
  • 880 sqft end terraced house
  • Two reception rooms
  • Three bedrooms
  • Large south facing rear garden
  • Off-road parking for two cars
  • Handy for local shopping parade and primary schools
  • No onward chain

Full description

A bright and spacious end of terrace house in a popular and convenient location.

This bright and spacious three-bedroom end-terraced house is ideally situated just one mile north-west of the city centre, offering convenience and comfort in a popular residential location. The property is set behind a half tile-hung front elevation and benefits from a driveway providing off-road parking for two cars, along with side pedestrian access.

Inside, a well-proportioned entrance hall leads to the south-facing sitting room, which enjoys an abundance of natural light and features sliding patio doors opening directly onto the rear garden. A separate dining room provides additional space for family meals or entertaining, while the fitted kitchen comes complete with an integrated electric cooker, gas hob, cooker hood, fridge and freezer.

Upstairs, there are three good-sized bedrooms and a family bathroom fitted with an electric shower over the bath.

The south-facing rear garden is a particular feature of the property, offering generous patio areas and a lawn, perfect for outdoor living. A brick-built shed provides useful storage.

With no onward chain, this home represents an excellent opportunity for buyers seeking space, light, and a well-connected location close to the city centre.

Chichester District Council - 25/26 Tax Band C £2,077.38 EPC-C

Directions - From the Northgate circulatory system, proceed north west along St Pauls Road (B2178). Pass Parklands Road on your left and proceed up the hill and take the next turning on your left into Sherborne Road. Take the second turning on the left into Duncan Road and number 28 is on right after Bell Close. what3words - chop.refers.edit

Situation

The sought after Parklands area of Chichester is close to countryside and the Centurion Way cycle path, linking West Dean and Chichester. Nearby is a parade of local shops, primary and secondary schools. The city centre of Chichester offers excellent high street shopping, many fashionable restaurants, cafes and bars, Festival Theatre and a mainline station to London Victoria. Goodwood is famous for its many event days including the world renowned Festival of Speed and Goodwood Revival for motor racing enthusiasts and a season of horse racing including the Qatar Goodwood Festival . There are excellent sailing facilities around Chichester Harbour and water sports from the beaches at West Wittering. The area is a paradise for wildlife enthusiasts, with beautiful walks and cycle tracks over the South Downs and around the harbour.

Council Tax Band: C

Tenure: Freehold

EPC Rating: C

Why live in Chichester?

We consider ourselves very lucky to be working in a city that blends so many different architectural styles, from elegant Georgian buildings to contemporary new apartments and waterside properties that overlook the harbour.

In 2013, The Sunday Times listed Chichester as one of the top places to live in the UK with ‘something for everyone’ – and they weren’t wrong. Chichester is a cathedral city, a county town and home to some of the oldest churches and buildings in the country. There are many well-regarded public and state schools in the local area with further and higher education options available from Chichester College, West Dean College and the University of Chichester. Our great schools have always made Chichester very appealing for those looking for the perfect place to raise a family.

Our city centre is a shopper’s paradise and there are great places to eat and drink, from elegant restaurants to cosy cafés and pubs, all set along the city’s four main streets. Chichester Cathedral on West Street dominates the skyline and, on summer afternoons, its grounds are filled with local people enjoying picnics. In the evenings, the Cathedral plays a central part in the city’s nightlife by hosting classical music events.

Chichester has a number of public parks, the Chichester Tennis and Racquets Fitness Club and Westgate Leisure Centre, where you’ll find a large swimming pool and skate park and, if sailing is your thing, Chichester Harbour is a haven for you. There really is so much to do here you’ll be spoilt for choice; spend the day on one of the many local beaches, stretch your legs on the stunning South Downs or catch a show at the Festival Theatre before it moves to a permanent home in London’s West End.

If you’d like to buy, sell or let a property in Chichester, get in touch with your local team and discover the Henry Adams difference for yourself.

Read more