Facebook

Charlmead, East Wittering, PO20

3 Bed │ 2 Bath │

Offers in Region of £800,000

Save
East Wittering

Daniel Forsythe

Branch Manager

Key features

  • Well-presented detached home in a private cul-de-sac
  • Short walk to the beach
  • Open-plan kitchen, dining/sitting room
  • Log-burning stove and double-height living area
  • Three bedrooms
  • En Suite shower room
  • West facing rear garden
  • Garden cabin with power connected
  • No forward chain

Full description

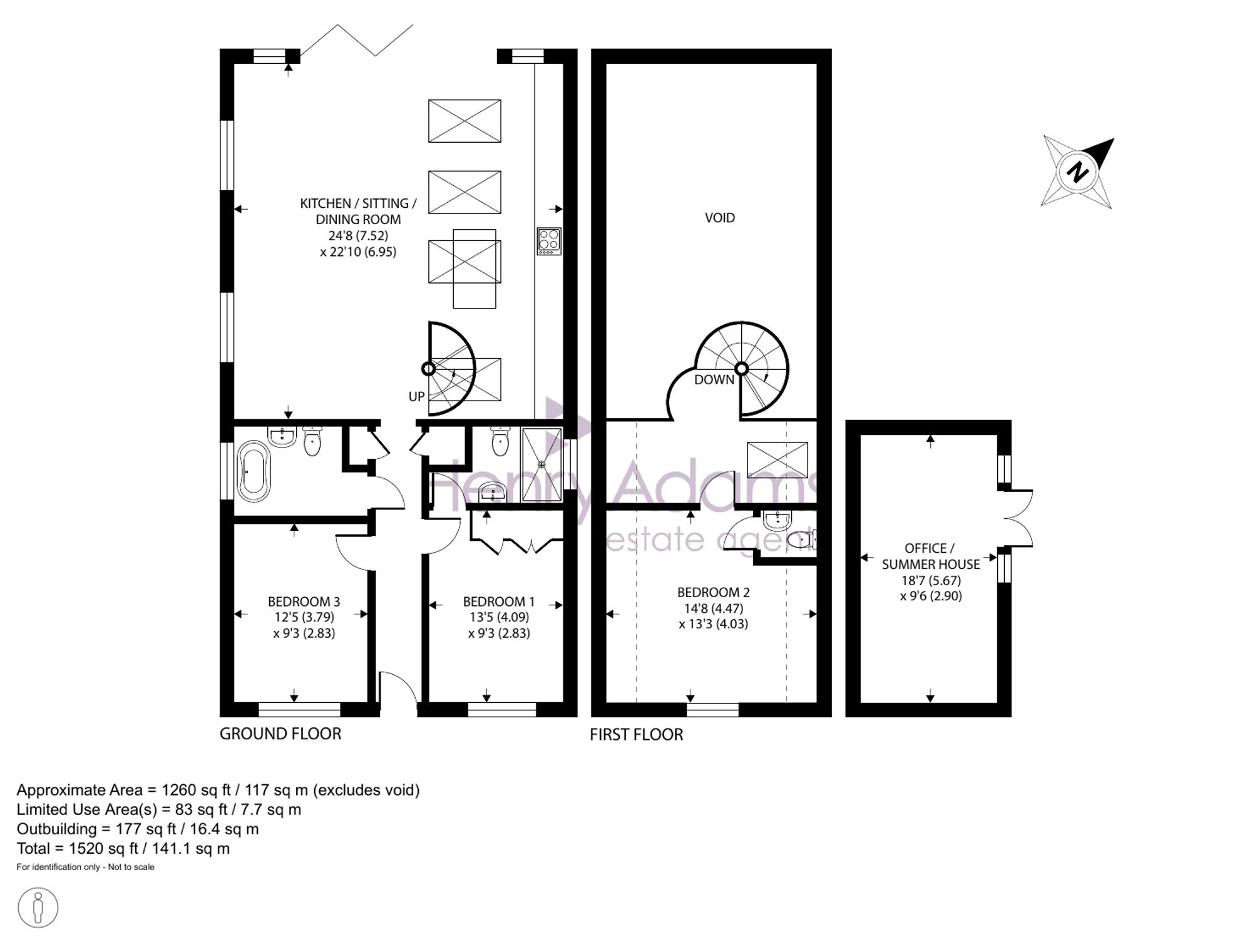
Sea Shanty is a well-presented coastal home set in a quiet private cul-de-sac, just a short walk from the beach. The main living space is a generous open-plan kitchen, dining and sitting room extending over 24 ft, with a log burning stove as a focal point and doors opening onto the west-facing deck and garden. It is a bright, practical space that works well for both day to day living and entertaining. On the ground floor there are two good size double bedrooms. The principal bedroom has built-in storage and a modern en-suite shower room, while the family bathroom is finished with tongue and groove panelling, giving a clean coastal feel.

 A spiral staircase leads to the first floor, where there is a further spacious double bedroom with its own en-suite cloakroom, overlooking the double-height living area below. The house has a simple, relaxed style throughout and benefits from underfloor heating. Outside, the west-facing garden enjoys afternoon and evening sun, and there is a hot tub and separate cabin with power ideal for working from home or additional space as needed. To the front, there is parking for several vehicles.

Situation

Situated within walking distance from the beach, some 7 miles to the south-west of Chichester. The beaches in the Witterings enjoy views towards the Isle of Wight and are popular with Kite surfers and Windsurfers. The village nearby offers a range of local facilities including: infants/junior school, GP’s surgery, dentist, library, 2 mini supermarkets and a range of quality independent shops. There is also a regular bus service to Chichester with its wide range of shops, cinemas, restaurants, Festival Theatre and main line railway station. The world-famous Goodwood Racecourse and Motor Circuit are some 3 miles beyond Chichester.

Council Tax Band: E

Tenure: Freehold

EPC Rating: B

Why live in the Witterings?

People flock to East Wittering during the holiday season thanks to our world-famous beaches that are so beautiful and a way of life that’s relaxed and warm.

It’s little wonder we experienced significant building development during the 1960s and ‘80s when our rich mix of character house styles in the Witterings made it hard for people to leave. Many of the properties in the area enjoy wonderful views across the English Channel and the sound of distant waves provides a soothing backing track to everyday life here.

There’s no shortage of things to do in the area, especially if you enjoy spending time on the beach, playing water sports and experiencing the countryside and wildlife.  Both East and West Wittering are well known for sailing and surfing and there are local sailing clubs at West Wittering, Itchenor and Dell Quay and mooring facilities at Chichester Marina. West Wittering beach is postcard-perfect with its vast expanses of fine golden sand while East Wittering is more typically English with a shingle shelf that’s exposed when the tide goes out leaving behind stunning areas of wet sand where you can make sandcastles to your heart’s content. The nearby Bracklesham Bay is especially popular with surfers, divers, windsurfers and paddle boarders as well as being a treasure trove for fossil hunters.

We have everything here you need to enjoy this idyllic lifestyle here. In the village you’ll find a good selection of shops, including mini supermarkets, greengrocers, butchers, banks, bakers and a fishmonger and everything is close by in Chichester and Portsmouth.  We have two local schools for children up to 11 years of age at East Wittering Community Primary School and West Wittering Parochial C of E School and a choice of secondary schools and further education options in Chichester.

If you’d like to buy, sell or let a property in East Wittering, get in touch with your local team and discover the Henry Adams difference for yourself.

Read more