Facebook

Beach Road, Selsey, PO20

4 Bed │ 2 Bath │ 1 Rec

Guide Price £395,000

Save
Selsey

Kevin Daymond

Partner

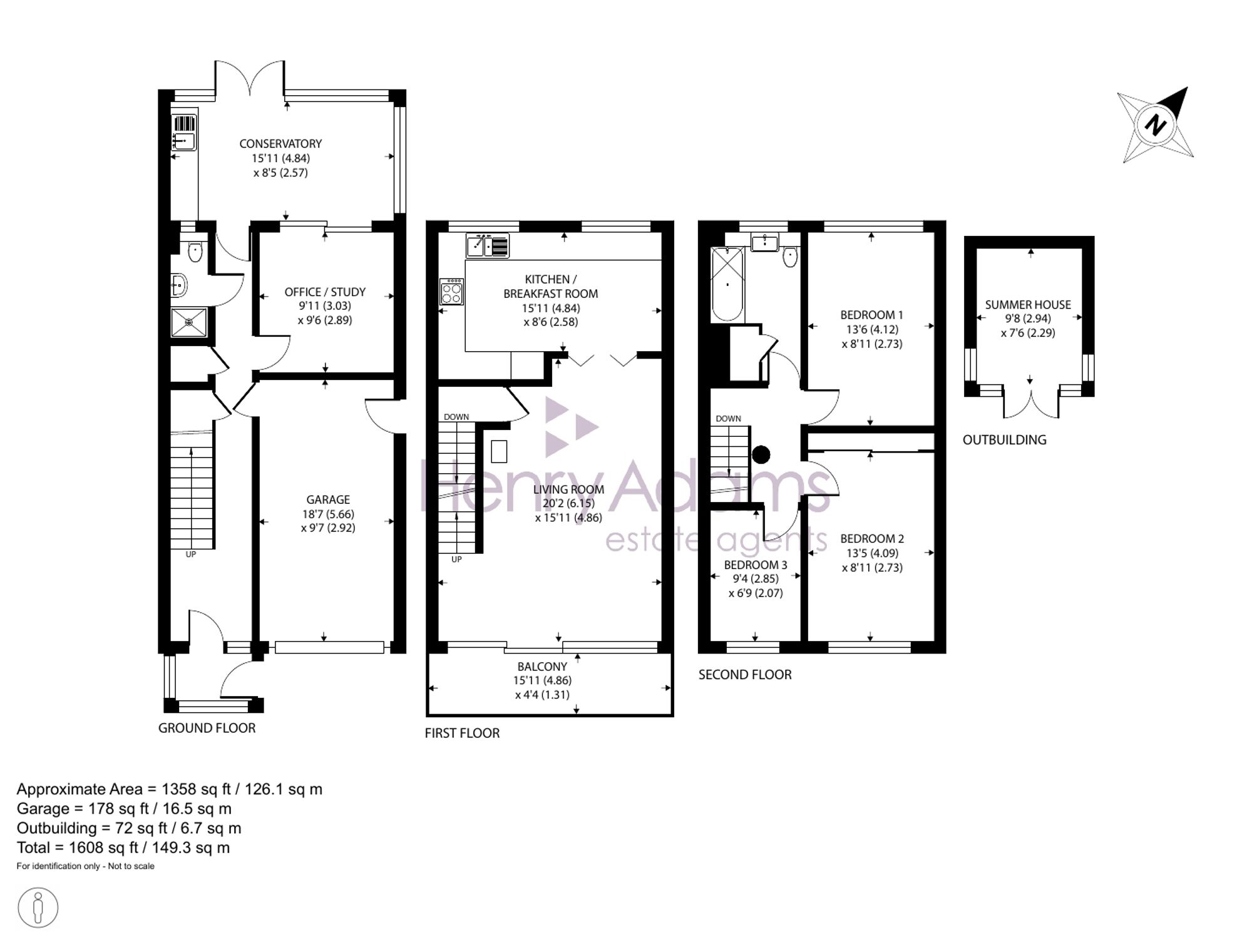
Key features

  • Three story town house with seaview
  • Flexible accommodation with 3/4 bedrooms
  • Ground floor shower room and top floor bathroom
  • Living room with balcony and seaview
  • Conservatory
  • Kitchen dining room
  • Gas central heating and lob burner
  • Driveway for 2 cars and garage
  • Close proximity to the beach, shops and bus route

Full description

This three-story townhouse boasts sea views and offers flexible accommodation with 3/4 bedrooms. Perfectly blending style and functionality, the property encompasses a ground floor shower room and a top floor bathroom for added convenience. Additionally on the ground floor there is a 4th bedroom/study and conservatory, creating a seamless flow between indoor and outdoor living spaces.

The heart of the home lies in the spacious living room, which features a charming balcony overlooking the sea - an ideal spot to unwind and enjoy the view. Adjacent to the living room is a kitchen dining room equipped with ample storage space. The property also benefits from gas central heating and a log burner, ensuring year-round comfort and warmth.

Parking will never be an issue with a driveway that accommodates 2 cars and a garage, providing secure storage for vehicles and additional belongings. Situated in a great location, this townhouse offers easy access to the beach, shops, and bus route, making every-day errands and leisure activities a breeze. Whether you're seeking a peaceful retreat or a convenient urban lifestyle, this property caters to all your needs and desires.

Situation

  • Entrance Porch 5' 7" x 3' 5" (1.70m x 1.04m)
  • Entrance Hal
  • Ground floor shower room
  • Ground floor bedroom/study 10' 0" x 9' 6" (3.05m x 2.90m)
  • Conservatory 14' 9" x 7' 6" (4.50m x 2.29m)
  • Living room 20' 2" x 16' 0" (6.15m x 4.88m)
  • Kitchen dining room 15' 10" x 10' 5" (4.83m x 3.17m)
  • Bedroom one 13' 5" x 9' 0" (4.09m x 2.74m)
  • Bedroom two 13' 6" x 9' 0" (4.11m x 2.74m)
  • Bedroom three 9' 5" x 9' 6" (2.87m x 2.90m)
  • Family bathroom

Council Tax Band: D

Tenure: Freehold

Why live in Selsey?

It may be classed as a town, but Selsey is still a seaside village at heart and, whether you’re looking for a dream home by the beach, a place to indulge your passion for watersports or a quiet retreat away from the hustle and bustle of life, Selsey has it all.

The old town in the south east quarter is known for its charming historic properties, including 17th century thatched houses while you’ll find many large and secluded homes offering stunning views of the water by the seafront. The north of Selsey has many 1970s style properties with more substantial, semi-rural homes set around them.

You’ll find a great selection of shops, pubs and restaurants right here on the High Street along with a strong sense of community, especially at Christmas when the Selsey Lights are a sight to behold. We have two local primary schools, Medmerry Primary and the Seal Primary Academy, and The Academy Selsey senior school in the town with more options in Chichester, including Chichester High School.

Selsey has a long-standing love of sport and is proud home to both Selsey Cricket Club and the Selsey Football and Social Club, as well as a bowls and tennis club, but you’ll find even more sporting activity by the water. If you like scuba diving or snorkelling we have some of the best water for diving in the UK, with more than 100 wrecks to explore just off the coast. If you’re keen to learn, the Mulberry Divers Centre on East Beach offers tuition to everyone from complete beginners to advanced divers. There’s swimming, sailing and windsurfing around the Selsey Bill headland or bike rides along the coastal cycle path or to the stunning beaches at Bracklesham Bay, East Wittering or West Wittering where you can feel the sand under your feet.

While Selsey offers the best of seaside living, it’s just less than 10 miles from the cultural heartland of Chichester and everything that the famous cathedral city has to offer, from the plentiful shops to the Festival Theatre. So you see, Selsey really does have it all.

If you’d like to buy, sell or let a property in Selsey, get in touch with your local team and discover the Henry Adams difference for yourself.

Read more