Facebook

Deanery Close, Chichester, PO19

2 Bed │ 1 Bath │ 1 Rec

Guide Price £199,950

Save
Chichester

Richard Longhurst

Partner

Key features

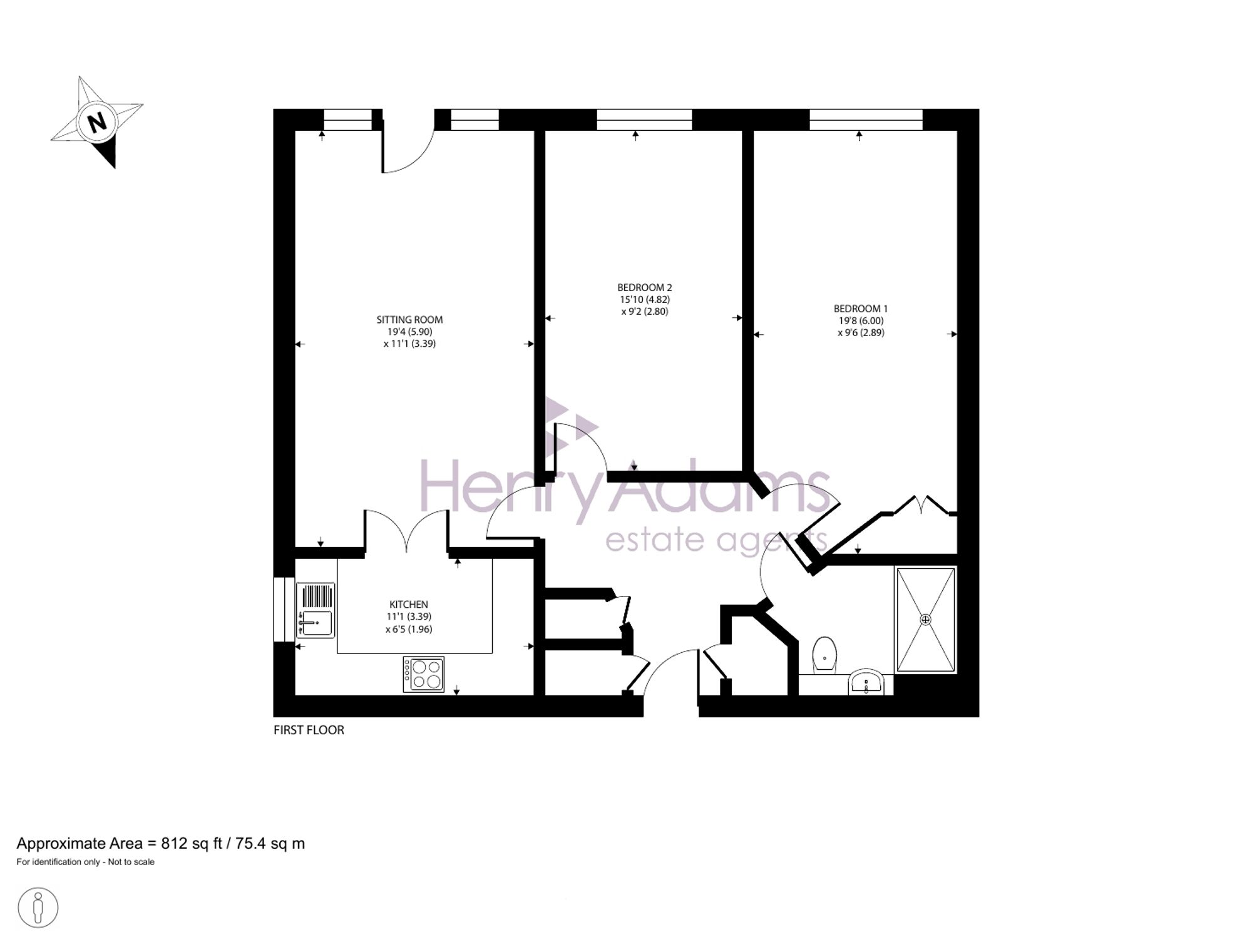
  • First floor retirement flat
  • New carpets and decoration
  • South facing sitting room with Juliet balcony
  • Kitchen
  • Two double bedrooms
  • Shower room/WC
  • Vacant possession
  • Resident laundry room
  • On-site residents parking
  • House manager

Full description

A city centre retirement apartment

This first-floor retirement apartment is ideally situated close to the heart of the city centre and offers convenient access via both lift and stairs. The accommodation includes a bright, south-facing sitting room with a charming Juliet balcony, a kitchen, two generous double bedrooms, and a modern shower room with WC.

Residents benefit from excellent communal facilities including a shared sitting room, on-site laundry facilities, residents’ parking and the support of an on-site house manager. Limited car parking is available in the private rear car park to the rear of the building.

The property is offered with vacant possession and has been newly carpeted and redecorated throughout, making it ready for immediate occupation.

Lease: 125 year lease from 2001

Service charge: £5305 pa

Ground rent: £

Age Restricted: 55 years +

Chichester District Council - 25/26 Tax Band D £2,337.06 EPC-B

Directions - On foot proceed to the bottom of South Street, keeping on the right. Turn right into Avenue de Chartres and then right again into Deanery Close. The apartment block is on the right. what3words - rock.target.method

Situation

Located at the end of South Street, ideally located for the local amenities, the train and bus station, all within a short walk. The cathedral city of Chichester offers excellent high street shopping, many fashionable restaurants, cafes and bars, Festival Theatre and a mainline station to London Victoria. Goodwood is famous for its many event days including the world renowned Festival of Speed and Goodwood Revival for motor racing enthusiasts and a season of horse racing including the Qatar Goodwood Festival. There are superb sailing facilities around Chichester Harbour and water sports from the beaches at West Wittering. The area is a paradise for wildlife enthusiasts, with beautiful walks and cycle tracks over the South Downs and around the harbour.

Council Tax Band: D

Tenure: Leasehold

Lease remaining: 100 years

Why live in Chichester?

We consider ourselves very lucky to be working in a city that blends so many different architectural styles, from elegant Georgian buildings to contemporary new apartments and waterside properties that overlook the harbour.

In 2013, The Sunday Times listed Chichester as one of the top places to live in the UK with ‘something for everyone’ – and they weren’t wrong. Chichester is a cathedral city, a county town and home to some of the oldest churches and buildings in the country. There are many well-regarded public and state schools in the local area with further and higher education options available from Chichester College, West Dean College and the University of Chichester. Our great schools have always made Chichester very appealing for those looking for the perfect place to raise a family.

Our city centre is a shopper’s paradise and there are great places to eat and drink, from elegant restaurants to cosy cafés and pubs, all set along the city’s four main streets. Chichester Cathedral on West Street dominates the skyline and, on summer afternoons, its grounds are filled with local people enjoying picnics. In the evenings, the Cathedral plays a central part in the city’s nightlife by hosting classical music events.

Chichester has a number of public parks, the Chichester Tennis and Racquets Fitness Club and Westgate Leisure Centre, where you’ll find a large swimming pool and skate park and, if sailing is your thing, Chichester Harbour is a haven for you. There really is so much to do here you’ll be spoilt for choice; spend the day on one of the many local beaches, stretch your legs on the stunning South Downs or catch a show at the Festival Theatre before it moves to a permanent home in London’s West End.

If you’d like to buy, sell or let a property in Chichester, get in touch with your local team and discover the Henry Adams difference for yourself.

Read more