Facebook

Stockbridge Road, Chichester, PO19

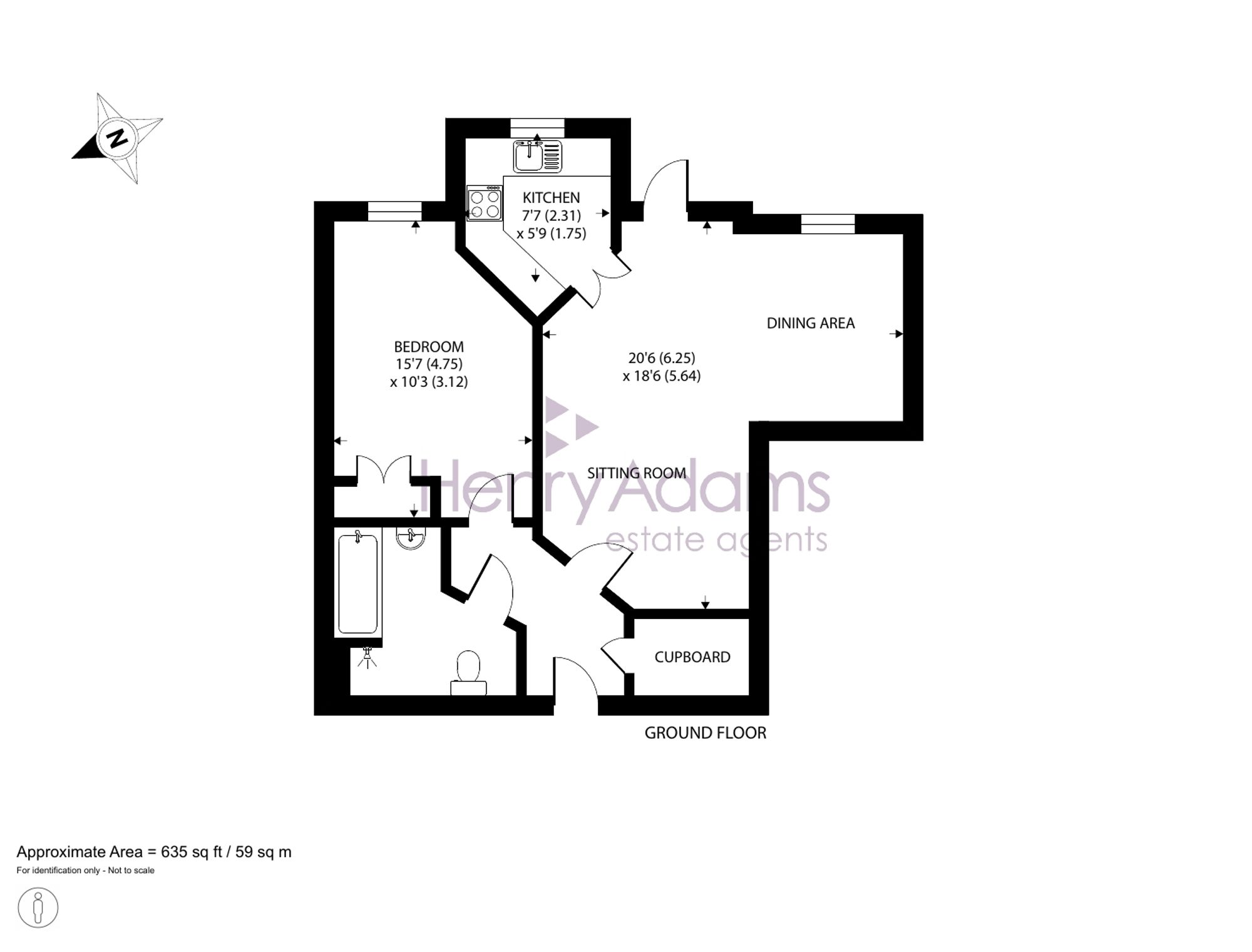
1 Bed │ 1 Bath │ 1 Rec

Guide Price £170,000

Save
Chichester

Richard Longhurst

Partner

Key features

  • Ground floor apartment with small garden patio
  • One double bedroom
  • Kitchen
  • Sitting room with dining area
  • Bath/shower wet room
  • Vacant possession
  • New carpets and recently decorated
  • 24hr on site manager
  • Serviced restaurant
  • Communal facilities

Full description

A spacious retirement apartment with direct garden access.

This attractive ground floor apartment offers comfortable, low-maintenance living with a spacious double bedroom, a well-appointed kitchen, a bright sitting room with a dining area. The modern bath/shower wet room adds convenience, while brand new carpets provide a fresh, updated feel throughout.

Offered with vacant possession, the property is ready for immediate occupancy. Residents enjoy peace of mind with a 24-hour on-site manager, access to a serviced restaurant, and a range of excellent communal facilities, creating an ideal blend of independence and support in a welcoming community environment. The service charge includes the cleaning of communal areas and 1 hours domestic help per week for the residents in each apartment. The development enjoys attractive communal gardens and direct access to these gardens is provided off the sitting room of this flat.

Tenure: We understand the property to be leasehold for 125 years from 2003

Ground rent: £405 per annum

Service charge: £8,575.33 per annum for 01/09/24-31/08/25

Chichester District Council - 25/26 Tax Band C £2,077.38 EPC-C

From the railway station, proceed south over the level crossing and Byron Court is approximately 0.2 of a mile on the left. what3words - grant.stage.result

Situation

Located close to the city centre, bus and railway station. The cathedral city of Chichester offers excellent high street shopping, library, many fashionable restaurants, cafes and bars and Festival Theatre. Goodwood is located to the north and is famous for its many event days including the world renowned Festival of Speed and Goodwood Revival for motor racing enthusiasts and a season of horse racing including the Qatar Goodwood Festival.

Council Tax Band: C

Tenure: Leasehold

Lease remaining: 103 years

Why live in Chichester?

We consider ourselves very lucky to be working in a city that blends so many different architectural styles, from elegant Georgian buildings to contemporary new apartments and waterside properties that overlook the harbour.

In 2013, The Sunday Times listed Chichester as one of the top places to live in the UK with ‘something for everyone’ – and they weren’t wrong. Chichester is a cathedral city, a county town and home to some of the oldest churches and buildings in the country. There are many well-regarded public and state schools in the local area with further and higher education options available from Chichester College, West Dean College and the University of Chichester. Our great schools have always made Chichester very appealing for those looking for the perfect place to raise a family.

Our city centre is a shopper’s paradise and there are great places to eat and drink, from elegant restaurants to cosy cafés and pubs, all set along the city’s four main streets. Chichester Cathedral on West Street dominates the skyline and, on summer afternoons, its grounds are filled with local people enjoying picnics. In the evenings, the Cathedral plays a central part in the city’s nightlife by hosting classical music events.

Chichester has a number of public parks, the Chichester Tennis and Racquets Fitness Club and Westgate Leisure Centre, where you’ll find a large swimming pool and skate park and, if sailing is your thing, Chichester Harbour is a haven for you. There really is so much to do here you’ll be spoilt for choice; spend the day on one of the many local beaches, stretch your legs on the stunning South Downs or catch a show at the Festival Theatre before it moves to a permanent home in London’s West End.

If you’d like to buy, sell or let a property in Chichester, get in touch with your local team and discover the Henry Adams difference for yourself.

Read more