Facebook

Francis Rose Way, Liss, GU33

3 Bed │ 2 Bath │ 2 Rec

Guide Price £600,000

Save
Petersfield

Dean Kellaway

Branch Manager

Key features

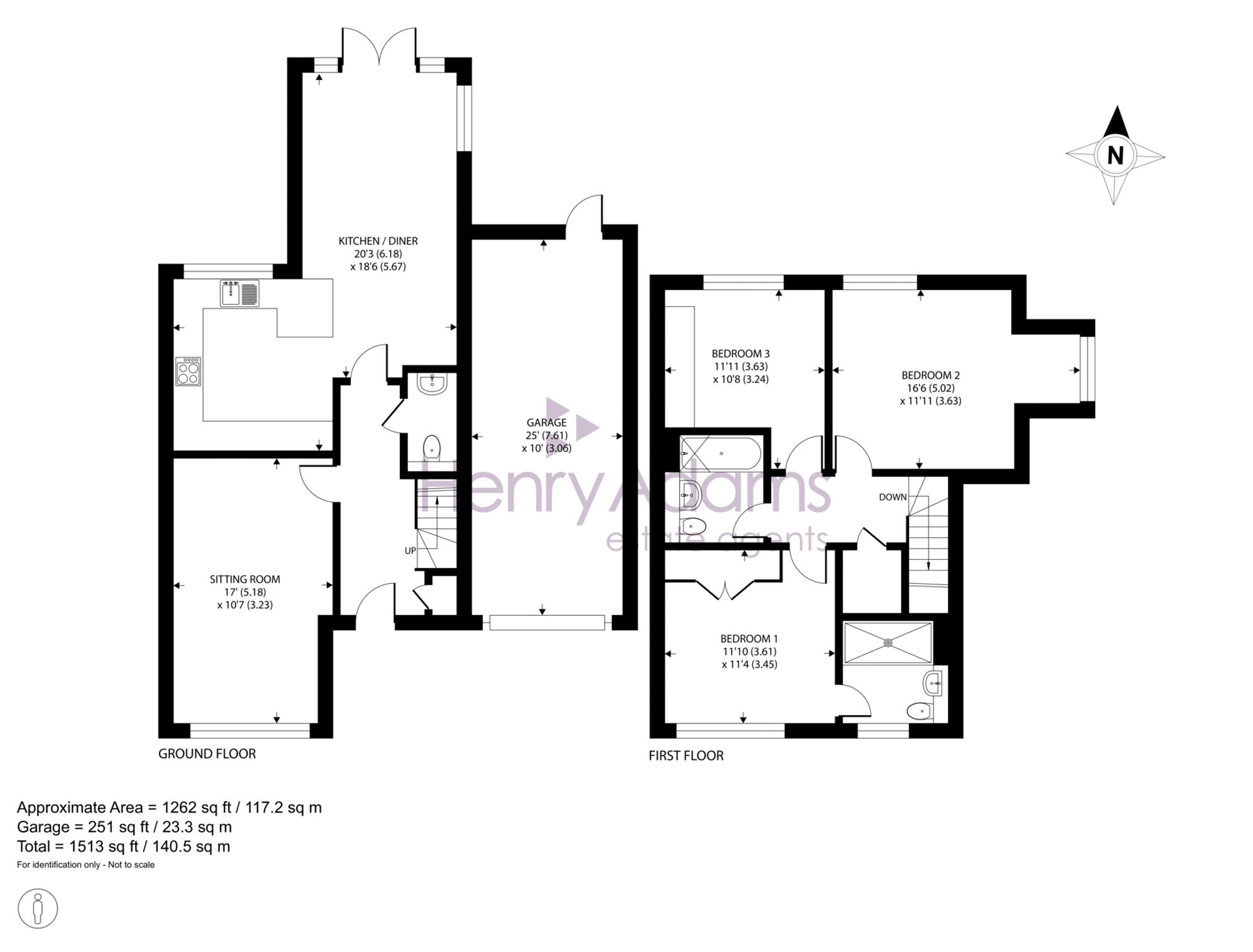
  • Exceptional & Spacious Semi-Detached Home
  • Three Generously Sized Bedrooms, with Ample Storage Space.
  • Finished to a High Standard through-out.
  • Contemporary Open-Plan Kitchen Diner.
  • Over-looking Well-Maintained Greenspace.
  • In a Sought-after Modern Development.
  • Private Off-Road Parking along with Generous Single Garage.
  • En-Suite to Principle Bedroom.
  • Walking Distance to Liss Train Station.

Full description

This beautifully presented semi-detached home offers an exceptional sense of space and style, set within a highly desirable modern development in the charming village of Liss, on the edge of the South Downs National Park.

Perfectly balanced between peaceful village life and everyday convenience, it is just a short walk from local shops, school, and the mainline railway station.

Inside, the home is designed for modern living. A welcoming entrance hall leads to a downstairs cloakroom/WC and the front living room, which offers a calm and inviting space for relaxing.

The rear of the house is an expansive kitchen/dining/family area, flooded with natural light through doors that open onto the garden, creating a seamless flow between indoor and outdoor living. The kitchen itself features a contemporary range of units, ample worktops, integrated appliances, and a breakfast bar peninsula, while the layout easily accommodates both dining and lounging areas. Thoughtful additional rear access to the garage adds practical convenience.

Upstairs, three generous double bedrooms provide comfortable and versatile living space. The principal suite boasts a large built-in wardrobe and a modern en-suite shower room, while the remaining bedrooms share a stylish family bathroom.

Externally, the property impresses with an extended private driveway and a capacious sized garage, while the rear garden provides a private and tranquil outdoor space with a well-maintained lawn and paved patio. The garden is fully enclosed making it ideal for children, pets, or simply a private space to enjoy.

Situation

Council Tax Band: E

Tenure: Freehold

EPC Rating: B

Why live in Petersfield?

Petersfield often features on lists of the best places to live and work and was recently voted one of the top 10 most desirable market towns in England; The Guardian went so far as to describe Petersfield as ‘a commuter’s Nirvana, the urban equivalent of a foot rub and a G&T’.

We have a delightful choice of properties in the area, from beautiful character cottages, some dating back 500 years, to coach house style homes and large rural retreats to modern family homes. There’s also a thriving rental market here as the convenient location, attractive setting and abundant facilities make this an excellent base for those working in the wider area or simply wanting a perfect place to raise a family.

One of the major attractions for families is the choice of world-class schools – The Petersfield School is rated ‘outstanding’ by Ofsted and Bohunt School at nearby Liphook is one of the top performing state schools in the country. In the private sector, Churcher’s College and Bedales are located in the town, while Ditcham Park School is just to the southeast.

We have cosmopolitan range of shops, restaurants and cafés, with most major retailers represented. The Petersfield Market is held twice a week in The Square and a Hampshire Farmer’s Market is held on the first Sunday of every month. We also have many sports facilities, including two golf clubs, the Taro Leisure Centre and the Petersfield Open Air Swimming Pool, which, despite being open to the elements, is always heated to an average of 27 degrees.

But what really sets Petersfield apart is the beautiful countryside and its pretty villages. These include Selborne with its post office, primary school and choice of two pubs, Steep Village, which sits on wooded slopes known as The Hangers and was once home to Sir Alec Guinness, Buriton Village, which sits between Petersfield and the Queen Elizabeth Country Park and Rogate and Rake to the east within in the Rother Valley.

If you’d like to buy, sell or let a property in Petersfield, get in touch with your local team and discover the Henry Adams difference for yourself.

Read more