Facebook

Newpound, Wisborough Green, RH14

3 Bed │ 2 Bath │ 2 Rec

Guide Price £895,000

Save
Storrington

Christina Bearryman

Sales Associate

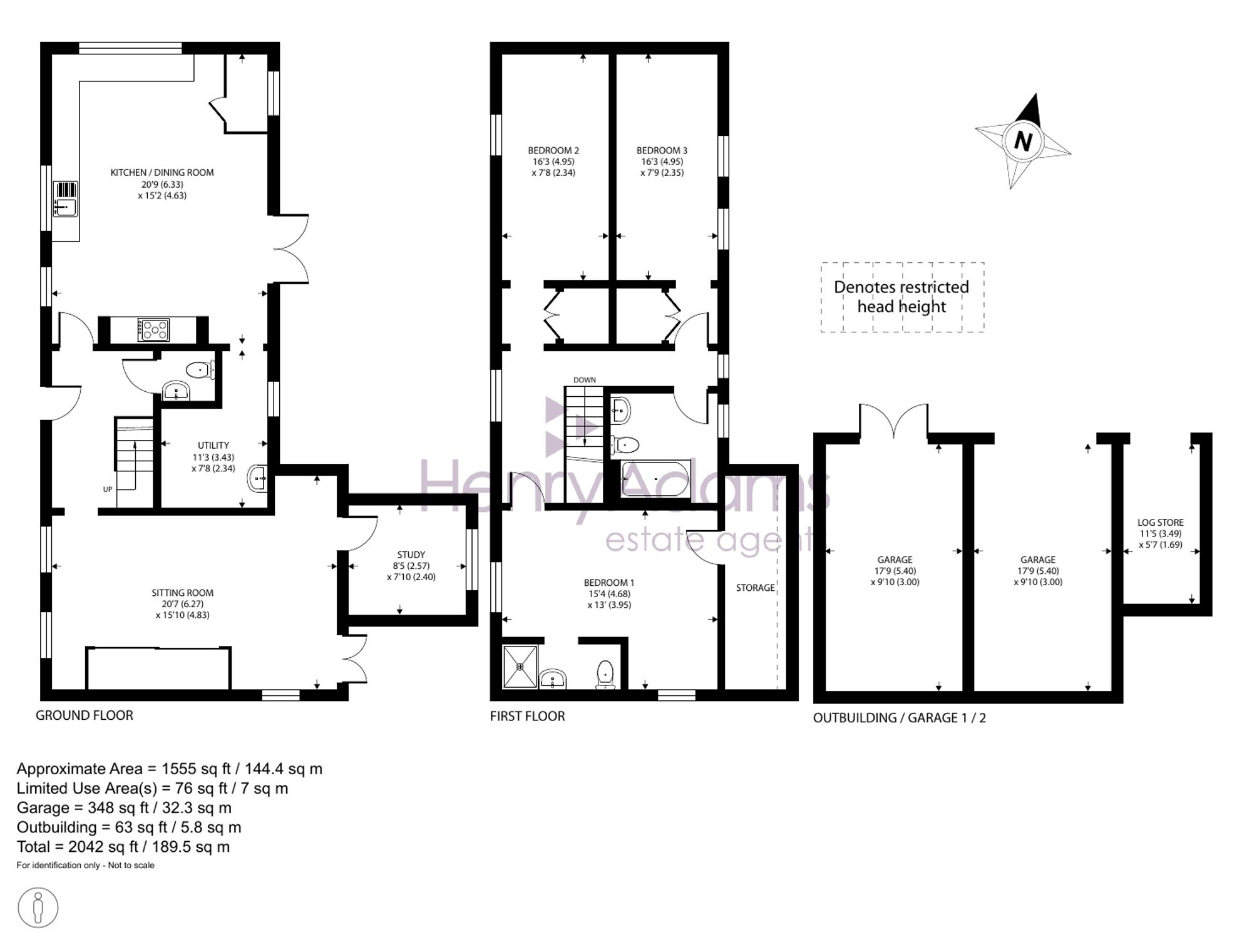
Key features

  • A beautifully presented 17th Century cottage in generous plot with ample parking, garage and car port
  • Sitting room with lovely feature fireplace, wood burner and French doors to garden
  • Study
  • Bespoke hand made kitchen / dining room with range cooker, good size utility room with space for appliances
  • Underfloor heating for ground and first floor
  • Ground floor cloakroom
  • Double aspect vaulted main bedroom with en-suite shower room
  • Two further double bedrooms and family bathroom
  • Lovely garden with large patio area, green house, rose garden and a variety of other plants and shrubs

Full description

Honeysuckle Cottage is just as lovely as its name suggests, a remarkable 3-bedroom detached cottage which offers a blend of character and modern comforts. Boasting a 17th-century cottage charm, the property sits on a generous plot and features ample parking, a garage, and carport.

The interior seamlessly combines timeless elegance with contemporary amenities, as evidenced by the cosy sitting room showcasing a lovely feature inglenook fireplace with inset wood burner, and inviting French doors that lead out to the garden. A study provides a quiet retreat for work or relaxation, while the bespoke hand-made kitchen and dining room are highlighted by a range cooker and ample space for entertaining. A practical touch is the good-sized utility room offering space for essential appliances. Underfloor heating on both the ground and first floors ensures comfort throughout the year, while a convenient ground floor cloakroom adds to the functionality of the space.

On the upper level, the double aspect vaulted main bedroom beckons with its charm and offers an en-suite shower room for added privacy and convenience. Two additional double bedrooms provide comfort and style, and a well-appointed family bathroom.

Another feature of the property are the meticulously landscaped gardens, a large patio area is ideal for al fresco dining and entertaining, while a green house, rose garden, and a variety of plants and shrubs add character to the surroundings. A beautifully presented charming character property with all the modern amenities you would wish for.

Situation

  • Entrance Hall
  • Cloakroom
  • Sitting Room
  • Study
  • Kitchen / Dining Room
  • Utility Room
  • Landing
  • Bedroom 1
  • En-Suite Shower Room
  • Bedroom 2
  • Bedroom 3
  • Bathroom

Council Tax Band: G

Tenure: Freehold

EPC Rating: G

Why live in Storrington?

This picture-perfect village lies at the foot of the South Downs National Park, halfway along the South Downs Way. Properties here include bungalows, family homes and the famous Wells cottages that were individually designed by the architect Reginald Fairfax Wells in the 1920s to look and feel like 17th century buildings with thatched roofs, small windows and whitewashed exteriors.

Many of the homes in Storrington have wonderful views across rolling countryside and a conservation area just off the bustling high street ensures Storrington will remain as beautiful as it is today for generations to come.

There are lots of specialist shops in the town and convenient amenities such as the large recreational ground with its football and cricket pitches, the Chanctonbury Leisure Centre and an abundance of community groups offering classes in all sorts of interesting activities from ballroom dancing to photography. For a spot of culture, visit the Parham House and Gardens or the local Storrington and District Museum and for outdoor pursuits, take time to explore the natural beauty of the South Downs on foot, bike or horseback or, for a truly spectacular experience, take to the air in a glider.

Our local schools belong to a cluster group called STARS (Storrington Area Rural Schools) and, between them, offer a choice of paths from Reception through to Year 13. Steyning Grammar School is included in the list of STARS and is a popular choice as it’s non-selective and has its own Sixth Form.

Storrington is well connected too; the nearest train station is in the neighbouring village of Pulborough. The five-mile journey only takes 10 minutes by car or you can take a bus; the bus timetable is synced with the train timetable to make life even easier for local commuters.

If you’d like to buy, sell or let a property in Storrington, get in touch with your local team and discover the Henry Adams difference for yourself.

Read more