Facebook

Hurston Grove, Storrington, RH20

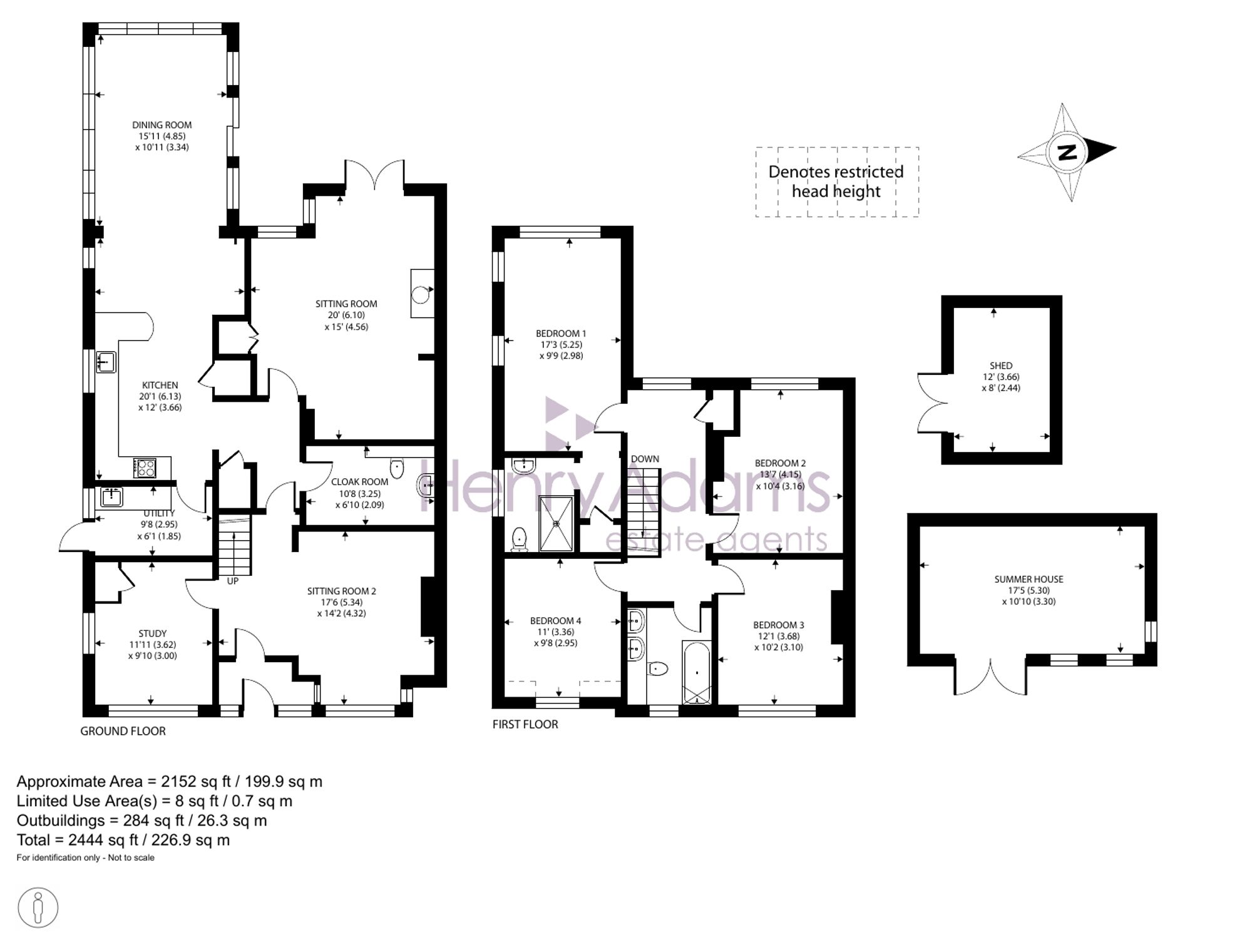
4 Bed │ 2 Bath │ 3 Rec

Guide Price £750,000

Save
Storrington

Christina Bearryman

Sales Associate

Key features

  • A beautifully presented home with large west facing garden in plot of just under one acre, located on sought after lane on the edge of the village
  • Large kitchen with range cooker, breakfast bar and large dining area opening to garden
  • Three further reception rooms consisting of main family sitting room with gas log burner, second sitting room with open fire and study / playroom
  • Large cloakroom and separate utility room
  • Main bedroom with views over the garden, en-suite shower room
  • Three further double bedrooms and family bathroom
  • 245 ft west facing rear garden with large patio, decking area, summer house and garden shed, opening onto grassland
  • Driveway parking for several vehicles

Full description

This beautifully presented 1930's semi detached property offers a rare opportunity to acquire a spacious and versatile family home set within a plot of just under one acre, located within easy walking distance of the village centre. With large rooms and good ceiling height there is a lovely feeling of space as soon as you enter and it continues throughout.

The accommodation is thoughtfully arranged to provide generous living space, beginning with a porch leading to a welcoming entrance hall. At the front of the property is a second sitting room with an open fire offering space for entertaining or quiet retreat, while a separate study (which could also serve as a playroom) provides flexibility for home working or family needs. The main sitting room, at the rear of the property overlooking the garden, features a charming gas log burner, creating a cosy focal point for relaxing evenings. The heart of the home is the impressive kitchen, equipped with a range cooker, ample space for appliances, breakfast bar and a large dining area that enjoys direct access to the garden, making it ideal for both every-day living and entertaining. A large cloakroom and a separate utility room add further practicality, ensuring ample storage and convenience.

Upstairs, the main bedroom enjoys lovely views over the garden and benefits from an en-suite shower room and a plenty of storage. Three further double bedrooms offer spacious accommodation for family and guests, served by a well-appointed family bathroom.

The 245ft west facing rear garden is a true feature of the property, thoughtfully landscaped with a variety of plants and shrubs, a large patio, a decking area and also a summer house and garden shed for additional storage or leisure use. There is a further area of grassland accessed via the wooden gate. Driveway parking is available for several vehicles, ensuring convenience for residents and visitors alike.

This property benefits from a high degree of privacy and combines the charm of a traditional semi detached home with modern comforts and generous proportions, making it an ideal choice for those seeking a peaceful village lifestyle within a substantial and beautifully maintained setting. Early viewing is highly recommended to fully appreciate all that this exceptional home has to offer.

Situation

Storrington village lies in the lea of the South Downs National Park and has an established range of shops including Waitrose, Costa and a number of independent shops and HSBC bank. There is a health centre and various sporting activities including Chanctonbury Leisure Centre for fitness classes and activities, Storrington football club, Pulborough Rugby Club, tennis club and not forgetting the South Downs for walking or cycling or the National Trust Sullington Warren or Sandgate Country Park. The towns of Horsham and Worthing are about 15 and 11 miles respectively with good access to the A24.

The area around provides a wider range of sporting and recreational facilities with West Sussex Golf Club and other golf clubs further afield at Cowdray Park and Goodwood. Of special note is the RSPB nature reserve at Pulborough Brooks. The area also has bowls and cricket clubs. There is gliding at nearby Parham, theatres at Chichester, Horsham and Worthing and sailing centres all along the coast.

Community Minibus Association (West Sussex) offers members a service providing shopping trips to supermarkets, social outings, visits to nearby towns. On Friday mornings at Storrington Village Hall is the Storrington Community Market offering local produce and crafts.
  • Second reception room
  • Cloakroom
  • Study
  • Sitting Room
  • Kitchen
  • Dining Room / Conservatory
  • Utility Room
  • Landing
  • Bedroom 1
  • En-Suite Shower Room
  • Bedroom 2
  • Bedroom 3
  • Bedroom 4
  • Family Bathroom

Council Tax Band: E

Tenure: Freehold

EPC Rating: D

Why live in Storrington?

This picture-perfect village lies at the foot of the South Downs National Park, halfway along the South Downs Way. Properties here include bungalows, family homes and the famous Wells cottages that were individually designed by the architect Reginald Fairfax Wells in the 1920s to look and feel like 17th century buildings with thatched roofs, small windows and whitewashed exteriors.

Many of the homes in Storrington have wonderful views across rolling countryside and a conservation area just off the bustling high street ensures Storrington will remain as beautiful as it is today for generations to come.

There are lots of specialist shops in the town and convenient amenities such as the large recreational ground with its football and cricket pitches, the Chanctonbury Leisure Centre and an abundance of community groups offering classes in all sorts of interesting activities from ballroom dancing to photography. For a spot of culture, visit the Parham House and Gardens or the local Storrington and District Museum and for outdoor pursuits, take time to explore the natural beauty of the South Downs on foot, bike or horseback or, for a truly spectacular experience, take to the air in a glider.

Our local schools belong to a cluster group called STARS (Storrington Area Rural Schools) and, between them, offer a choice of paths from Reception through to Year 13. Steyning Grammar School is included in the list of STARS and is a popular choice as it’s non-selective and has its own Sixth Form.

Storrington is well connected too; the nearest train station is in the neighbouring village of Pulborough. The five-mile journey only takes 10 minutes by car or you can take a bus; the bus timetable is synced with the train timetable to make life even easier for local commuters.

If you’d like to buy, sell or let a property in Storrington, get in touch with your local team and discover the Henry Adams difference for yourself.

Read more