Facebook

Orpen Place, Selsey, PO20

4 Bed │ 2 Bath │ 2 Rec

Guide Price £280,000

Save
Selsey

Kevin Daymond

Partner

Key features

  • Terraced house offered with NO onward chain
  • Four bedrooms with option of using the dining room as a 5th bedroom
  • Two reception rooms
  • Ground floor wet room with w/c and wash hand basin and 1st floor bathroom
  • Updating & modernisation required
  • New boiler installed in January 2024
  • Off road parking
  • South facing rear garden
  • Close proximity to local amenities, bus route and beach

Full description

Presented to the market with no onward chain, this terraced house offers an excellent opportunity for buyers seeking a versatile family home in a highly convenient location. Arranged across two floors, the property features four bedrooms, with the added flexibility of utilising the dining room as a potential fifth bedroom to suit a growing family or those requiring additional work-from-home space.

The ground floor comprises two reception rooms, offering ample space for both relaxation and entertaining, while the adjoining kitchen provides a practical layout for daily living. A ground floor wet room with w/c and wash hand basin ( accessed via the dining room ) adds convenience and accessibility, adding to the main family bathroom located on the first floor. While the property would benefit from updating and modernisation, it presents a blank canvas for buyers to personalise and create a home tailored to their own taste and requirements.

Recent improvements include the installation of a new boiler in January 2024, providing peace of mind and enhanced energy efficiency. Off-road parking is available to the front of the home along with a south facing rear garden. The location is particularly appealing, with a range of local amenities, shops, primary & secondary schools all within easy reach, as well as excellent transport links via nearby bus routes to Chichester. The property is also situated within close proximity to the beach, making it ideal for those who wish to enjoy coastal living. The home offers the opportunity to acquire a property with significant potential in a sought-after area, ideal for families, investors, or anyone looking to create their dream home.

Situation

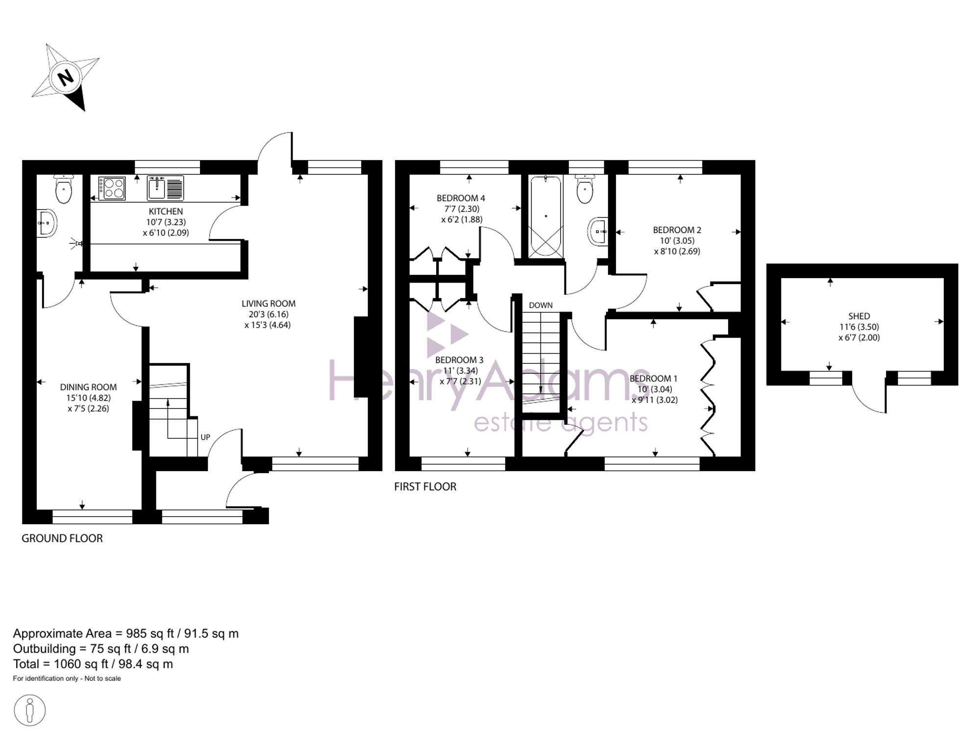
  • Entrance Porch 7' 1" x 2' 10" (2.15m x 0.87m)
  • Living/Dining room 20' 2" x 15' 2" (6.15m x 4.62m)
  • Dining room 15' 9" x 7' 5" (4.81m x 2.26m)
  • Wet Room
  • Kitchen 10' 6" x 6' 10" (3.21m x 2.09m)
  • Landing
  • Bedroom one 9' 11" x 9' 11" (3.03m x 3.02m)
  • Bedroom two 10' 0" x 8' 10" (3.04m x 2.70m)
  • Bedroom three 10' 11" x 7' 7" (3.34m x 2.31m)
  • Bedroom four 7' 6" x 6' 3" (2.29m x 1.90m)
  • Bathroom

Council Tax Band: C

Tenure: Freehold

EPC Rating: C

Why live in Selsey?

It may be classed as a town, but Selsey is still a seaside village at heart and, whether you’re looking for a dream home by the beach, a place to indulge your passion for watersports or a quiet retreat away from the hustle and bustle of life, Selsey has it all.

The old town in the south east quarter is known for its charming historic properties, including 17th century thatched houses while you’ll find many large and secluded homes offering stunning views of the water by the seafront. The north of Selsey has many 1970s style properties with more substantial, semi-rural homes set around them.

You’ll find a great selection of shops, pubs and restaurants right here on the High Street along with a strong sense of community, especially at Christmas when the Selsey Lights are a sight to behold. We have two local primary schools, Medmerry Primary and the Seal Primary Academy, and The Academy Selsey senior school in the town with more options in Chichester, including Chichester High School.

Selsey has a long-standing love of sport and is proud home to both Selsey Cricket Club and the Selsey Football and Social Club, as well as a bowls and tennis club, but you’ll find even more sporting activity by the water. If you like scuba diving or snorkelling we have some of the best water for diving in the UK, with more than 100 wrecks to explore just off the coast. If you’re keen to learn, the Mulberry Divers Centre on East Beach offers tuition to everyone from complete beginners to advanced divers. There’s swimming, sailing and windsurfing around the Selsey Bill headland or bike rides along the coastal cycle path or to the stunning beaches at Bracklesham Bay, East Wittering or West Wittering where you can feel the sand under your feet.

While Selsey offers the best of seaside living, it’s just less than 10 miles from the cultural heartland of Chichester and everything that the famous cathedral city has to offer, from the plentiful shops to the Festival Theatre. So you see, Selsey really does have it all.

If you’d like to buy, sell or let a property in Selsey, get in touch with your local team and discover the Henry Adams difference for yourself.

Read more