Facebook

Chapel Street, Chichester, PO19

2 Bed │ 2 Bath │ 1 Rec

Guide Price £150,000

Save
Chichester

Richard Longhurst

Partner

Key features

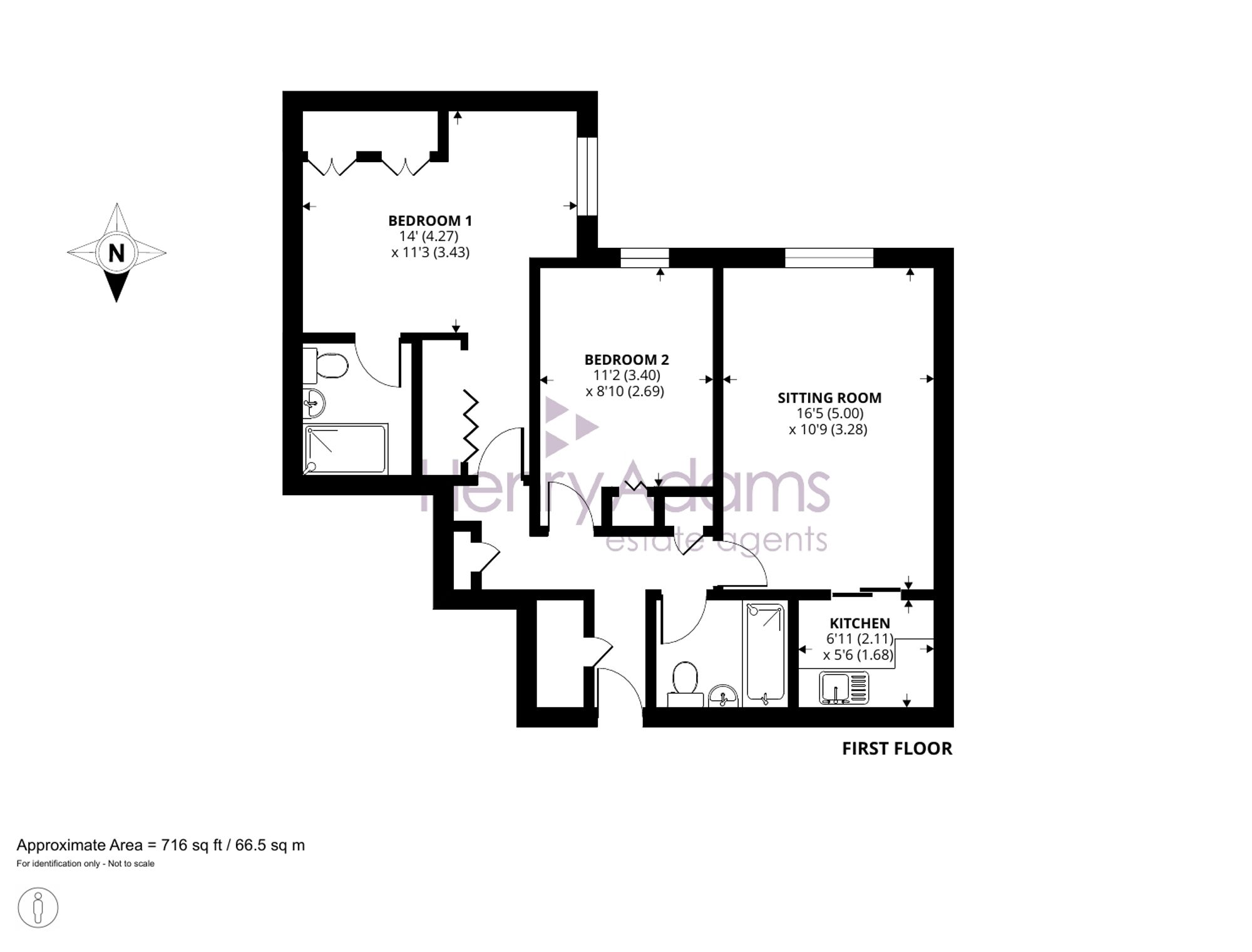
  • Spacious 716 sqft retirement apartment
  • Just a few minutes’ walk from the city centre shops, library, restaurants and bistro's
  • First floor
  • South facing sitting room
  • En-suite principal bedroom
  • On-site manager and out of hours back up
  • Communal garden and laundry
  • Guest suite

Full description

A chain free first floor retirement apartment in the heart of the city centre

A two-bedroom first-floor retirement apartment, ideally located in the heart of the city centre, just a short walk from the main shopping precinct with its excellent selection of shops, restaurants and cafés.

This spacious and well-designed apartment offers comfortable and convenient living throughout. The accommodation comprises a welcoming entrance hall, a bright and airy south-facing sitting room flooded with natural light, a well-appointed kitchen, a generous principal bedroom with en-suite shower room, a second bedroom ideal for guests or hobbies and a separate bathroom.

Residents benefit from a range of excellent on-site facilities designed for comfort and peace of mind, including an on-site manager and a 24-hour Careline emergency call system for out-of-hours support. The development also features beautifully maintained communal gardens, a guest suite for visiting family and friends and a shared laundry room.

Offered to the market with no onward chain, this delightful apartment presents an excellent opportunity for those seeking a relaxed and secure lifestyle in a highly convenient central location.

Lease - 125 years from 01/01/1986 (85 years remaining)

Service Charge - For 2025 is £4,032.87 per annum (estimated)

Ground rent - £75 per annum

Chichester District Council - 25/26 Tax Band C £2,077.38 EPC-C

Directions - Proceed on foot from the city centre cross into West Street with the cathedral on the left, turn right into Chapel Street. Follow the road north and Providence Place is on the left. There is a pay and display car park a short distance along on the right. what3words - manliness.these.class

Situation

Located in a central position within the city walls and within easy access of the pedestrian shopping precinct. The cathedral city of Chichester offers excellent high street shopping, many fashionable restaurants, cafes and bars, the Festival Theatre and a mainline station to London Victoria. Close by there is the library and regular bus service (outside the cathedral) to Tesco and Sainsburys. Goodwood is located to the north and is famous for its many event days including the world renowned Festival of Speed and Goodwood Revival for motor racing enthusiasts and a season of horse racing including the Qatar Goodwood Festival.

Council Tax Band: C

Tenure: Leasehold

EPC Rating: C

Why live in Chichester?

We consider ourselves very lucky to be working in a city that blends so many different architectural styles, from elegant Georgian buildings to contemporary new apartments and waterside properties that overlook the harbour.

In 2013, The Sunday Times listed Chichester as one of the top places to live in the UK with ‘something for everyone’ – and they weren’t wrong. Chichester is a cathedral city, a county town and home to some of the oldest churches and buildings in the country. There are many well-regarded public and state schools in the local area with further and higher education options available from Chichester College, West Dean College and the University of Chichester. Our great schools have always made Chichester very appealing for those looking for the perfect place to raise a family.

Our city centre is a shopper’s paradise and there are great places to eat and drink, from elegant restaurants to cosy cafés and pubs, all set along the city’s four main streets. Chichester Cathedral on West Street dominates the skyline and, on summer afternoons, its grounds are filled with local people enjoying picnics. In the evenings, the Cathedral plays a central part in the city’s nightlife by hosting classical music events.

Chichester has a number of public parks, the Chichester Tennis and Racquets Fitness Club and Westgate Leisure Centre, where you’ll find a large swimming pool and skate park and, if sailing is your thing, Chichester Harbour is a haven for you. There really is so much to do here you’ll be spoilt for choice; spend the day on one of the many local beaches, stretch your legs on the stunning South Downs or catch a show at the Festival Theatre before it moves to a permanent home in London’s West End.

If you’d like to buy, sell or let a property in Chichester, get in touch with your local team and discover the Henry Adams difference for yourself.

Read more