Facebook

Green Lane, Bosham, PO18

3 Bed │ 1 Bath │ 2 Rec

Guide Price £575,000

Save
Chichester

Richard Longhurst

Partner

Key features

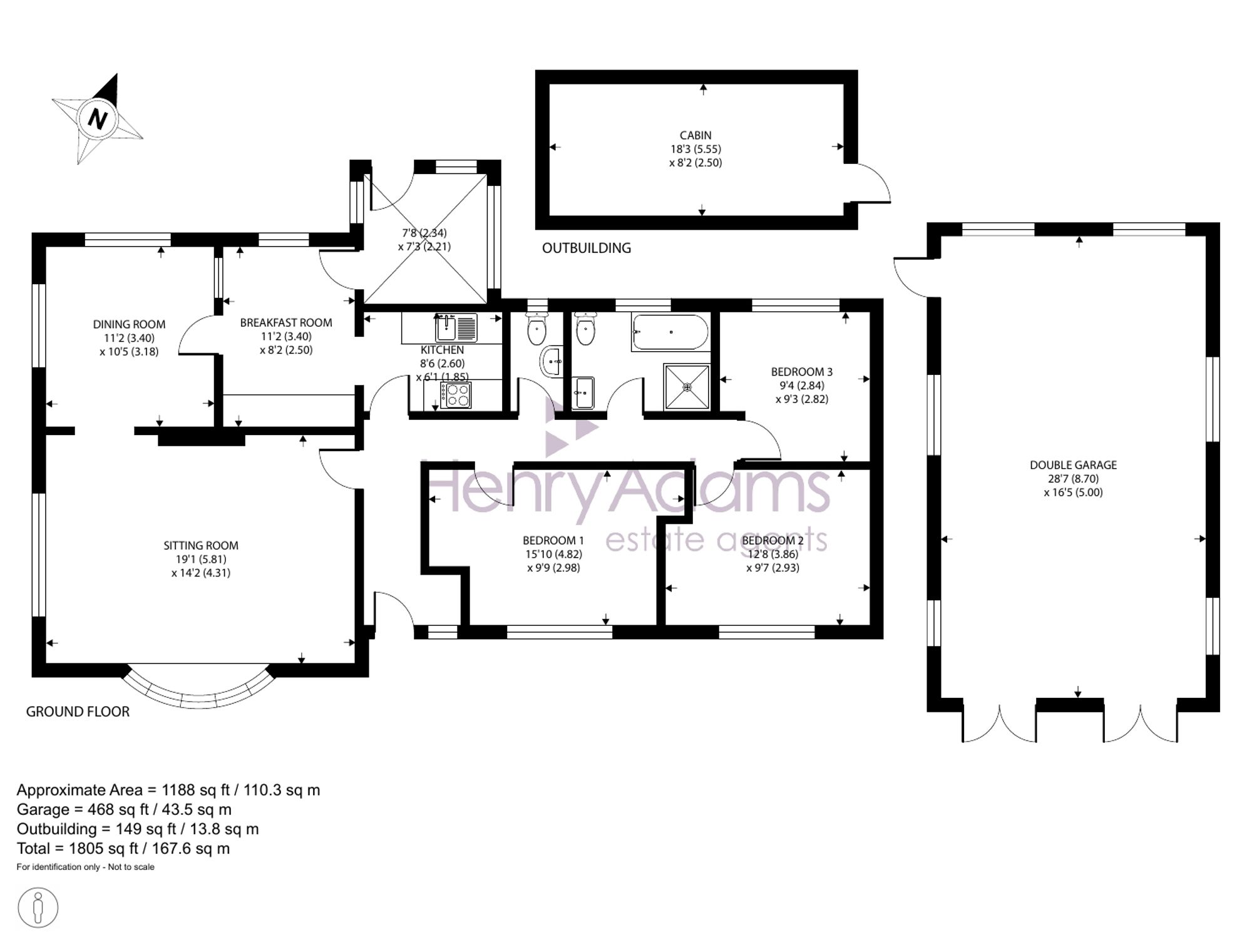
  • Detached three bedroom bungalow
  • Expansive 0.82 acre plot
  • Potential to extend or reconfigure (STPP)
  • Outbuildings with scope for refurbishment
  • Private access via a local farm service road
  • Six miles west of Chichester
  • Two miles west of Bosham
  • No onward chain

Full description

Create your dream home in rural West Sussex


This individual three-bedroom detached bungalow presents an excellent opportunity for renovation or redevelopment, offering enormous potential for the creation of a bespoke rural home. Set within approximately 0.82 acre, the property enjoys a countryside setting while remaining conveniently close to essential amenities and transport links. For those seeking a home with character and space to grow, this property provides an excellent blank canvas to realise a vision—whether that be a complete transformation or a sympathetic update of the existing dwelling.

The bungalow is approached via a local farm service road, shared with just one other home, ensuring a sense of seclusion without isolation. The property itself is modest in layout and requires improvement, but the generous plot offers outstanding scope for extension, reconfiguration, or even replacement (subject to the necessary planning permissions). Outbuildings within the grounds add further potential, whether for storage or workshop. The land surrounding the home is largely level, presenting numerous possibilities for landscaped gardens, kitchen gardens, or leisure spaces such as a studio or home office.

Located approximately six miles west of the historic cathedral city of Chichester and just two miles from the picturesque harbourside village of Bosham, the property benefits from both natural beauty and local charm. Bosham is known for its sailing heritage, thriving arts community, and scenic coastal walks, making it a highly desirable location for families and retirees alike. Chichester offers a wider range of facilities including excellent schools, cultural venues such as the Festival Theatre, a wide selection of shops, restaurants, and access to the South Downs National Park. For commuters, the area is well connected by road and rail, with services to London available from nearby stations.

This is a rare chance to acquire a substantial plot in a semi-rural position and to create a highly individual home tailored to your lifestyle. Whether you're a developer, a self-builder, or simply looking for a country property to make your own, this opportunity combines tranquillity, potential, and location in one compelling package.

Chichester District Council - 25/26 Tax Band E £2,834.95 EPC-G

Directions - From Chichester take the A259 west towards Bosham. At the White Swan roundabout, take the second exit (A259) and continue for about 0.7 miles then turn right into Newells Lane. Proceed over the railway crossing and after approximately 0.16 of a mile turn left into Green Lane (private road). Fortuna is at the end on the right. what3words - reclined.tripped.free

Situation

Nearby is a wealth of local amenities including a small supermarket, restaurant, takeaways, a primary school, three public houses, a popular hotel/restaurant, tea rooms, arts and crafts centre and a large local farm shop with post office and medical centre. The train station provides access to London Victoria via Chichester to the east and London Waterloo via Havant to the west. Chichester along with its excellent high street shopping and schools, has many cultural interests including the internationally acclaimed Festival Theatre. Nearby are Goodwood and Fontwell racecourses, with polo at Cowdray Park, golf at Hunston and Goodwood, plus walking, cycling and horse riding around the network of footpaths and cycle routes around the harbour and to the north in the South Downs. There are excellent sailing facilities and water sports around the Chichester Harbour and ‘Blue Flag’ beaches at West Wittering.

Council Tax Band: E

Tenure: Freehold

EPC Rating: G

Why live in Chichester?

We consider ourselves very lucky to be working in a city that blends so many different architectural styles, from elegant Georgian buildings to contemporary new apartments and waterside properties that overlook the harbour.

In 2013, The Sunday Times listed Chichester as one of the top places to live in the UK with ‘something for everyone’ – and they weren’t wrong. Chichester is a cathedral city, a county town and home to some of the oldest churches and buildings in the country. There are many well-regarded public and state schools in the local area with further and higher education options available from Chichester College, West Dean College and the University of Chichester. Our great schools have always made Chichester very appealing for those looking for the perfect place to raise a family.

Our city centre is a shopper’s paradise and there are great places to eat and drink, from elegant restaurants to cosy cafés and pubs, all set along the city’s four main streets. Chichester Cathedral on West Street dominates the skyline and, on summer afternoons, its grounds are filled with local people enjoying picnics. In the evenings, the Cathedral plays a central part in the city’s nightlife by hosting classical music events.

Chichester has a number of public parks, the Chichester Tennis and Racquets Fitness Club and Westgate Leisure Centre, where you’ll find a large swimming pool and skate park and, if sailing is your thing, Chichester Harbour is a haven for you. There really is so much to do here you’ll be spoilt for choice; spend the day on one of the many local beaches, stretch your legs on the stunning South Downs or catch a show at the Festival Theatre before it moves to a permanent home in London’s West End.

If you’d like to buy, sell or let a property in Chichester, get in touch with your local team and discover the Henry Adams difference for yourself.

Read more