Facebook

Gainsborough Drive, Selsey, PO20

2 Bed │ 1 Bath │ 1 Rec

Guide Price £275,000

Save
Selsey

Kevin Daymond

Partner

Key features

  • End terraced house in cul-de-sac location
  • Two bedrooms ( 1 double & 1 single )
  • Living room & kitchen
  • Larger than average garden for this style of home
  • Off road parking space located next to the garage
  • Garage in a block
  • Set back from the roadside with view over green to the front

Full description

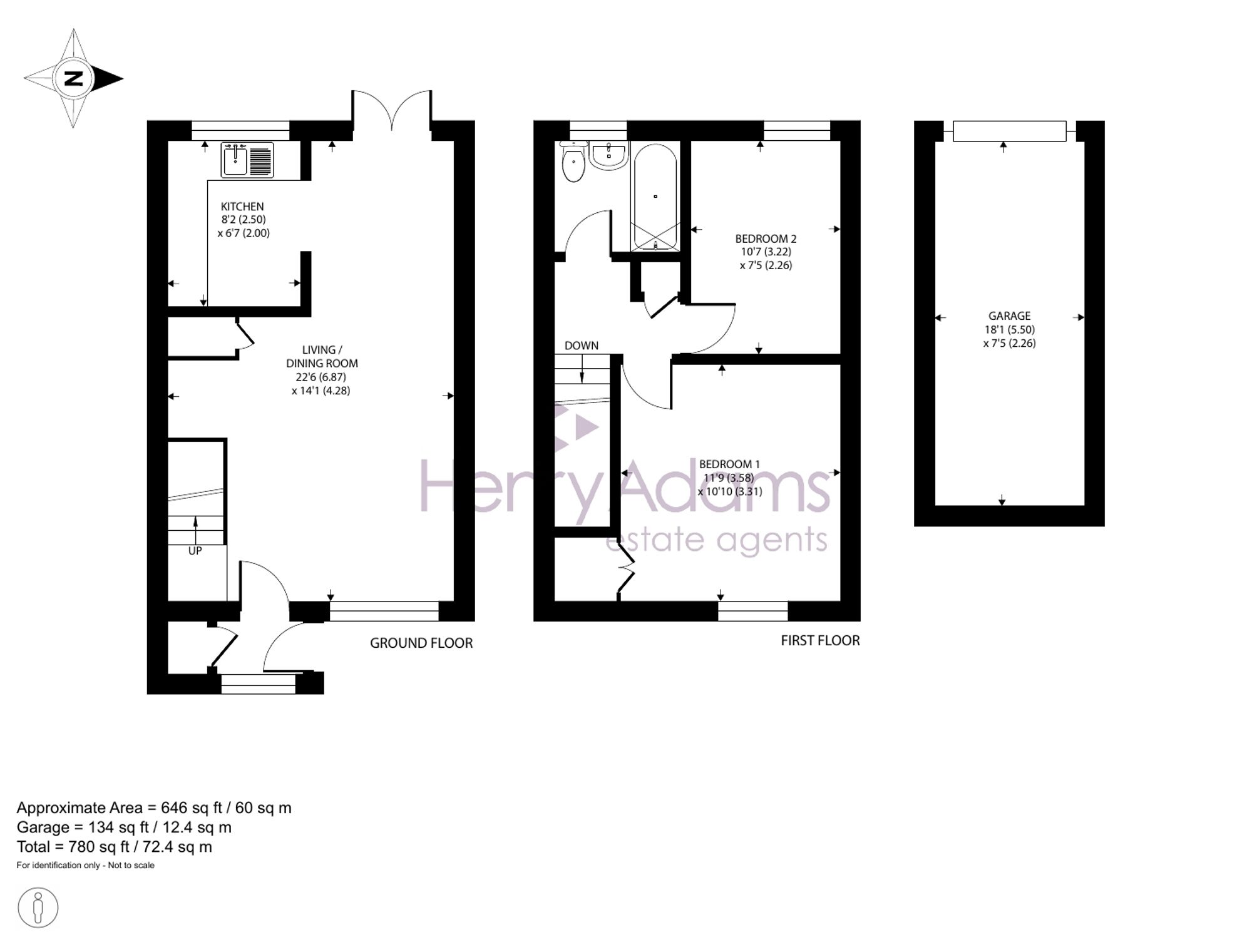
Situated in a cul-de-sac location, this end terraced house offers an appealing combination of privacy and convenience. The property is set back from the roadside, affording attractive views over a green to the front, and features two bedrooms - 1 double and 1 single. The ground floor comprises a welcoming living/dining room and a kitchen. A particular highlight of this home is its larger than average rear garden which extends to the side, which provides ample room for relaxation and outdoor entertaining (a rare benefit for this style of property). The house also benefits from a garage, located in a nearby block with parking space adjacent and accessible via a pathway from the rear garden, providing parking or additional storage. This property would suit a range of buyers, including first-time purchasers, downsizers, or investors seeking a home in a quiet residential location.

The outside space has been designed with both practicality and enjoyment in mind. The front garden is laid to lawn with a flower border and a pathway leading to the entrance. The rear garden is mainly laid to lawn, complemented by flower borders and a paved seating area that is ideal for al fresco dining or relaxing in the warmer months. The garden extends to the side and being laid to paving offers an are of low maintenance, wooden shed and side access to the front of the home. A pathway leads to the rear access and continues beyond the garden, offering direct access to the garage block (the garage itself is fitted with an up and over door) along with a parking space to the side of the garage.

Situation

  • Entrance Porch
  • Living/Dining Room 22' 6" x 14' 1" (6.87m x 4.28m)
  • Kitchen 8' 2" x 6' 7" (2.50m x 2.00m)
  • Landing
  • Bedroom One 14' 2" x 11' 9" (4.32m x 3.57m)
  • Bedroom Two 10' 7" x 7' 5" (3.22m x 2.26m)
  • Bathroom

Council Tax Band: C

Tenure: Freehold

EPC Rating: D

Why live in Selsey?

It may be classed as a town, but Selsey is still a seaside village at heart and, whether you’re looking for a dream home by the beach, a place to indulge your passion for watersports or a quiet retreat away from the hustle and bustle of life, Selsey has it all.

The old town in the south east quarter is known for its charming historic properties, including 17th century thatched houses while you’ll find many large and secluded homes offering stunning views of the water by the seafront. The north of Selsey has many 1970s style properties with more substantial, semi-rural homes set around them.

You’ll find a great selection of shops, pubs and restaurants right here on the High Street along with a strong sense of community, especially at Christmas when the Selsey Lights are a sight to behold. We have two local primary schools, Medmerry Primary and the Seal Primary Academy, and The Academy Selsey senior school in the town with more options in Chichester, including Chichester High School.

Selsey has a long-standing love of sport and is proud home to both Selsey Cricket Club and the Selsey Football and Social Club, as well as a bowls and tennis club, but you’ll find even more sporting activity by the water. If you like scuba diving or snorkelling we have some of the best water for diving in the UK, with more than 100 wrecks to explore just off the coast. If you’re keen to learn, the Mulberry Divers Centre on East Beach offers tuition to everyone from complete beginners to advanced divers. There’s swimming, sailing and windsurfing around the Selsey Bill headland or bike rides along the coastal cycle path or to the stunning beaches at Bracklesham Bay, East Wittering or West Wittering where you can feel the sand under your feet.

While Selsey offers the best of seaside living, it’s just less than 10 miles from the cultural heartland of Chichester and everything that the famous cathedral city has to offer, from the plentiful shops to the Festival Theatre. So you see, Selsey really does have it all.

If you’d like to buy, sell or let a property in Selsey, get in touch with your local team and discover the Henry Adams difference for yourself.

Read more