Facebook

Beacon Drive, Selsey, PO20

4 Bed │ 2 Bath │ 2 Rec

Guide Price £695,000

Save
Selsey

Kevin Daymond

Partner

Key features

  • Sea Fronted Detached Home
  • Four bedrooms, 3 with built in wardrobes
  • Living room with sea view
  • Kitchen breakfast room & separate utility room
  • Conservatory
  • Panoramic sea views from all front facing rooms and balcony
  • Garage With Electric Door
  • Off Road Parking And Rear Garden
  • No onward chain

Full description

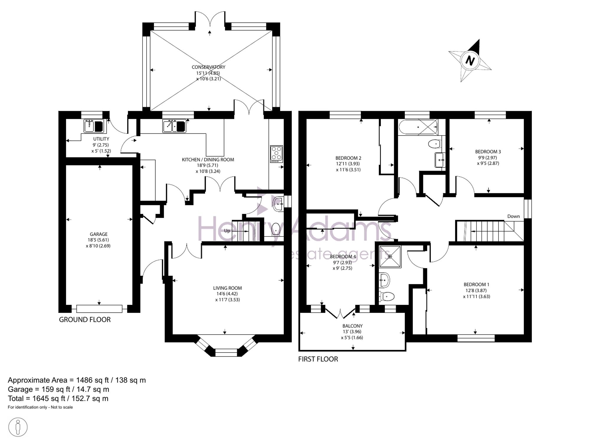
This beautifully presented sea fronted detached home offers the opportunity to acquire a family home or 'bolt hole' with panoramic sea views from all front facing rooms and the balcony. The accommodation is thoughtfully arranged, featuring four well-proportioned bedrooms (three of which benefit from built-in wardrobes), providing ample storage for family living. The living room is positioned to make the most of the seascape, while the kitchen breakfast room is both practical and inviting, complemented by a separate utility room for added convenience. A conservatory extends from the rear of the property, creating a light-filled space that seamlessly connects the indoors with the outdoors. The property is offered with no onward chain, making it an ideal choice for those seeking a smooth and swift move.

The outside space has been designed with ease of maintenance and versatility in mind. The front of the property is laid to block paving, providing ample off-road parking and the flexibility to accommodate additional vehicles if required. The rear garden features a patio seating area and a matching path that extends around the conservatory, perfect for enjoying the coastal air or entertaining guests. The remainder of the garden has been thoughtfully landscaped for low maintenance, with a shaped area of artificial grass and shingle or stone covered edges, ensuring it can be enjoyed throughout the year without the need for extensive upkeep. The garage is accessed via an electrically operated door and benefits from both light and power, providing secure storage or additional parking as needed. This property combines stunning views, practical features, and attractive outside space, making it a truly desirable coastal home.

Situation

  • Entrance Hall
  • Cloakroom
  • Living room 14' 6" x 11' 7" (4.42m x 3.53m)
  • Kitchen breakfast room 18' 9" x 10' 8" (5.71m x 3.24m)
  • Utility Room 9' 0" x 5' 0" (2.75m x 1.52m)
  • Conservatory 15' 11" x 10' 6" (4.85m x 3.21m)
  • Landing
  • Bedroom One 12' 8" x 11' 11" (3.87m x 3.63m)
  • En-Suite Shower Room
  • Bedroom Two 12' 11" x 11' 6" (3.93m x 3.51m)
  • Bedroom Three 9' 9" x 9' 5" (2.97m x 2.87m)
  • Bedroom Four 9' 7" x 9' 0" (2.93m x 2.75m)
  • Balcony
  • Family Bathroom

Council Tax Band: E

Tenure: Freehold

EPC Rating: C

Why live in Selsey?

It may be classed as a town, but Selsey is still a seaside village at heart and, whether you’re looking for a dream home by the beach, a place to indulge your passion for watersports or a quiet retreat away from the hustle and bustle of life, Selsey has it all.

The old town in the south east quarter is known for its charming historic properties, including 17th century thatched houses while you’ll find many large and secluded homes offering stunning views of the water by the seafront. The north of Selsey has many 1970s style properties with more substantial, semi-rural homes set around them.

You’ll find a great selection of shops, pubs and restaurants right here on the High Street along with a strong sense of community, especially at Christmas when the Selsey Lights are a sight to behold. We have two local primary schools, Medmerry Primary and the Seal Primary Academy, and The Academy Selsey senior school in the town with more options in Chichester, including Chichester High School.

Selsey has a long-standing love of sport and is proud home to both Selsey Cricket Club and the Selsey Football and Social Club, as well as a bowls and tennis club, but you’ll find even more sporting activity by the water. If you like scuba diving or snorkelling we have some of the best water for diving in the UK, with more than 100 wrecks to explore just off the coast. If you’re keen to learn, the Mulberry Divers Centre on East Beach offers tuition to everyone from complete beginners to advanced divers. There’s swimming, sailing and windsurfing around the Selsey Bill headland or bike rides along the coastal cycle path or to the stunning beaches at Bracklesham Bay, East Wittering or West Wittering where you can feel the sand under your feet.

While Selsey offers the best of seaside living, it’s just less than 10 miles from the cultural heartland of Chichester and everything that the famous cathedral city has to offer, from the plentiful shops to the Festival Theatre. So you see, Selsey really does have it all.

If you’d like to buy, sell or let a property in Selsey, get in touch with your local team and discover the Henry Adams difference for yourself.

Read more