Facebook

The Street, Thakeham, RH20

3 Bed │ 2 Bath │ 2 Rec

Offers Over £800,000

Save
Storrington

Christina Bearryman

Sales Associate

Key features

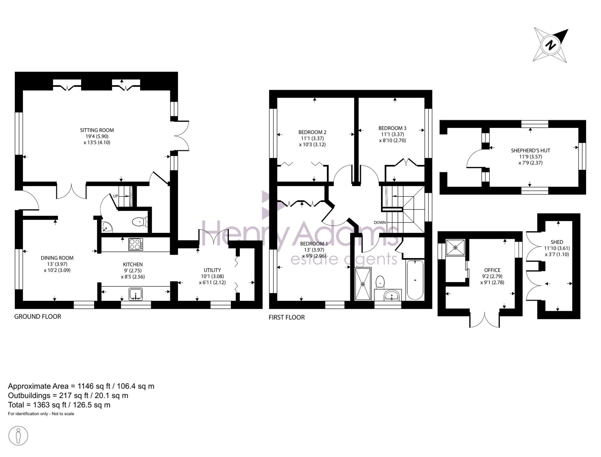
  • A beautifully presented and upgraded property in heart of village of Thakeham with driveway parking and additional woodland area with shepherds hut
  • Sitting room with woodburner and French doors to patio terrace
  • Dining room opening to kitchen with range of high and low level cupboards, integrated fridge / freezer and dishwasher and range cooker
  • Large utility cupboard with space for appliances and additional storage with access to garden
  • Garden office space or additional accommodation with shower room
  • Three double bedrooms to first floor and family bathroom with bath and separate double shower
  • Parking for two vehicles at the rear of the property
  • Woodland area across lane from house with Shepherds hut, ideal space for fire pit and seating overlooking paddocks
  • Low maintenance rear garden with large patio area, various sheds for additional storage

Full description

A beautifully presented and thoughtfully upgraded three-bedroom detached house, this property is set in the heart of the desirable village of Thakeham. The welcoming entrance hall features polished wood flooring, which continues through the spacious sitting room and dining area. The sitting room is enhanced by a woodburner and French doors that open directly onto the patio terrace, creating a seamless connection between indoor and outdoor living. The dining room opens to a contemporary kitchen, fitted with a range of high and low-level cupboards, an integrated fridge and freezer, a dishwasher, and a stylish range cooker. A large utility cupboard provides ample space for appliances and additional storage, with direct access to the rear garden. Upstairs, three double bedrooms offer comfortable accommodation, each benefiting from bespoke shutters on the windows. The family bathroom is fitted with both a bath and a separate double shower for added convenience. A versatile garden office or guest suite, complete with a shower room, provides an ideal space for home working or additional accommodation. At the rear of the property, there is driveway parking for two vehicles, ensuring convenience for residents and visitors alike.

The outside space is a true highlight of this property, offering a range of areas for relaxation and recreation. The rear garden has been designed for low maintenance, featuring a substantial patio area that is perfect for al fresco dining and entertaining. Various sheds provide excellent storage solutions for garden tools and equipment. Across the lane from the house, a private woodland area offers a unique retreat, complete with a charming shepherd’s hut. This woodland space is ideal for hosting gatherings around a fire pit and enjoying views over the neighbouring paddocks. Whether you are seeking a peaceful spot to unwind or a space for outdoor entertaining, the combination of garden and woodland ensures a versatile and appealing environment. The property’s location within Thakeham village places it within easy reach of local amenities, countryside walks, and excellent transport links, making it an exceptional choice for families and professionals looking for a blend of comfort, style, and rural charm.

Situation

Thakeham is a quintessential English village with pretty period cottages and homes together with a pub and church. There are an abundance of walks in the area for your four legged friends. The development of Abingworth Meadows has a village store and Cafe provide a hub for the village near the Cricket pitch and a village hall along with a vets. The larger village of Storrington situated at the foot of the South Downs and giving access to the South Downs National Park is just over two miles away and provides a good range of local shops and amenities including a Waitrose Store, library, health centre, dentists together with a wide variety of sports and social clubs. The nearest train station is at Billingshurst approximately 5 miles to the north with services to London Victoria and the coast. The larger centres of Horsham and Worthing are approximately 13 and 12 miles respectively.
  • Entrance Hall
  • Sitting Room
  • Dining Room
  • Kitchen
  • Utility Room
  • Cloakroom
  • Bedroom 1
  • Bedroom 2
  • Bedroom 3
  • Bathroom
  • Home office / Guest Room with shower
  • Shepherds Hut

Council Tax Band: F

Tenure: Freehold

EPC Rating: C

Why live in Storrington?

This picture-perfect village lies at the foot of the South Downs National Park, halfway along the South Downs Way. Properties here include bungalows, family homes and the famous Wells cottages that were individually designed by the architect Reginald Fairfax Wells in the 1920s to look and feel like 17th century buildings with thatched roofs, small windows and whitewashed exteriors.

Many of the homes in Storrington have wonderful views across rolling countryside and a conservation area just off the bustling high street ensures Storrington will remain as beautiful as it is today for generations to come.

There are lots of specialist shops in the town and convenient amenities such as the large recreational ground with its football and cricket pitches, the Chanctonbury Leisure Centre and an abundance of community groups offering classes in all sorts of interesting activities from ballroom dancing to photography. For a spot of culture, visit the Parham House and Gardens or the local Storrington and District Museum and for outdoor pursuits, take time to explore the natural beauty of the South Downs on foot, bike or horseback or, for a truly spectacular experience, take to the air in a glider.

Our local schools belong to a cluster group called STARS (Storrington Area Rural Schools) and, between them, offer a choice of paths from Reception through to Year 13. Steyning Grammar School is included in the list of STARS and is a popular choice as it’s non-selective and has its own Sixth Form.

Storrington is well connected too; the nearest train station is in the neighbouring village of Pulborough. The five-mile journey only takes 10 minutes by car or you can take a bus; the bus timetable is synced with the train timetable to make life even easier for local commuters.

If you’d like to buy, sell or let a property in Storrington, get in touch with your local team and discover the Henry Adams difference for yourself.

Read more