Facebook

Summerfield Road, West Wittering, PO20

3 Bed │ 1 Bath │ 1 Rec

Guide Price £425,000

Save
East Wittering

Rachel Treagust

Branch Manager

Key features

  • Attractive semi-detached home
  • Modern, well fitted kitchen
  • Bright dual aspect living room
  • Downstairs bedroom or office
  • Two good-sized bedrooms
  • Contemporary walk-in shower room
  • South westerly rear garden
  • Summerhouse, shed and greenhouse
  • Off-road driveway parking
  • No forward chain

Full description

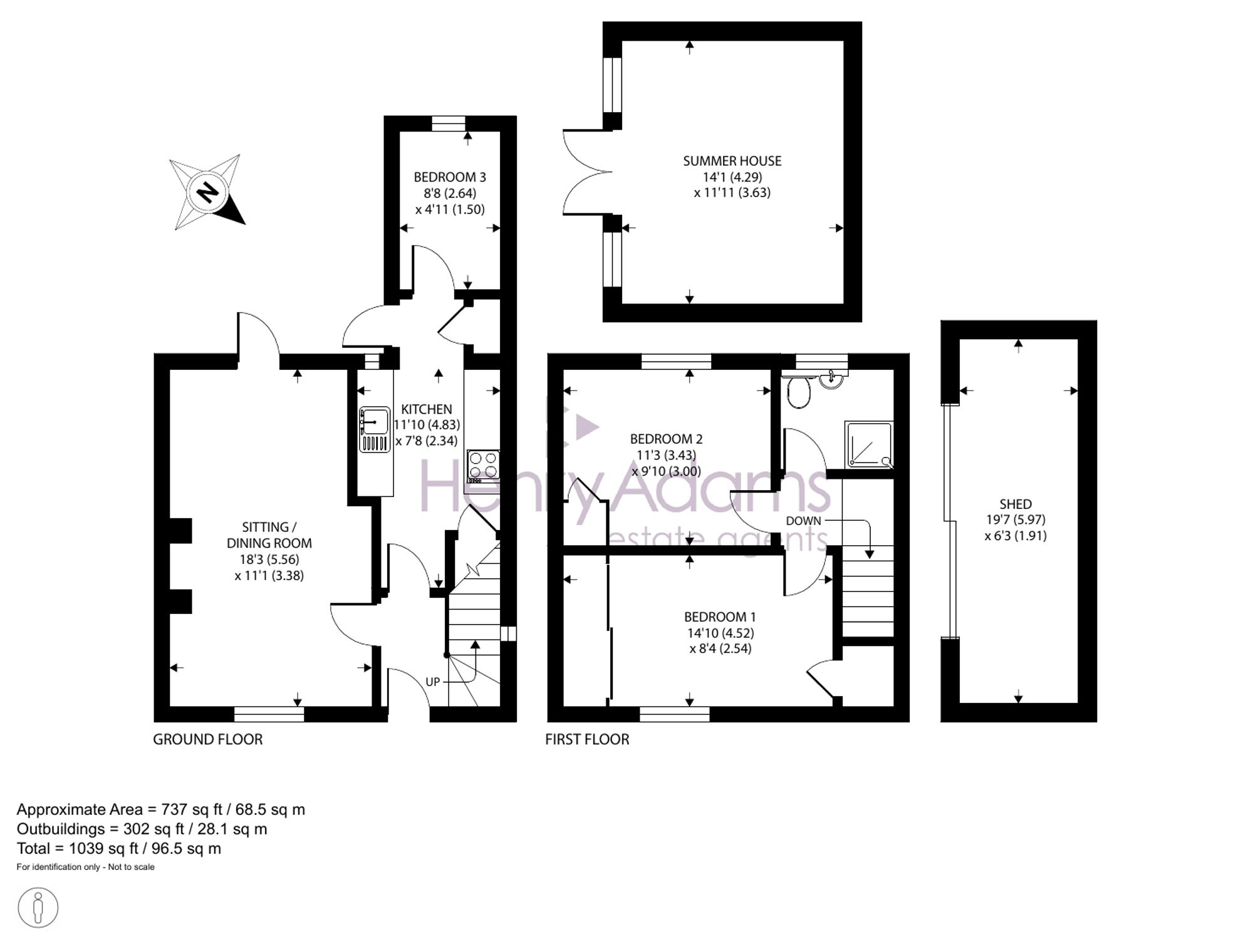
This well presented two bedroom semi-detached house offers a smart blend of character features and modern updates. The attractive brick exterior is complemented by a pitched roof porch and a gravel driveway providing convenient off road parking. A side gate gives straightforward access to the rear garden.

Inside, the reception room features wooden flooring, a fireplace, large shuttered windows and dual aspect, creating a bright and comfortable living and dining space. The modern kitchen includes dark cabinetry, a farmhouse style sink, neutral tiling and integrated appliances. A downstairs single bedroom or office space completes the downstairs accommodation, featuring exposed beams adding to the character. Glass doors from both the kitchen and living area open directly onto the garden.

Upstairs, two further bedrooms enjoy good natural light and practical built in wardrobes. Window shutters and contemporary lighting continue the home’s clean, modern feel.The family bathroom is finished with tiled walls and a modern walk-in shower.

The rear garden is a key feature, with its south westerly orientation, well kept lawn, mature planting and dedicated seating area. A wooden shed and greenhouse provide useful storage and space for gardening, along with the added benefit of a summerhouse

Situation

  • Sitting/Dining Room 18' 3" x 11' 1" (5.56m x 3.38m)
  • Kitchen 15' 10" x 7' 8" (4.83m x 2.34m)
  • Bedroom 1 14' 10" x 8' 4" (4.52m x 2.54m)
  • Bedroom 2 11' 3" x 9' 10" (3.43m x 3.00m)
  • Bedroom 3 8' 8" x 4' 11" (2.64m x 1.50m)
  • Bathroom

Council Tax Band: B

Tenure: Freehold

EPC Rating: D

Why live in the Witterings?

People flock to East Wittering during the holiday season thanks to our world-famous beaches that are so beautiful and a way of life that’s relaxed and warm.

It’s little wonder we experienced significant building development during the 1960s and ‘80s when our rich mix of character house styles in the Witterings made it hard for people to leave. Many of the properties in the area enjoy wonderful views across the English Channel and the sound of distant waves provides a soothing backing track to everyday life here.

There’s no shortage of things to do in the area, especially if you enjoy spending time on the beach, playing water sports and experiencing the countryside and wildlife.  Both East and West Wittering are well known for sailing and surfing and there are local sailing clubs at West Wittering, Itchenor and Dell Quay and mooring facilities at Chichester Marina. West Wittering beach is postcard-perfect with its vast expanses of fine golden sand while East Wittering is more typically English with a shingle shelf that’s exposed when the tide goes out leaving behind stunning areas of wet sand where you can make sandcastles to your heart’s content. The nearby Bracklesham Bay is especially popular with surfers, divers, windsurfers and paddle boarders as well as being a treasure trove for fossil hunters.

We have everything here you need to enjoy this idyllic lifestyle here. In the village you’ll find a good selection of shops, including mini supermarkets, greengrocers, butchers, banks, bakers and a fishmonger and everything is close by in Chichester and Portsmouth.  We have two local schools for children up to 11 years of age at East Wittering Community Primary School and West Wittering Parochial C of E School and a choice of secondary schools and further education options in Chichester.

If you’d like to buy, sell or let a property in East Wittering, get in touch with your local team and discover the Henry Adams difference for yourself.

Read more