Facebook

Elmleigh, Midhurst, GU29

2 Bed │ 1 Bath │ 1 Rec

Offers in Region of £245,000

Save
Midhurst

Matt Shepherd

Partner

Key features

  • Two Bedrooms, One Bathroom
  • Ground Floor Apartment
  • Share of Freehold
  • Communal Garden
  • Garage and Parking
  • Bright Southerly Aspect
  • Close to Midhurst Town Centre and local transport

Full description

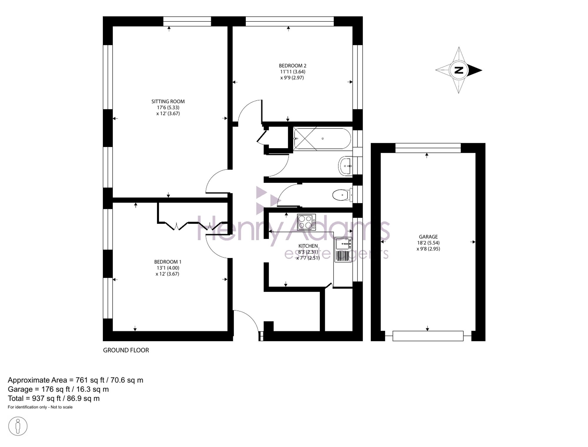
This well presented, two-bedroom, ground floor apartment offers comfortable and convenient living in a sought-after location near the heart of Midhurst. The property forms part of a well-maintained development and benefits from a share of the freehold, providing peace of mind for prospective buyers. The apartment features a spacious living and dining area, enhanced by a bright southerly aspect that welcomes plenty of natural light throughout the day. The modern fitted kitchen is designed for convenience and functionality, while two well-proportioned bedrooms provide flexible accommodation for individuals, couples, or those seeking a guest room or home office. A bathroom completes the internal layout. The property also includes the advantage of a private garage, as well as plenty of unallocated parking for residents.

The communal gardens surrounding the development offer a peaceful retreat and a wonderful sense of community. Mature trees, well-tended lawns, and established planting provide an attractive outlook and a tranquil environment for residents to enjoy throughout the seasons. The property’s location is perfectly positioned for easy access to Midhurst town centre, placing a variety of local shops, cafes, and amenities within a short walk. Excellent transport links are also close at hand, making this an ideal base for commuters or those who wish to explore the beautiful South Downs National Park.

Situation

  • Living Room 17' 6" x 12' 0" (5.33m x 3.66m)
  • Kitchen 8' 3" x 7' 7" (2.52m x 2.31m)
  • Bathroom
  • Bedroom One 13' 1" x 12' 0" (3.99m x 3.66m)
  • Bedroom Two 11' 11" x 9' 9" (3.63m x 2.97m)

Council Tax Band: C

Tenure: Share of Freehold

EPC Rating: D

Why live in Midhurst?

Midhurst lies on the River Rother, just 12 miles north of Chichester, and has the remarkable claim to fame of being the home of British polo thanks to the Cowdray Park Polo Club on the local Cowdray Estate, but there’s so much more to this pretty market town. It’s centuries old, boasting more than 100 listed buildings with a charming mix of medieval, Georgian, Victorian and Edwardian architecture that sits comfortably alongside more contemporary new homes.

The narrow lanes of Midhurst’s old town offer a fantastic variety of places to shop with an abundance of small independent boutiques all housed in ancient buildings. There are plenty of places to dine in and around the town centre, too, with options ranging from up-market restaurants specialising in local produce to high street favourites and charming tearooms where you can enjoy your favourite afternoon treat.

You’ll also find plenty to do here – when you’re not engaged in polo, fly-fishing or clay pigeon shooting on the Cowdray Estate, you could head over to the Cowdray Golf Club to enjoy some of the most scenic views in West Sussex and get involved with one of the many other clubs and societies that use it as a base. You’ll find a local camera club, the Midhurst Players, the Gardening Club and in August you could join in with the ten days of fun at the Midhurst Music, Arts and Dramatic Festival, ‘MADhurst’. There’s never a dull moment here!

As far as family life goes, we have many well-regarded schools in and around the area, all with strong Ofsted reports and excellent reputations, including Midhurst C of E Primary and Midhurst Rother College, which, between them, cater for pupils from age four to 18.

If you’d like to buy, sell or let a property in Midhurst, get in touch with your local team and discover the Henry Adams difference for yourself.

Read more