Facebook

Punches Lane, South Mundham, PO20

3 Bed │ 2 Bath │ 4 Rec

Guide Price £1,000,000

Save
Chichester

Richard Longhurst

Partner

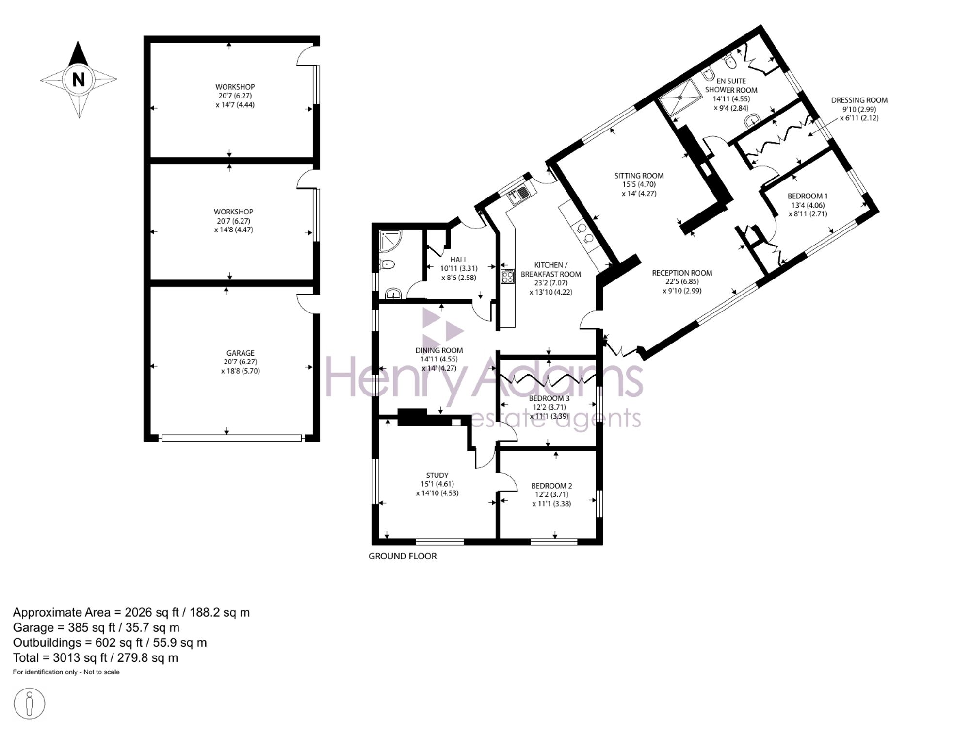
Key features

  • Set in approximately 1.43 acres of mature landscaped gardens
  • Charming Edwardian origins with high ceilings and character features
  • Versatile single storey residence with potential to extend into vast loft space
  • Spacious kitchen/breakfast room
  • Sitting room with multifuel burner in feature fireplace
  • Dual aspect principal bedroom suite with dressing room and large bathroom
  • Detached double garage with two large workshops
  • Long private driveway
  • Idyllic semi-rural setting just four miles south of Chichester

Full description

A home of character in Idyllic South Mundham

Set amidst 1.43 acres of mature, park-like gardens, this charming residence combines timeless character of its Edwardian origins with thoughtful modern updates. Just four miles south of Chichester, it offers a rare balance of rural tranquillity and easy access to the city and coast.

From the moment you arrive, the long block-paved driveway creates a sense of approach, opening to a detached double garage and spacious workshops at the rear.    

Inside, the home unfolds with a sense of warmth and versatility. The welcoming hallway sets the tone, leading to an elegant dining room where high ceilings and a feature fireplace hint at the property’s Edwardian origins. A bright dual-aspect study provides a perfect retreat for reading, working or quiet reflection, while two bedrooms in this wing offer comfortable family or guest accommodation.

At the heart of the home lies the kitchen breakfast room, a light-filled space refitted with classic shaker style cabinetry, Minerva worktops and quality appliances including a Neff double oven and AEG induction hob. For those who appreciate tradition, the oil-fired Stanley stove offers the pleasure of cooking in the old way while also serving the central heating. A handsome pine dresser in the breakfast area adds a touch of country charm.

Adjoining the kitchen are two interlinked sitting rooms, creating both intimacy and flow. The principal sitting room centres around a multifuel burner in a striking fireplace surround, a welcoming spot to gather on cooler evenings.

The principal suite enjoys its own private wing. A spacious, dual-aspect bedroom, a dedicated dressing room with wall-to-wall wardrobes and a large bathroom with a walk-in shower, designed for comfort and practicality.

Above, a vast boarded roof space with four Velux windows hints at further possibilities, whether for expansion, hobbies or storage.

Beyond the walls, the gardens truly define this home. With sweeping lawns, mature trees and colourful borders, they create a sense of peaceful seclusion while offering endless scope for outdoor living. Whether hosting summer gatherings, tending to the grounds or simply enjoying the wildlife that flourishes here, the setting is a constant source of delight.

Chichester District Council - 25/26 Tax Band E £2,868.75

EPC-E

Directions - Proceed south down Vinnetrow Road and at the roundabout proceed straight over into Mill Lane. Follow the road south into Runcton Lane. Continue along this road taking the first turning left into Bowley Lane (signposed Bowley Banwell). Continue south, pass the turning left for Bowley Lane, and on into Punches Lane where Punches Corner is on right after a short distance. What3words - factor.twins.matter

Situation

The hamlet of South Mundham is approximately four miles south east of Chichester. Nearby Runcton, offers a public house/restaurant and a farm shop on the Lagness/Pagham road. In the nearby village of North Mundham there is a popular primary school. The cathedral city of Chichester offers excellent high street shopping, many fashionable restaurants, cafes and bars, Festival Theatre and a mainline station to London Victoria. Goodwood is located to the north and is famous for its many event days including the world renowned Festival of Speed and Goodwood Revival for motor racing enthusiasts and a season of horse racing including the Qatar Goodwood Festival. There are excellent sailing facilities around Chichester Harbour and water sports from the beaches at West Wittering. The area is a paradise for wildlife enthusiasts, with beautiful walks and cycle tracks over the South Downs and around the harbour.

Council Tax Band: E

Tenure: Freehold

EPC Rating: E

Why live in Chichester?

We consider ourselves very lucky to be working in a city that blends so many different architectural styles, from elegant Georgian buildings to contemporary new apartments and waterside properties that overlook the harbour.

In 2013, The Sunday Times listed Chichester as one of the top places to live in the UK with ‘something for everyone’ – and they weren’t wrong. Chichester is a cathedral city, a county town and home to some of the oldest churches and buildings in the country. There are many well-regarded public and state schools in the local area with further and higher education options available from Chichester College, West Dean College and the University of Chichester. Our great schools have always made Chichester very appealing for those looking for the perfect place to raise a family.

Our city centre is a shopper’s paradise and there are great places to eat and drink, from elegant restaurants to cosy cafés and pubs, all set along the city’s four main streets. Chichester Cathedral on West Street dominates the skyline and, on summer afternoons, its grounds are filled with local people enjoying picnics. In the evenings, the Cathedral plays a central part in the city’s nightlife by hosting classical music events.

Chichester has a number of public parks, the Chichester Tennis and Racquets Fitness Club and Westgate Leisure Centre, where you’ll find a large swimming pool and skate park and, if sailing is your thing, Chichester Harbour is a haven for you. There really is so much to do here you’ll be spoilt for choice; spend the day on one of the many local beaches, stretch your legs on the stunning South Downs or catch a show at the Festival Theatre before it moves to a permanent home in London’s West End.

If you’d like to buy, sell or let a property in Chichester, get in touch with your local team and discover the Henry Adams difference for yourself.

Read more