Facebook

Stirling Road, Chichester, PO19

2 Bed │ 2 Bath │ 1 Rec

Guide Price £550,000

Save
Chichester

Richard Longhurst

Partner

Key features

  • Beautifully presented
  • Close to city centre
  • Off-road parking
  • West facing garden
  • Useful garden studio/office
  • Two bedrooms
  • Modern kitchen and shower rooms
  • Viewing recommended

Full description

A delightful home with west facing garden.

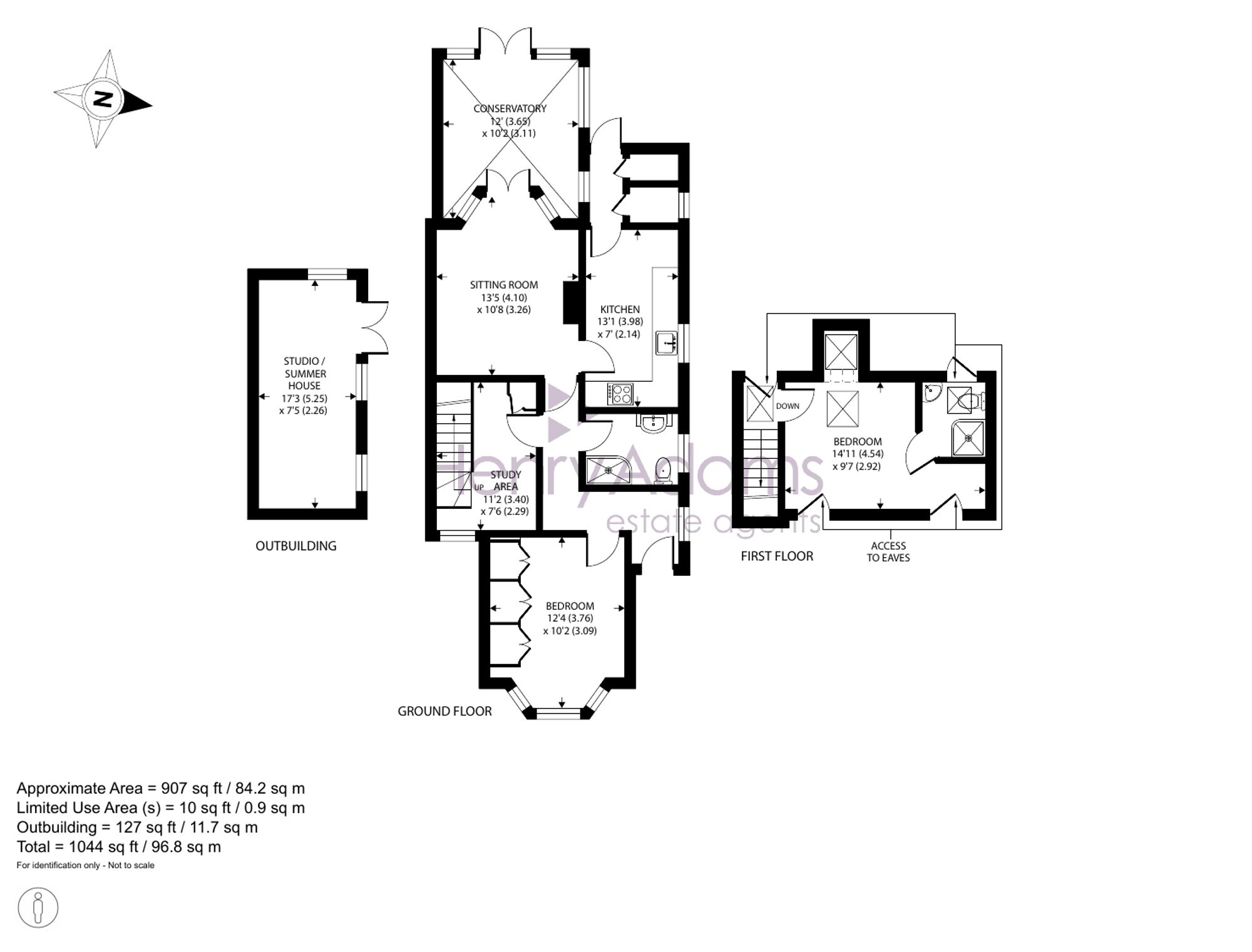
Nestled in a highly sought-after location within easy reach of Chichester city centre, this beautifully presented detached chalet bungalow offers a perfect blend of style, comfort and versatility. The property welcomes you with an entrance hall leading to a sitting room, which in turn flows into the delightful conservatory offering views and access to the west facing rear garden. The modern kitchen is fitted with stylish units and work surfaces, complemented by a convenient utility area. The ground floor also features a double bedroom and a contemporary shower room. A staircase leads up from useful study area to the first floor where a double bedroom can be found along with an en-suite shower room/WC.

Outside, the property benefits from off-road parking to the front, while the charming well maintained west-facing rear garden features a patio adjoining the rear of the property which gives way to lawn. A garden cabin, complete with power and lighting, ideal as a studio, home office or guest space can be found to the rear of the garden.

This exceptional home combines elegant living with modern practicality, all within a convenient distance of the city centre.

Chichester District Council - 25/26 Tax Band D £2,337.06 EPC-D

Directions - From our office proceed into St Johns Street and to the junction with Market Avenue. Cross over Market Avenue into Stirling Road and bear right into Stirling Road. Number 14 is about half way down on the right. What3words - data.laser.spike

Situation

The cathedral city of Chichester offers excellent high street shopping, many fashionable restaurants, cafes and bars, the Festival Theatre and a mainline station to London Victoria. Goodwood is famous for its many event days including the world renowned Festival of Speed and Goodwood Revival for motor racing enthusiasts and a season of horse racing including the Qatar Goodwood Festival. There are superb sailing facilities around Chichester Harbour and water sports from the beaches at West Wittering. The area is a paradise for wildlife enthusiasts, with beautiful walks and cycle tracks over the South Downs and around the harbour.

Council Tax Band: D

Tenure: Freehold

EPC Rating: D

Why live in Chichester?

We consider ourselves very lucky to be working in a city that blends so many different architectural styles, from elegant Georgian buildings to contemporary new apartments and waterside properties that overlook the harbour.

In 2013, The Sunday Times listed Chichester as one of the top places to live in the UK with ‘something for everyone’ – and they weren’t wrong. Chichester is a cathedral city, a county town and home to some of the oldest churches and buildings in the country. There are many well-regarded public and state schools in the local area with further and higher education options available from Chichester College, West Dean College and the University of Chichester. Our great schools have always made Chichester very appealing for those looking for the perfect place to raise a family.

Our city centre is a shopper’s paradise and there are great places to eat and drink, from elegant restaurants to cosy cafés and pubs, all set along the city’s four main streets. Chichester Cathedral on West Street dominates the skyline and, on summer afternoons, its grounds are filled with local people enjoying picnics. In the evenings, the Cathedral plays a central part in the city’s nightlife by hosting classical music events.

Chichester has a number of public parks, the Chichester Tennis and Racquets Fitness Club and Westgate Leisure Centre, where you’ll find a large swimming pool and skate park and, if sailing is your thing, Chichester Harbour is a haven for you. There really is so much to do here you’ll be spoilt for choice; spend the day on one of the many local beaches, stretch your legs on the stunning South Downs or catch a show at the Festival Theatre before it moves to a permanent home in London’s West End.

If you’d like to buy, sell or let a property in Chichester, get in touch with your local team and discover the Henry Adams difference for yourself.

Read more