Facebook

Osprey Drive, Chichester, PO20

4 Bed │ 3 Bath │ 3 Rec

Guide Price £485,000

Save
Chichester

Richard Longhurst

Partner

Key features

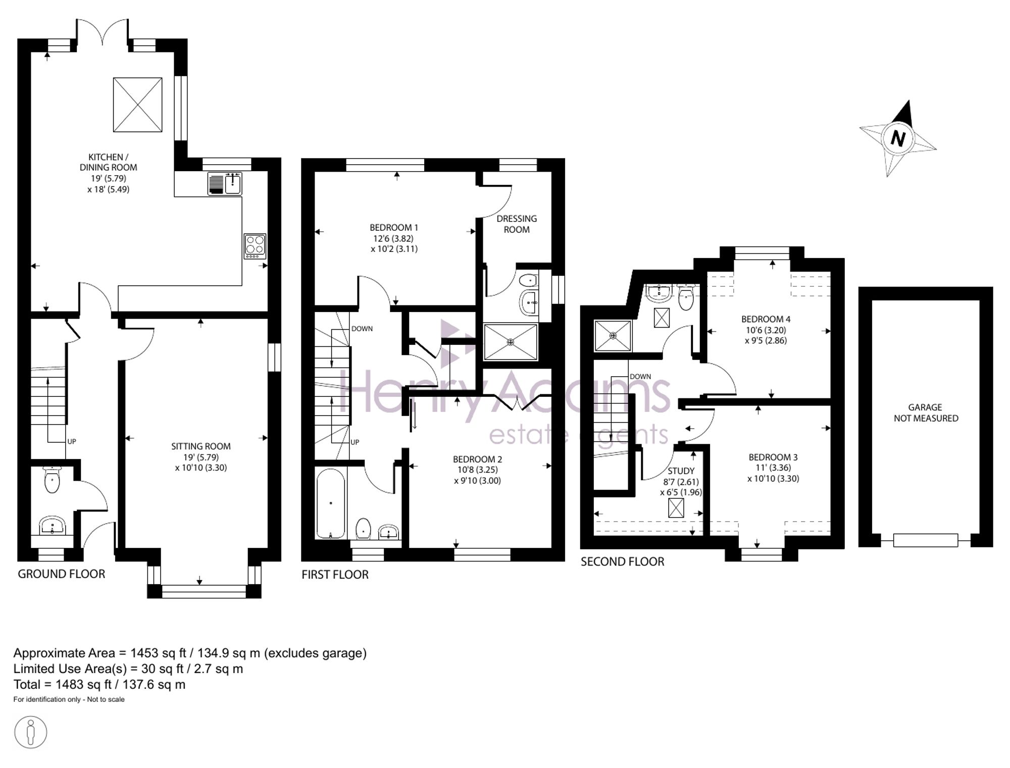
  • Bright spacious accommodation
  • Arranged over three floors
  • Fabulous kitchen/family/dining room
  • Upgraded kitchen to include quality appliances
  • Principal bedroom with walk through dressing room and en-suite shower
  • Three further bedrooms, two further bathrooms
  • Study
  • Private drive and garage
  • Lovely garden

Full description

An exceptional four-bedroom detached family home, presented in pristine show-home condition throughout, built in 2024 by five-star builders Cala Homes.

The house enjoys fabulous, uninterrupted lakeland views from the sitting room and two bedrooms, creating a truly special setting. The accommodation is light, spacious, and beautifully appointed. The immaculate open-plan kitchen/family/dining room is a standout feature, fitted with upgraded pastel-grey shaker-style cabinetry and a comprehensive range of integrated appliances, including a double oven, five-burner gas hob, fridge freezer and dishwasher. The dining area boasts a vaulted ceiling with Velux window, dual-aspect glazing and French doors opening directly onto the rear garden, perfect for modern family living and entertaining. The welcoming entrance hall includes a cloakroom/WC, while the sitting room enjoys the stunning lakeland outlook.

On the first floor, the principal bedroom features a walk-through dressing room and a stylish en-suite shower room. There is a second double bedroom on this level, along with a contemporary family bathroom and a utility room with plumbing for a washing machine. The second floor provides two further well-proportioned bedrooms and an additional shower room, making this home ideal for families or guests.

Externally, the property offers an open-plan front garden and a driveway running along the side of the house, leading to a large single garage. Gated access opens to a beautifully landscaped rear garden, featuring a tiled patio, immaculately maintained lawn and well-stocked flower beds. A further seating area and pergola are located behind the garage, creating a peaceful and private outdoor retreat.

Chichester District Council - Tax Band E £2,855.96 EPC-B

Directions- Take the exit off Portfield roundabout onto the Chichester A27 by-pass (heading west). Take the slip road left onto Shopwhyke estate (Western Road). Turn left onto Longacres Way, then take the second right onto Finch Place. At the end of the road turn left and the property is on the left. What3words - reconnect.uncouth.reaction

Situation

Situated on eastern side of Chichester with easy access of the A27, the property is one mile distance to Chichester city centre and conveniently located only a quarter of a mile walk from the Portfield out of town retail park, which boasts flagship stores such as John Lewis, M&S Food Hall and Sainsbury's. The cathedral city of Chichester which offers excellent high street shopping, many fashionable restaurants, cafes and bars, the Festival Theatre and a mainline station to London Victoria. Nearby Goodwood is famous for its many event days including the world renowned Festival of Speed and Goodwood Revival for motor racing enthusiasts and a season of horse racing including the Qatar Goodwood Festival. There are superb sailing facilities around Chichester Harbour and water sports from the beaches at West Wittering. The area is a paradise for wildlife enthusiasts, with beautiful walks and cycle tracks over the South Downs and around the harbour.

Council Tax Band: E

Tenure: Freehold

EPC Rating: B

Why live in Chichester?

We consider ourselves very lucky to be working in a city that blends so many different architectural styles, from elegant Georgian buildings to contemporary new apartments and waterside properties that overlook the harbour.

In 2013, The Sunday Times listed Chichester as one of the top places to live in the UK with ‘something for everyone’ – and they weren’t wrong. Chichester is a cathedral city, a county town and home to some of the oldest churches and buildings in the country. There are many well-regarded public and state schools in the local area with further and higher education options available from Chichester College, West Dean College and the University of Chichester. Our great schools have always made Chichester very appealing for those looking for the perfect place to raise a family.

Our city centre is a shopper’s paradise and there are great places to eat and drink, from elegant restaurants to cosy cafés and pubs, all set along the city’s four main streets. Chichester Cathedral on West Street dominates the skyline and, on summer afternoons, its grounds are filled with local people enjoying picnics. In the evenings, the Cathedral plays a central part in the city’s nightlife by hosting classical music events.

Chichester has a number of public parks, the Chichester Tennis and Racquets Fitness Club and Westgate Leisure Centre, where you’ll find a large swimming pool and skate park and, if sailing is your thing, Chichester Harbour is a haven for you. There really is so much to do here you’ll be spoilt for choice; spend the day on one of the many local beaches, stretch your legs on the stunning South Downs or catch a show at the Festival Theatre before it moves to a permanent home in London’s West End.

If you’d like to buy, sell or let a property in Chichester, get in touch with your local team and discover the Henry Adams difference for yourself.

Read more