Facebook

Longley Road, Chichester, PO19

4 Bed │ 3 Bath │ 1 Rec

Guide Price £530,000

Save
Chichester

Richard Longhurst

Partner

Key features

  • Sought after modern estate
  • Four double bedrooms
  • Versatile layout
  • Two allocated parking spaces
  • South facing rear garden
  • Viewing highly recommended

Full description

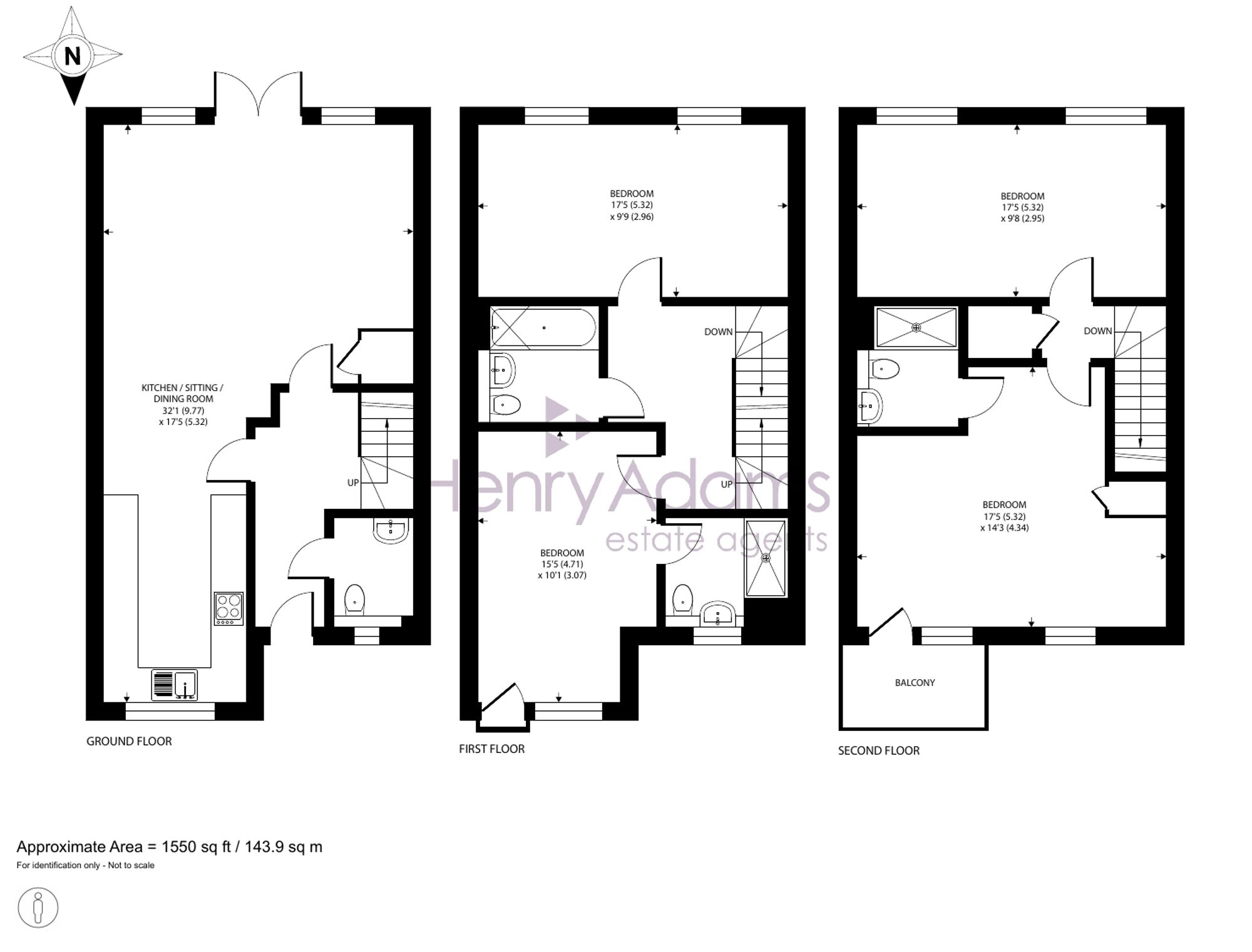
A well-proportioned town house.

This spacious town house is set within a highly sought-after modern estate, offering a versatile layout ideal for contemporary living. The ground floor features a generous open-plan kitchen and reception area, perfect for both everyday living and entertaining, with doors opening onto a private south-facing garden. A convenient cloakroom completes this level.

Upstairs, the first floor offers two well-proportioned double bedrooms, including one with an en-suite shower room, as well as a separate family bathroom. One of these bedrooms also benefits from a charming Juliet balcony. The top floor has two further double bedrooms, with the impressive principal suite featuring its own en-suite shower room and private balcony.

Additional highlights include two allocated parking spaces and a sunny south-facing rear garden, making this an ideal family home. Early viewing is highly recommended to fully appreciate all this property has to offer.

Estate Charge - Approx £980 pa

Chichester District Council - 26/27 Tax Band E £3,045.97 EPC-C

Directions - Proceed north along College Lane and take the second turning right into Blomfield Drive. Follow the road along into Longley Road and the property is on the right into between Homestead Road and Longley Road. What3words - alarm.alive.sings

Situation

Graylingwell Park is a unique contemporary development, set in 85 glorious acres of parkland, yet is only a mile from Chichester city centre, with its excellent pedestrianised shopping precincts and mainline station to London Victoria. In addition to this, there is a bus service every 30 minutes from Graylingwell Park into the city centre. Graylingwell Park offers a huge range of activities which are organised by Chichester Community Development Trust. From a playbus and after school club to a Saturday Café and Watercolour classes. Facilities on the development include The Lodge community centre, where many of the events are held. Nearby Goodwood is famous for its many event days. There are excellent sailing facilities around Chichester Harbour and water sports from the beaches at West Wittering. The area is a paradise for wildlife enthusiasts, with beautiful walks and cycle tracks over the South Downs and around the harbour.

Council Tax Band: E

Tenure: Freehold

EPC Rating: C

Why live in Chichester?

We consider ourselves very lucky to be working in a city that blends so many different architectural styles, from elegant Georgian buildings to contemporary new apartments and waterside properties that overlook the harbour.

In 2013, The Sunday Times listed Chichester as one of the top places to live in the UK with ‘something for everyone’ – and they weren’t wrong. Chichester is a cathedral city, a county town and home to some of the oldest churches and buildings in the country. There are many well-regarded public and state schools in the local area with further and higher education options available from Chichester College, West Dean College and the University of Chichester. Our great schools have always made Chichester very appealing for those looking for the perfect place to raise a family.

Our city centre is a shopper’s paradise and there are great places to eat and drink, from elegant restaurants to cosy cafés and pubs, all set along the city’s four main streets. Chichester Cathedral on West Street dominates the skyline and, on summer afternoons, its grounds are filled with local people enjoying picnics. In the evenings, the Cathedral plays a central part in the city’s nightlife by hosting classical music events.

Chichester has a number of public parks, the Chichester Tennis and Racquets Fitness Club and Westgate Leisure Centre, where you’ll find a large swimming pool and skate park and, if sailing is your thing, Chichester Harbour is a haven for you. There really is so much to do here you’ll be spoilt for choice; spend the day on one of the many local beaches, stretch your legs on the stunning South Downs or catch a show at the Festival Theatre before it moves to a permanent home in London’s West End.

If you’d like to buy, sell or let a property in Chichester, get in touch with your local team and discover the Henry Adams difference for yourself.

Read more