Facebook

Manor Lane, Selsey, PO20

3 Bed │ 1 Bath │ 2 Rec

Guide Price £285,000

Save
Selsey

Kevin Daymond

Partner

Key features

  • Three Bedroom Semi-Detached Bungalow
  • No Forward Chain
  • Porch
  • Living Room with Dining Area
  • Conservatory
  • Off Road Parking

Full description

This three bedroom semi-detached bungalow offers comfortable and versatile living accommodation, making it an ideal choice for a range of buyers. The property is offered for sale with no forward chain, ensuring a smooth and straightforward purchase process.

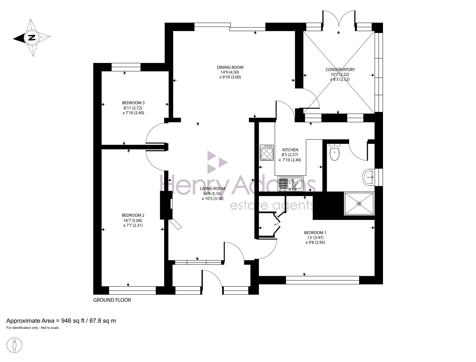
Upon entering, you are greeted by a useful porch (perfect for coats and shoes), which leads directly into the spacious living room with dining area. This welcoming space is ideal for both relaxing and entertaining, with ample room for a dining table and lounge furniture. The adjacent conservatory provides an additional reception area, flooded with natural light, creating a pleasant setting for reading or informal gatherings. The kitchen, three bedrooms and shower room complete the internal accommodation.

Externally, the bungalow includes an area of off road parking adjacent to the front garden, a valuable asset for residents and visitors alike. The rear garden features patios, a lawn, shrubs and borders.

This property represents an excellent opportunity to acquire a bungalow in need of a new lease of life in a sought-after location. Contact us today to book an internal viewing.

Situation

  • Entrance Porch
  • Living Room 16' 9" x 10' 5" (5.10m x 3.18m)
  • Dining Room 14' 9" x 9' 10" (4.50m x 3.00m)
  • Kitchen 8' 5" x 7' 10" (2.57m x 2.40m)
  • Conservatory 10' 7" x 8' 3" (3.22m x 2.52m)
  • Bedroom 1 13' 0" x 9' 8" (3.97m x 2.95m)
  • Bedroom 2 16' 7" x 7' 7" (5.06m x 2.31m)
  • Bedroom 3 8' 11" x 7' 10" (2.72m x 2.40m)
  • Shower Room 8' 6" x 5' 6" (2.60m x 1.68m)

Council Tax Band: C

Tenure: Freehold

EPC Rating: E

Why live in Selsey?

It may be classed as a town, but Selsey is still a seaside village at heart and, whether you’re looking for a dream home by the beach, a place to indulge your passion for watersports or a quiet retreat away from the hustle and bustle of life, Selsey has it all.

The old town in the south east quarter is known for its charming historic properties, including 17th century thatched houses while you’ll find many large and secluded homes offering stunning views of the water by the seafront. The north of Selsey has many 1970s style properties with more substantial, semi-rural homes set around them.

You’ll find a great selection of shops, pubs and restaurants right here on the High Street along with a strong sense of community, especially at Christmas when the Selsey Lights are a sight to behold. We have two local primary schools, Medmerry Primary and the Seal Primary Academy, and The Academy Selsey senior school in the town with more options in Chichester, including Chichester High School.

Selsey has a long-standing love of sport and is proud home to both Selsey Cricket Club and the Selsey Football and Social Club, as well as a bowls and tennis club, but you’ll find even more sporting activity by the water. If you like scuba diving or snorkelling we have some of the best water for diving in the UK, with more than 100 wrecks to explore just off the coast. If you’re keen to learn, the Mulberry Divers Centre on East Beach offers tuition to everyone from complete beginners to advanced divers. There’s swimming, sailing and windsurfing around the Selsey Bill headland or bike rides along the coastal cycle path or to the stunning beaches at Bracklesham Bay, East Wittering or West Wittering where you can feel the sand under your feet.

While Selsey offers the best of seaside living, it’s just less than 10 miles from the cultural heartland of Chichester and everything that the famous cathedral city has to offer, from the plentiful shops to the Festival Theatre. So you see, Selsey really does have it all.

If you’d like to buy, sell or let a property in Selsey, get in touch with your local team and discover the Henry Adams difference for yourself.

Read more