Facebook

Linseed Way, Yapton, BN18

4 Bed │ 2 Bath │ 2 Rec

In Excess of £425,000

Save
Chichester

Richard Longhurst

Partner

Key features

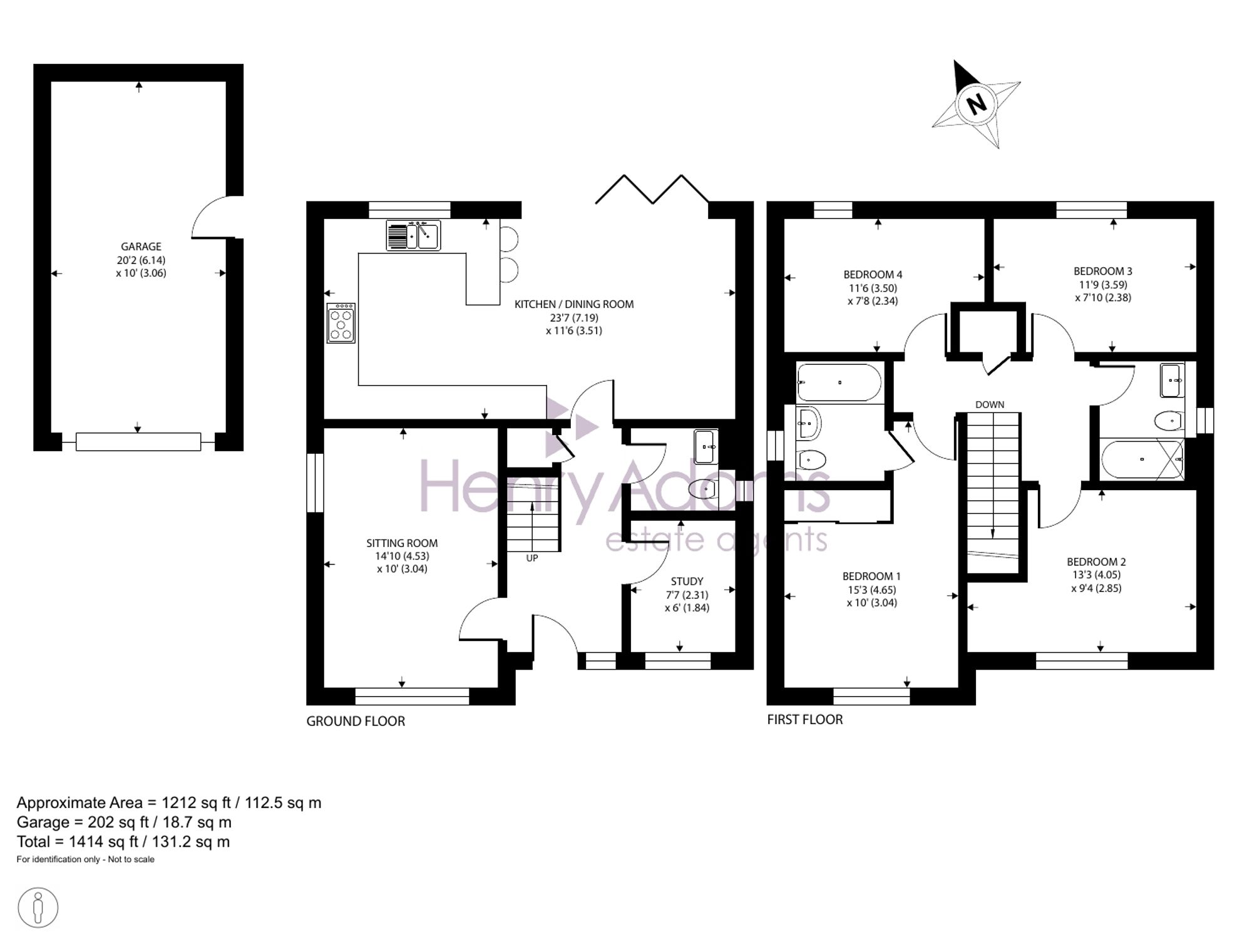
  • A well-proportioned family house
  • Popular village location
  • Hall and cloakroom
  • Dual aspect sitting room
  • Study
  • Open plan kitchen/family room
  • Principal bedroom with en-suite shower room
  • Driveway and garage

Full description

An attractive four bedroom detached family house in popular village location.

A modern four-bedroom detached family home, situated in a popular village location and built by Bovis Homes in 2021. The property benefits from the remainder of a 10-year NHBC warranty.

The accommodation begins with a welcoming entrance hall and cloakroom. A bright dual-aspect sitting room provides an excellent family living space, while the spacious kitchen/family room forms the heart of the home. Bi-folding doors from the dining area open directly onto the rear garden, creating a seamless indoor–outdoor feel. The kitchen is well appointed with integrated appliances including an electric oven, gas hob with cooker hood, fridge, freezer, dishwasher and washing machine. A study completes the ground floor accommodation. To the first floor are four bedrooms and a modern family bathroom. The principal bedroom features built-in mirror-fronted wardrobes and an en-suite shower room.

Externally, the front garden is open plan and a driveway extends along the side of the property, leading to a single garage at the rear with an EV charging point. The rear garden is predominantly laid to lawn, complemented by an L-shaped patio and mature borders, ideal for outdoor entertaining and family use.

Arun District Council - 25/26 Tax Band F £3,369.87 EPC-B

Directions - Proceed east on the A27 towards Arundel and at the Fontwell roundabout take the third exit onto Fontwell Avenue. Upon reaching the next roundabout take the first exit to Barnham . Continue through Barnham and on to Yapton (B2233). On entering Yapton proceed straight across the first roundabout and second roundabout in to Burndell Road (B2233). Take the first turning on the right into Barley Lane and then second turning on the left into Linseed Way. Number 27 is on the left. what3words - defeat.reception.erase

Situation

The village of Yapton offers a range of local shops, church, village hall and school. Further amenities can be found in Barnham including a mainline railway station to London Victoria. Nearby is Fontwell racecourse offering a season of jump horse racing whilst to the north west Goodwood is famous for its many event days. Yapton is situated between the cathedral city of Chichester and the historic town of Arundel. Chichester offers excellent high street shopping, many fashionable restaurants, cafes and bars and the Festival Theatre. The area to the north is a paradise for wildlife enthusiasts, with beautiful walks and cycle tracks over the South Downs National Park.

Council Tax Band: F

Tenure: Freehold

EPC Rating: B

Why live in Chichester?

We consider ourselves very lucky to be working in a city that blends so many different architectural styles, from elegant Georgian buildings to contemporary new apartments and waterside properties that overlook the harbour.

In 2013, The Sunday Times listed Chichester as one of the top places to live in the UK with ‘something for everyone’ – and they weren’t wrong. Chichester is a cathedral city, a county town and home to some of the oldest churches and buildings in the country. There are many well-regarded public and state schools in the local area with further and higher education options available from Chichester College, West Dean College and the University of Chichester. Our great schools have always made Chichester very appealing for those looking for the perfect place to raise a family.

Our city centre is a shopper’s paradise and there are great places to eat and drink, from elegant restaurants to cosy cafés and pubs, all set along the city’s four main streets. Chichester Cathedral on West Street dominates the skyline and, on summer afternoons, its grounds are filled with local people enjoying picnics. In the evenings, the Cathedral plays a central part in the city’s nightlife by hosting classical music events.

Chichester has a number of public parks, the Chichester Tennis and Racquets Fitness Club and Westgate Leisure Centre, where you’ll find a large swimming pool and skate park and, if sailing is your thing, Chichester Harbour is a haven for you. There really is so much to do here you’ll be spoilt for choice; spend the day on one of the many local beaches, stretch your legs on the stunning South Downs or catch a show at the Festival Theatre before it moves to a permanent home in London’s West End.

If you’d like to buy, sell or let a property in Chichester, get in touch with your local team and discover the Henry Adams difference for yourself.

Read more