Facebook

Woodpecker Lane, Storrington, RH20

3 Bed │ 2 Bath │ 3 Rec

Guide Price £875,000

Save
Storrington

Christina Bearryman

Sales Associate

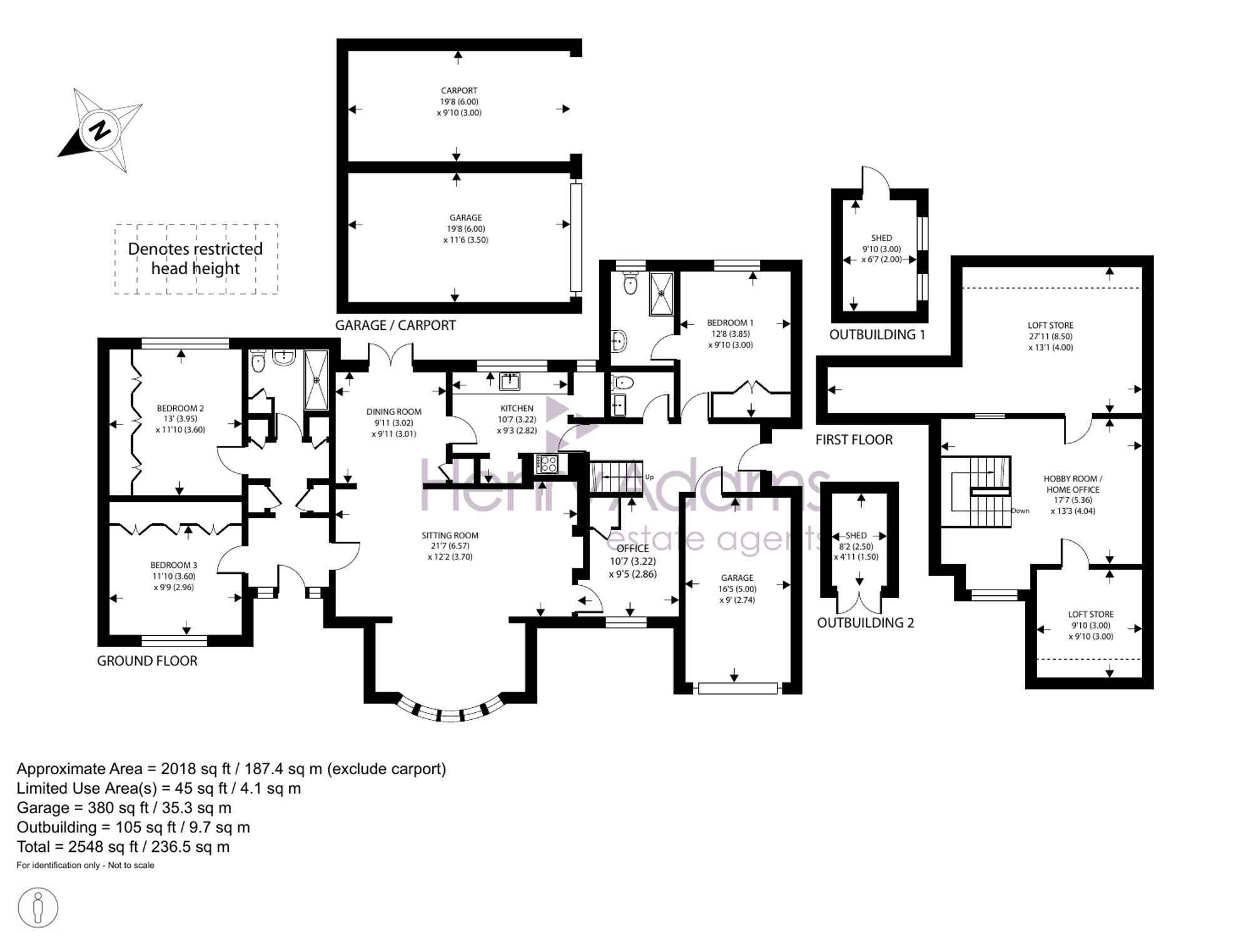
Key features

  • A well presented home updated by current owner and in an elevated position with views towards the South Downs
  • Large sitting room with wood burner opening to dining room
  • Three double bedrooms all with fitted wardrobes
  • Two shower rooms, one being en-suite and additional separate cloakroom
  • Loft room ideal for hobbies, working from home or playroom
  • Integral single garage
  • Car barn with garage and ample driveway parking
  • Close by to countryside walks, National Trust land and close to the amenities the village has to offer
  • Enclosed rear garden with large patio terrace, two garden sheds
  • Plans drawn up and approved for extension to kitchen at rear (lapsed 2025)

Full description

This beautifully presented three bedroom detached chalet bungalow is nestled in an elevated position with far-reaching views towards the South Downs, offering a versatile and spacious layout ideal for modern family living.

The property has been thoughtfully updated by the current owner and features a large sitting room with a wood burning stove, seamlessly opening into a generous dining area (perfect for entertaining or relaxing). Solid wood flooring enhances the reception space, while French doors provide an abundance of natural light and garden access. The open plan living area creates a welcoming atmosphere, complemented by a well-appointed kitchen with approved plans for a rear extension (lapsed 2025), offering exciting potential for further enhancement. There is also a ground floor office space. The property is very adaptable should you wish to create space for multi-generation living.

Each of the three double bedrooms benefits from built-in wardrobes, with the principal bedroom enjoying a stylish en-suite shower room. A further contemporary shower room and a separate cloakroom ensure convenience for family and guests alike.

The property also boasts a versatile loft room, ideal for use as a home office, hobbies space or playroom, adapting effortlessly to your lifestyle needs. Practicality is provided by an integral single garage, a detached car barn with garage, and a spacious driveway offering ample parking for multiple vehicles. Additional features include ample storage, two garden sheds and a landscaped garden, all designed for low maintenance living.

The home is situated within easy reach of picturesque countryside walks, National Trust land and the excellent amenities of the village, making it a superb choice for those seeking both tranquillity and convenience. This is a rare opportunity to acquire a well-maintained and flexible home in a highly desirable location, with scope to further personalise and extend to suit your requirements. Early viewing is highly recommended to appreciate the quality, space and outstanding setting this property has to offer.

Situation

Storrington village lies in the lea of the South Downs National Park and has an established range of shops including Waitrose, Costa and a number of independent shops and HSBC bank. There is a health centre and various sporting activities including football club, Pulborough Rugby Club, tennis club and not forgetting the South Downs for walking or cycling or the National Trust Sullington Warren or Sandgate Country Park. The towns of Horsham and Worthing are about 15 and 11 miles respectively with good access to the A24.
The area around provides a wider range of sporting and recreational facilities with West Sussex Golf Club and other golf clubs further afield at Cowdray Park and Goodwood. Of special note is the RSPB nature reserve at Wiggonholt Brooks. The area also has bowls and cricket clubs. There is gliding at nearby Parham, theatres at Chichester, Horsham and Worthing and sailing centres all along the coast.
  • Entrance Hall
  • Bedroom 2
  • Bedroom 3
  • Shower Room
  • Sitting room
  • Dining room
  • Kitchen 6' 7" x 8' 2" (2.00m x 2.50m)
  • Bedroom 1
  • En-Suite Shower Room
  • Wc
  • Hobby Room / Home Office
  • Office space

Council Tax Band: G

Tenure: Freehold

EPC Rating: D

Why live in Storrington?

This picture-perfect village lies at the foot of the South Downs National Park, halfway along the South Downs Way. Properties here include bungalows, family homes and the famous Wells cottages that were individually designed by the architect Reginald Fairfax Wells in the 1920s to look and feel like 17th century buildings with thatched roofs, small windows and whitewashed exteriors.

Many of the homes in Storrington have wonderful views across rolling countryside and a conservation area just off the bustling high street ensures Storrington will remain as beautiful as it is today for generations to come.

There are lots of specialist shops in the town and convenient amenities such as the large recreational ground with its football and cricket pitches, the Chanctonbury Leisure Centre and an abundance of community groups offering classes in all sorts of interesting activities from ballroom dancing to photography. For a spot of culture, visit the Parham House and Gardens or the local Storrington and District Museum and for outdoor pursuits, take time to explore the natural beauty of the South Downs on foot, bike or horseback or, for a truly spectacular experience, take to the air in a glider.

Our local schools belong to a cluster group called STARS (Storrington Area Rural Schools) and, between them, offer a choice of paths from Reception through to Year 13. Steyning Grammar School is included in the list of STARS and is a popular choice as it’s non-selective and has its own Sixth Form.

Storrington is well connected too; the nearest train station is in the neighbouring village of Pulborough. The five-mile journey only takes 10 minutes by car or you can take a bus; the bus timetable is synced with the train timetable to make life even easier for local commuters.

If you’d like to buy, sell or let a property in Storrington, get in touch with your local team and discover the Henry Adams difference for yourself.

Read more