Facebook

Meadow Close, Billingshurst, RH14

2 Bed │ 2 Bath │ 1 Rec

Guide Price £350,000

Save
Storrington

Christina Bearryman

Sales Associate

Key features

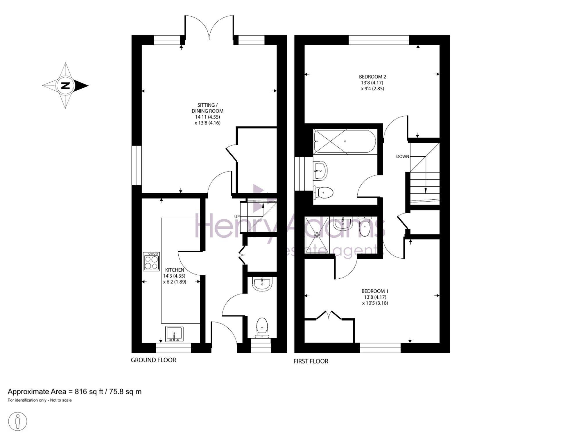
  • Entrance Hall with ground floor cloakroom and large storage cupboard
  • Sitting room with French doors to garden and large under stairs storage cupboard
  • Kitchen with integrated fridge / freezer, oven, hob and dishwasher, washer / dryer
  • Main bedroom with fitted wardrobe and en-suite shower room
  • Second double bedroom and family bathroom
  • Driveway parking for two vehicles
  • Generous garden with patio area and storage shed
  • NO FORWARD CHAIN

Full description

This beautifully presented two bedroom semi detached house offers a thoughtfully designed interior, ideal for modern living. Upon entering the property, you are welcomed by a spacious entrance hall featuring a ground floor cloakroom and a large storage cupboard, providing practical solutions for every-day organisation. The sitting room is both inviting and functional, with French doors that fill the space with natural light and a generous under stairs storage cupboard for added convenience. The contemporary kitchen is well appointed with integrated appliances, including a fridge freezer, oven, hob, dishwasher, and washer dryer, making it a pleasure to prepare meals and entertain guests.

Upstairs, the main bedroom benefits from a fitted wardrobe and a stylish en suite shower room, creating a private retreat. The second double bedroom is equally well proportioned and is served by a modern family bathroom, ideal for guests or family members.

Additional features include driveway parking for two vehicles (ensuring ease of access at all times) and a generous garden with a patio area and storage shed. Offered to the market with no forward chain, this property represents an excellent opportunity for buyers seeking a move-in ready home in a sought after location. The combination of high quality finishes, ample storage, and well considered layout ensures comfortable and practical living throughout. This property is perfect for professionals, couples, or small families looking to enjoy a well maintained and stylish home with excellent amenities close by especially the main line railway with good connections to London and the South Coast. Early viewing is highly recommended to fully appreciate the quality and appeal of this attractive property.

Situation

Billingshurst is a thriving large village in the heart of West Sussex and surrounded by some fine countryside with a main line station to London (Victoria approximately 65 minutes) and the South Coast. Highly sought after schools in the locality from infant to sixth form with the Billingshurst Primary Academy School and then The Weald Community School. Leisure facilities with the Football Club, Cricket Club, tennis and bowls clubs, leisure centre with gym and swimming pool are all nearby. The centre, with its good range of shopping facilities including Sainsburys and Lidl, restaurants, pubs, library, post office, doctors' surgery, churches and bus services. The village provides good links with both Horsham and Gatwick International Airport. There is an abundance of history dating back to Roman times and many countryside walks on your doorstep.
  • Entrance Hall
  • Kitchen
  • Sitting Room
  • Cloakroom
  • Landing
  • Bedroom 1
  • En-Suite Shower Room
  • Bedroom
  • Bathroom

Council Tax Band: D

Tenure: Freehold

EPC Rating: C

Why live in Storrington?

This picture-perfect village lies at the foot of the South Downs National Park, halfway along the South Downs Way. Properties here include bungalows, family homes and the famous Wells cottages that were individually designed by the architect Reginald Fairfax Wells in the 1920s to look and feel like 17th century buildings with thatched roofs, small windows and whitewashed exteriors.

Many of the homes in Storrington have wonderful views across rolling countryside and a conservation area just off the bustling high street ensures Storrington will remain as beautiful as it is today for generations to come.

There are lots of specialist shops in the town and convenient amenities such as the large recreational ground with its football and cricket pitches, the Chanctonbury Leisure Centre and an abundance of community groups offering classes in all sorts of interesting activities from ballroom dancing to photography. For a spot of culture, visit the Parham House and Gardens or the local Storrington and District Museum and for outdoor pursuits, take time to explore the natural beauty of the South Downs on foot, bike or horseback or, for a truly spectacular experience, take to the air in a glider.

Our local schools belong to a cluster group called STARS (Storrington Area Rural Schools) and, between them, offer a choice of paths from Reception through to Year 13. Steyning Grammar School is included in the list of STARS and is a popular choice as it’s non-selective and has its own Sixth Form.

Storrington is well connected too; the nearest train station is in the neighbouring village of Pulborough. The five-mile journey only takes 10 minutes by car or you can take a bus; the bus timetable is synced with the train timetable to make life even easier for local commuters.

If you’d like to buy, sell or let a property in Storrington, get in touch with your local team and discover the Henry Adams difference for yourself.

Read more