Facebook

Harberton Crescent, Chichester, PO19

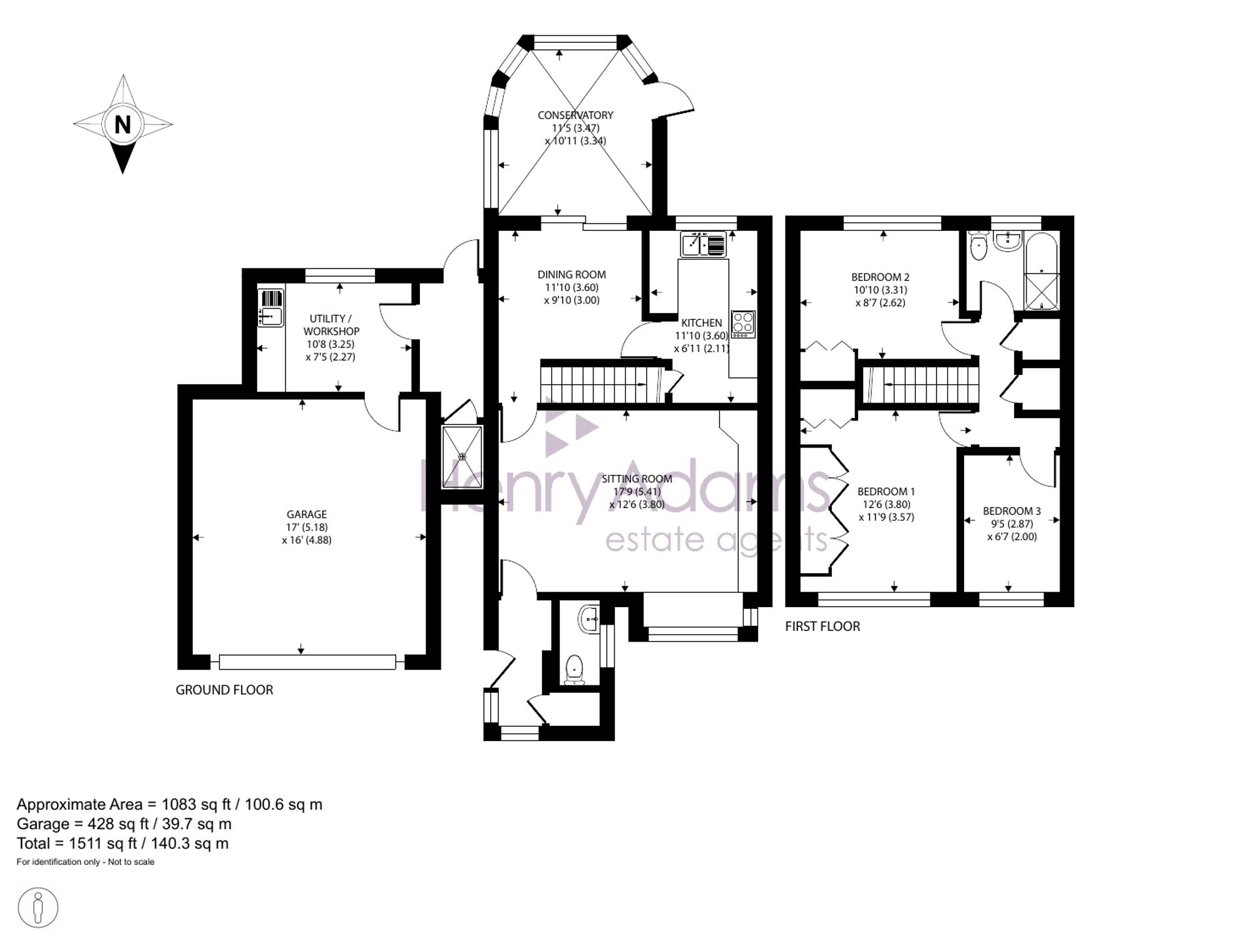
3 Bed │ 2 Bath │ 2 Rec

Guide Price £795,000

Save
Chichester

Richard Longhurst

Partner

Key features

  • Popular cul-de-sac location
  • Sitting room and dining room
  • Kitchen
  • Conservatory
  • Ground floor shower room
  • Utility/workshop
  • Three bedrooms
  • Bathroom/WC
  • Large garage and driveway
  • Enclosed south facing garden

Full description

Excellent location and no chain.

Situated in a highly sought-after location, this property offers an excellent opportunity for buyers seeking space, versatility, and future potential. The accommodation comprises a welcoming sitting room, a separate dining room, a well-proportioned kitchen, and a bright conservatory overlooking the garden. Additional ground-floor features include a shower room and a useful utility/workshop area. Upstairs, there are three bedrooms served by a family bathroom/WC.

Externally, the property benefits from a large garage, ample driveway parking, and an enclosed south-facing garden ideal for enjoying all-day sunshine. Offered with vacant possession, this home presents huge potential to enhance or extend, subject to the usual consents.

Chichester District Council - 25/26 Tax Band F £3,375.76 EPC-D

From the Northgate circulatory system proceed north along Broyle Road (A286 Midhurst Road). After passing Roussillon Park, take the third turning on the right into The Drive. Take the second right into Stanton Drive and then first left into Harberton Crescent. Number 10 is on the right. what3words - chip.defeat.giant

Situation

Nearby there is a convenience store, doctors surgery with pharmacy and there is a bus service every 30 minutes into Chichester. The cathedral city of Chichester offers excellent high street shopping, many fashionable restaurants, cafes and bars, Festival Theatre and a mainline station to London Victoria. Goodwood is famous for its many event days including the world renowned Festival of Speed and Goodwood Revival for motor racing enthusiasts and a season of horse racing including the Qatar Goodwood Festival. There are excellent sailing facilities around Chichester Harbour and water sports from the beaches at West Wittering. The area is a paradise for wildlife enthusiasts, with beautiful walks and cycle tracks over the South Downs and around the harbour.

Council Tax Band: F

Tenure: Freehold

EPC Rating: D

Why live in Chichester?

We consider ourselves very lucky to be working in a city that blends so many different architectural styles, from elegant Georgian buildings to contemporary new apartments and waterside properties that overlook the harbour.

In 2013, The Sunday Times listed Chichester as one of the top places to live in the UK with ‘something for everyone’ – and they weren’t wrong. Chichester is a cathedral city, a county town and home to some of the oldest churches and buildings in the country. There are many well-regarded public and state schools in the local area with further and higher education options available from Chichester College, West Dean College and the University of Chichester. Our great schools have always made Chichester very appealing for those looking for the perfect place to raise a family.

Our city centre is a shopper’s paradise and there are great places to eat and drink, from elegant restaurants to cosy cafés and pubs, all set along the city’s four main streets. Chichester Cathedral on West Street dominates the skyline and, on summer afternoons, its grounds are filled with local people enjoying picnics. In the evenings, the Cathedral plays a central part in the city’s nightlife by hosting classical music events.

Chichester has a number of public parks, the Chichester Tennis and Racquets Fitness Club and Westgate Leisure Centre, where you’ll find a large swimming pool and skate park and, if sailing is your thing, Chichester Harbour is a haven for you. There really is so much to do here you’ll be spoilt for choice; spend the day on one of the many local beaches, stretch your legs on the stunning South Downs or catch a show at the Festival Theatre before it moves to a permanent home in London’s West End.

If you’d like to buy, sell or let a property in Chichester, get in touch with your local team and discover the Henry Adams difference for yourself.

Read more