Facebook

Holly Close, West Chiltington, RH20

3 Bed │ 1 Bath │ 2 Rec

Offers Over £550,000

Save
Storrington

Christina Bearryman

Sales Associate

Key features

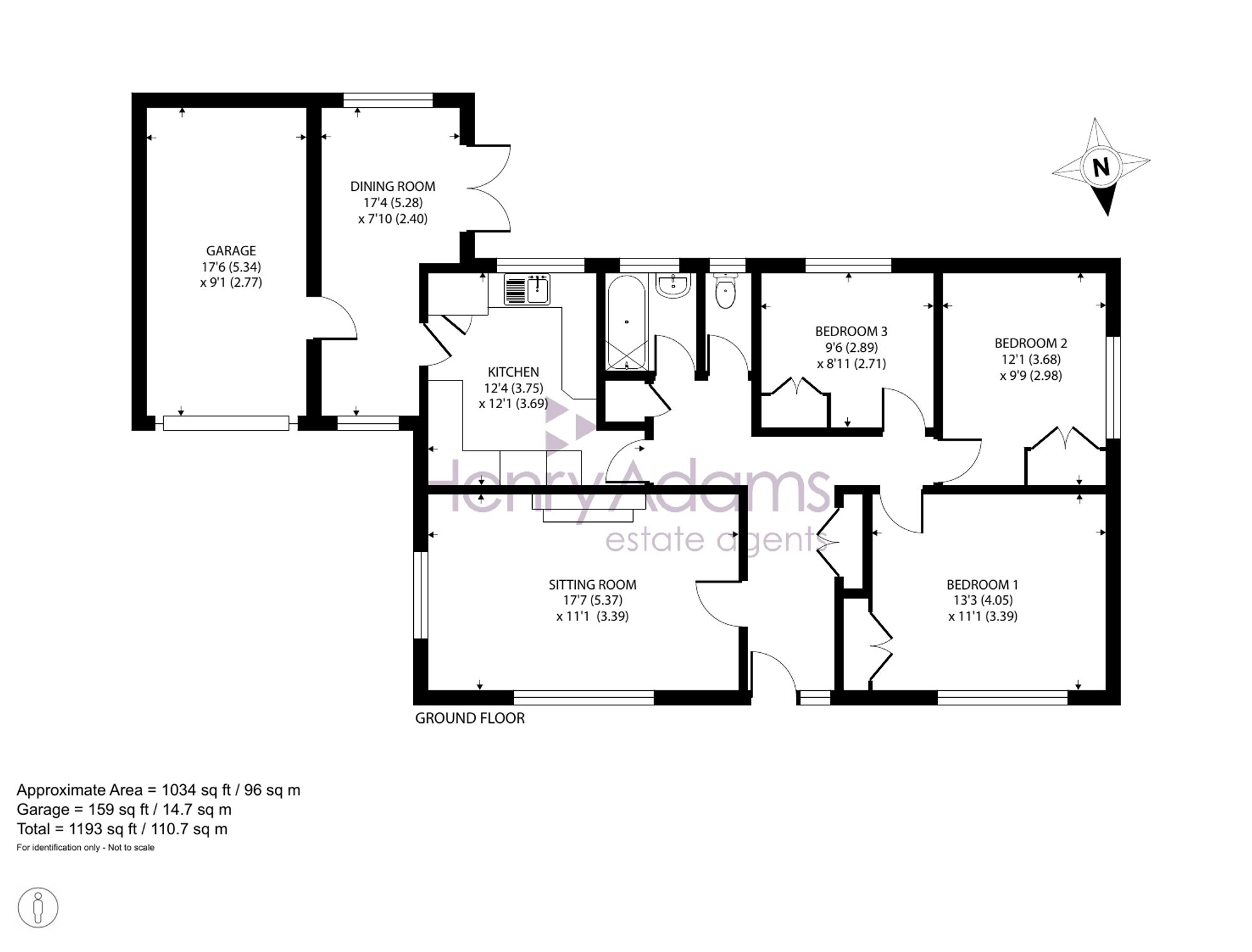
  • A detached three bedroom bungalow built in the 1960's in quiet location with south facing garden
  • Sitting room with open fire and hardwood flooring
  • Kitchen with Rayburn and space for additional appliances
  • Dining room with doors to garden
  • Bathroom with separate cloakroom
  • Two double bedrooms and a third single bedroom all with wardrobe cupboards
  • Single garage and driveway parking
  • South facing gardens with apple trees, a variety of shrubs and a garden shed

Full description

In a sought after location of West Chiltington, this detached three-bedroom bungalow built in the 1960s offers a peaceful retreat. The property boasts a spacious sitting room featuring an inviting open fire and elegant hardwood flooring. The kitchen is equipped with a Rayburn stove supplying the heating and hot water and ample space for additional appliances, while the adjacent dining room offers seamless access to the south-facing garden. Accommodation includes two double bedrooms each with its own wardrobe cupboard, as well as a cosy third single bedroom also with a wardrobe cupboard. A well-appointed bathroom and a separate cloakroom provide convenience, along with a single garage and driveway parking for multiple vehicles.

Outside there are delightful south-facing gardens, complete with an apple tree and a variety of plants and shrubs. The outdoor space offers a perfect setting for relaxation and entertainment, where you can soak in the sun's rays and embrace the tranquillity of the surroundings. This property is a rare find for those seeking a harmonious blend of comfort and nature.

Situation

West Chilitington is an attractive and thriving village and has so much on offer, a busy village hall, tennis club, croquet club, cricket club, a post office and local shop, butchers, hairdressers and beauty salon. In the old village along with the historic St Mary's Church which dates back to the 12th Century and also the village junior school, Post Office, and Queens Head public house all within walking distance of Holly Close. The surrounding villages of Pulborough and Storrington offer various supermarkets and a range of independent shops. There are numerous walks near the local vineyards and onto various watering holes or an abundance of public footpaths. Rail links to London Victoria and London Bridge and the South Coast are in the neighbouring village of Pulborough.

The area around provides a wide range of sporting and recreational facilities with West Sussex Golf Club and other golf clubs further afield at Cowdray Park and Goodwood. Of special note is the RSPB nature reserve at Wiggonholt Brooks. The area has rugby, bowls and cricket clubs, and there are leisure centres at Storrington and Billingshurst. There is gliding at nearby Parham, theatres at Chichester, Horsham and Worthing and sailing centres all along the coast.
  • Entrance Hall
  • Sitting Room
  • Kitchen
  • Dining Room
  • Bedroom 1
  • Bedroom 2
  • Bedroom 3
  • Bathroom

Council Tax Band: E

Tenure: Freehold

EPC Rating: E

Why live in Storrington?

This picture-perfect village lies at the foot of the South Downs National Park, halfway along the South Downs Way. Properties here include bungalows, family homes and the famous Wells cottages that were individually designed by the architect Reginald Fairfax Wells in the 1920s to look and feel like 17th century buildings with thatched roofs, small windows and whitewashed exteriors.

Many of the homes in Storrington have wonderful views across rolling countryside and a conservation area just off the bustling high street ensures Storrington will remain as beautiful as it is today for generations to come.

There are lots of specialist shops in the town and convenient amenities such as the large recreational ground with its football and cricket pitches, the Chanctonbury Leisure Centre and an abundance of community groups offering classes in all sorts of interesting activities from ballroom dancing to photography. For a spot of culture, visit the Parham House and Gardens or the local Storrington and District Museum and for outdoor pursuits, take time to explore the natural beauty of the South Downs on foot, bike or horseback or, for a truly spectacular experience, take to the air in a glider.

Our local schools belong to a cluster group called STARS (Storrington Area Rural Schools) and, between them, offer a choice of paths from Reception through to Year 13. Steyning Grammar School is included in the list of STARS and is a popular choice as it’s non-selective and has its own Sixth Form.

Storrington is well connected too; the nearest train station is in the neighbouring village of Pulborough. The five-mile journey only takes 10 minutes by car or you can take a bus; the bus timetable is synced with the train timetable to make life even easier for local commuters.

If you’d like to buy, sell or let a property in Storrington, get in touch with your local team and discover the Henry Adams difference for yourself.

Read more