Facebook

Heathfield Park, Midhurst, GU29

3 Bed │ 1 Bath │ 1 Rec

In Excess of £625,000

Save
Midhurst

Matt Shepherd

Partner

Key features

  • Three Bedrooms / One Bathroom
  • Well-Presented Detached Bungalow
  • South-Facing Courtyard Garden
  • Modern Interior Throughout
  • Ready To Move Into
  • Bright and Spacious Accommodation
  • Sought After Road Within Walking Distance to Town
  • Peaceful and Private Location
  • Off-Road Parking

Full description

55 Heathfield Park is an exceptionally well-presented three-bedroom detached bungalow, occupying a highly desirable, tucked-away position within a sought-after residential setting. Having been the subject of an extensive and thoughtful programme of refurbishment by the current owner, the property now offers a superb standard of finish throughout, with carefully considered upgrades that combine both style and practicality. It represents an ideal opportunity for those seeking a turnkey home with minimal ongoing maintenance.

Externally, the property enjoys beautifully landscaped gardens to both the front and rear, designed with ease of upkeep in mind while still providing an attractive and inviting environment. The gardens are well stocked with mature planting and defined borders, complemented by subtle solar lighting that enhances the setting into the evening. A newly laid patio area provides the perfect space for outdoor dining, entertaining, or simply relaxing in a private and peaceful setting. To the front, a private driveway offers ample off-road parking for multiple vehicles, adding to the overall convenience of the property. A further notable benefit is the residents’ gated access onto Midhurst Common, reached via a short walk across a private green, offering immediate access to open countryside

Internally, the accommodation is bright, spacious, and thoughtfully arranged across a single level, offering an excellent sense of flow throughout. The heart of the home is the beautifully redesigned kitchen, which has been fitted with a comprehensive range of modern units providing generous storage and workspace. This space also benefits from a newly installed Worcester boiler and is finished with a high-quality Karndean floor, which continues throughout the property, enhancing the sense of cohesion and quality.

Leading from the kitchen is a delightful south-facing conservatory, a particularly noteworthy feature of the home. Fitted with solar-powered, self-cleaning glass and an electrically operated opening window, this space is flooded with natural light and provides a versatile area to enjoy throughout the year, whether as a dining area, garden room, or additional sitting space.

The sitting room is generously proportioned and offers a warm and inviting atmosphere, centred around a gas-fired fireplace. This room has been further enhanced by updated lighting and flooring, creating a comfortable yet stylish space for everyday living and entertaining alike.

The remainder of the accommodation comprises three well-proportioned double bedrooms, each offering flexibility for use as guest accommodation, a home office, or hobby space if required. The bathroom has been recently modernised to a high standard, now featuring a contemporary suite including a shower and quality fittings, all finished with a clean and elegant aesthetic.

Overall, 55 Heathfield Park is presented in excellent decorative order throughout and offers a rare opportunity to acquire a fully updated home in a peaceful and established location. With its combination of modern specification, well-balanced accommodation, and attractive outdoor space, the property is perfectly suited to buyers looking for a straightforward move and a home ready to be enjoyed from day one.

Situation

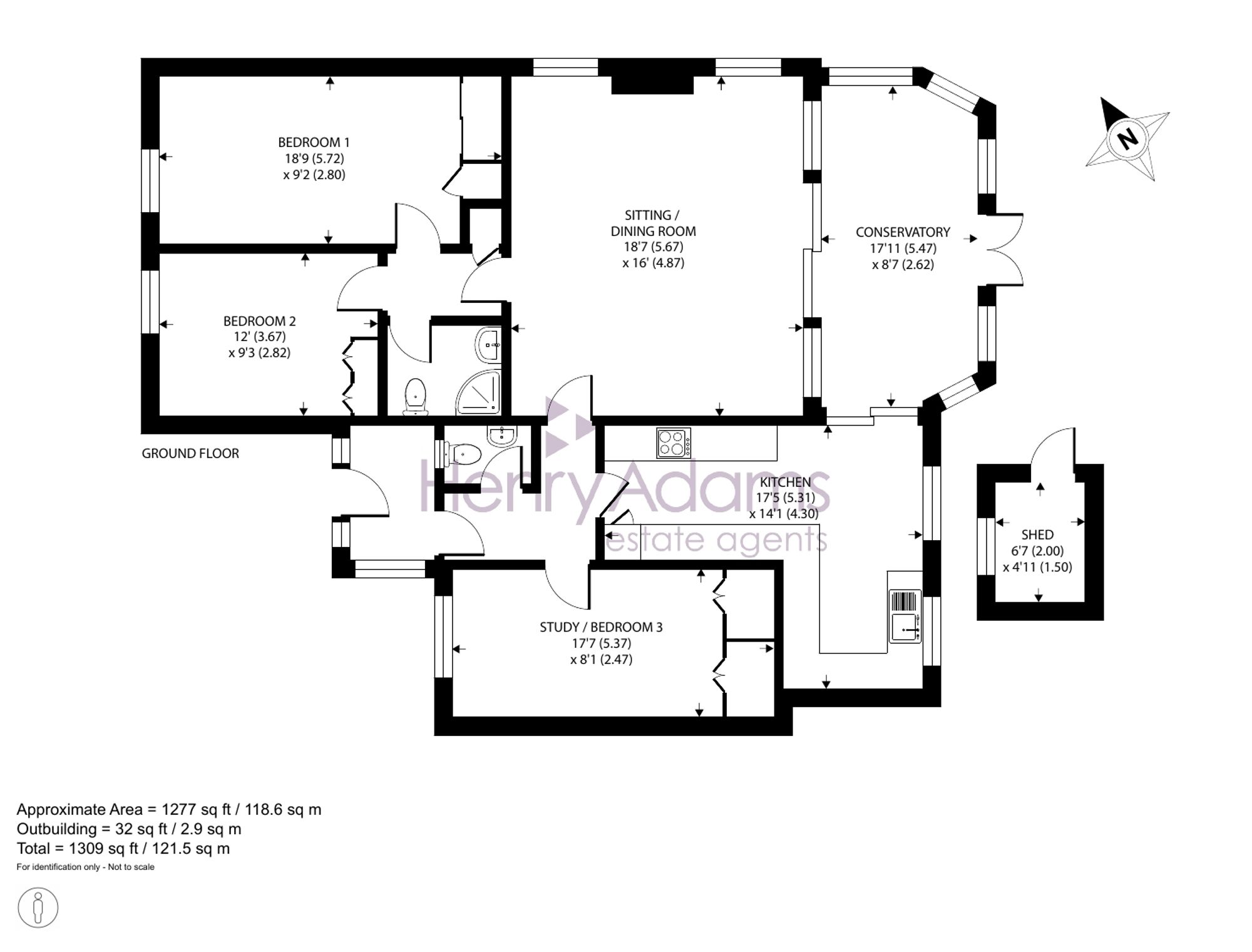
  • Kitchen 17' 5" x 14' 1" (5.31m x 4.30m)
  • Sitting Room 18' 7" x 16' 0" (5.67m x 4.87m)
  • Conservatory 17' 11" x 8' 7" (5.47m x 2.62m)
  • Bedroom 1 18' 9" x 9' 2" (5.72m x 2.80m)
  • Shower Room
  • Bedroom 2 12' 0" x 9' 3" (3.67m x 2.82m)
  • Bedroom 3 / Study 17' 7" x 8' 1" (5.37m x 2.47m)

Council Tax Band: E

Tenure: Freehold

EPC Rating: D

Why live in Midhurst?

Midhurst lies on the River Rother, just 12 miles north of Chichester, and has the remarkable claim to fame of being the home of British polo thanks to the Cowdray Park Polo Club on the local Cowdray Estate, but there’s so much more to this pretty market town. It’s centuries old, boasting more than 100 listed buildings with a charming mix of medieval, Georgian, Victorian and Edwardian architecture that sits comfortably alongside more contemporary new homes.

The narrow lanes of Midhurst’s old town offer a fantastic variety of places to shop with an abundance of small independent boutiques all housed in ancient buildings. There are plenty of places to dine in and around the town centre, too, with options ranging from up-market restaurants specialising in local produce to high street favourites and charming tearooms where you can enjoy your favourite afternoon treat.

You’ll also find plenty to do here – when you’re not engaged in polo, fly-fishing or clay pigeon shooting on the Cowdray Estate, you could head over to the Cowdray Golf Club to enjoy some of the most scenic views in West Sussex and get involved with one of the many other clubs and societies that use it as a base. You’ll find a local camera club, the Midhurst Players, the Gardening Club and in August you could join in with the ten days of fun at the Midhurst Music, Arts and Dramatic Festival, ‘MADhurst’. There’s never a dull moment here!

As far as family life goes, we have many well-regarded schools in and around the area, all with strong Ofsted reports and excellent reputations, including Midhurst C of E Primary and Midhurst Rother College, which, between them, cater for pupils from age four to 18.

If you’d like to buy, sell or let a property in Midhurst, get in touch with your local team and discover the Henry Adams difference for yourself.

Read more