Facebook

The Street, Bury, RH20

3 Bed │ 2 Bath │ 2 Rec

Offers Over £1,250,000

Save
Storrington

George Hills

Branch Manager

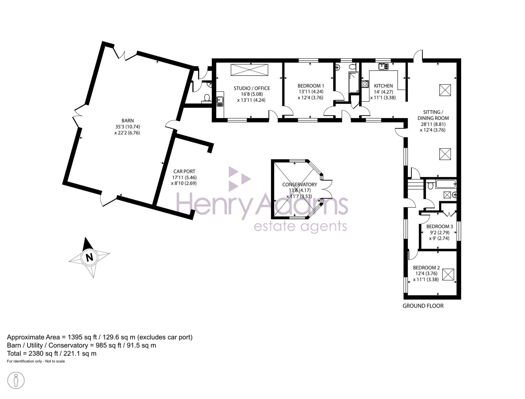
Key features

  • First time to the market in over 30 years since being converted in the 1990's and surrounded by farmland and countryside walks
  • In a quiet lane in the South Downs Nation Park in the desirable village of Bury
  • Kitchen with Aga opening to sitting room / dining room
  • Main bedroom with adjacent shower room
  • Guest wing with two double bedrooms and bathroom
  • Studio / office ideal for working from home or as an artist studio
  • Wealth of original features including vaulted ceilings converted from being originally stables
  • Large 35ft x 22ft barn ideal for conversion to additional accommodation subject to planning permissions
  • Brick built conservatory / Summer house in garden which extends to a plot of just under 2/3 of an acre with a number of fruit trees, overlooking fields and open farmland beyond.
  • Being offered to the market with the advantage of no forward chain

Full description

Located within the serene surroundings of the South Downs National Park lies a unique opportunity to own a charming 3 Bedroom Detached Stable Conversion. Boasting a history of over 30 years since its conversion in the 1990s, this remarkable property exudes rustic charm and tranquillity. Situated in the esteemed village of Bury, this residence beckons those seeking a peaceful retreat amidst farmland and picturesque countryside walks.

The interior boasts a well-appointed kitchen with Aga that seamlessly flows into the cosy sitting room and dining area. The main bedroom features an adjacent shower room, while a guest wing offers two additional double bedrooms and a bathroom. A versatile studio/office space provides the perfect setting for remote work or creative endeavours. Discover a treasure trove of original features, including vaulted ceilings that hail from its days as a stable. The expansive 35ft x 22ft barn presents an exciting opportunity for conversion into supplementary living quarters, subject to necessary permissions.

Step outside to a sprawling garden that extends to just under two thirds of an acre, bordered by a variety of fruit trees, where a brick-built conservatory/Summer house offers a serene escape. As you soak in the lush greenery, the garden abuts surrounding fields and open farmland. This idyllic retreat is equipped with oil central heating, mains drainage, and water supply for added convenience. Offered to the market with the bonus of no forward chain, this property promises a harmonious blend of history and modern living. This is a rare chance to own a slice of countryside bliss in a sought-after location.

Situation

Bury is a delightful rural Village sitting within the South Downs National Park, close to the South Downs Way and open countryside where many outdoor pursuits can be enjoyed. The Village has a thriving community hall with post office open once a week, Bury Primary and Dorset House schools, Charlie's Farm Shop and the Squire & Horse public house. The nearest station can be found in Pulborough a couple of miles to the north which has regular trains to London Victoria and London Bridge and the South Coast . The city of Chichester, about 12 miles away, provides an extensive array of shopping and leisure facilities including a marina and surrounding coastal areas for water based activities. The historic town of Arundel with the Castle and Cathedral has many events during the year.
  • Entrance Hall
  • Kitchen
  • Sitting / Dining Room
  • Bedroom 1
  • Shower Room
  • Bedroom 2
  • Bedroom 3
  • Bathroom
  • Studio / Office
  • Cloakroom / Utility Room
  • Conservatory
  • Barn

Council Tax Band: G

Tenure: Freehold

Why live in Storrington?

This picture-perfect village lies at the foot of the South Downs National Park, halfway along the South Downs Way. Properties here include bungalows, family homes and the famous Wells cottages that were individually designed by the architect Reginald Fairfax Wells in the 1920s to look and feel like 17th century buildings with thatched roofs, small windows and whitewashed exteriors.

Many of the homes in Storrington have wonderful views across rolling countryside and a conservation area just off the bustling high street ensures Storrington will remain as beautiful as it is today for generations to come.

There are lots of specialist shops in the town and convenient amenities such as the large recreational ground with its football and cricket pitches, the Chanctonbury Leisure Centre and an abundance of community groups offering classes in all sorts of interesting activities from ballroom dancing to photography. For a spot of culture, visit the Parham House and Gardens or the local Storrington and District Museum and for outdoor pursuits, take time to explore the natural beauty of the South Downs on foot, bike or horseback or, for a truly spectacular experience, take to the air in a glider.

Our local schools belong to a cluster group called STARS (Storrington Area Rural Schools) and, between them, offer a choice of paths from Reception through to Year 13. Steyning Grammar School is included in the list of STARS and is a popular choice as it’s non-selective and has its own Sixth Form.

Storrington is well connected too; the nearest train station is in the neighbouring village of Pulborough. The five-mile journey only takes 10 minutes by car or you can take a bus; the bus timetable is synced with the train timetable to make life even easier for local commuters.

If you’d like to buy, sell or let a property in Storrington, get in touch with your local team and discover the Henry Adams difference for yourself.

Read more