Facebook

Nyetimber Copse, West Chiltington, RH20

3 Bed │ 2 Bath │ 3 Rec

Offers Over £1,100,000

Save
Storrington

Christina Bearryman

Sales Associate

Key features

  • A beautifully presented and extended bungalow with south facing garden in the desirable Nyetimber Copse
  • Stunning bespoke kitchen with large island, marble quartz worktops, limestone flooring, dining area with roof lantern and bifold doors to garden
  • Sitting room with picture windows overlooking garden, French doors to terrace and feature inset gas fire
  • Large oak-floored entrance hall with cloakroom and coat cupboard
  • Principal suite with dressing area, French doors to south facing terrace and en-suite shower room
  • Second bedroom with Jack and Jill bathroom
  • Further double bedroom with bay window seat
  • Utility / boot room with bespoke extensive storage, butler's sink, space for appliances and access to garage
  • Plot just over a quarter of an acre, laid to lawn and with large entertaining terrace, garage and driveway parking for several vehicles

Full description

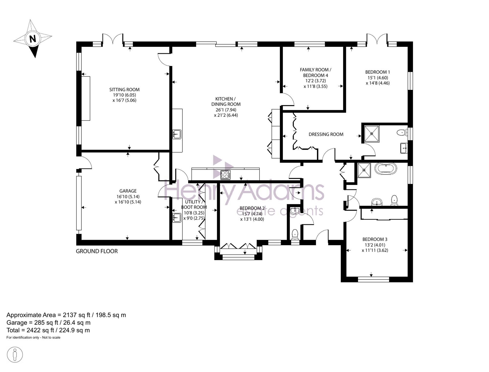
A beautifully presented extended three-bedroom detached bungalow situated in the highly sought-after Nyetimber Copse. Lavender Cottage offers spacious and versatile accommodation finished to an exceptional standard. Upon entering via the oak framed open porch, you are greeted by a generous entrance hall with oak flooring, complete with a cloakroom and a large coat cupboard, setting the tone for the quality found throughout the home.

The heart of the home is the stunning bespoke kitchen with natural limestone floor, benefitting from luxurious underfloor heating and featuring a large central island. The impressive kitchen boasts ‘in-frame’ oak cabinets with marble quartz worktops, a butler’s sink with boiling water tap, wine fridge, integrated dishwasher and space for both an American fridge freezer, and range style cooker. The dining area is illuminated by a striking lantern roof and features bifold doors opening onto the south facing rear limestone terraces, creating an inviting space for entertaining. The two bathrooms and the utility / boot room also benefit from under floor heating. The boot room provides extensive storage, butler’s sink, space for additional appliances, and direct access to the garage, ensuring practicality is at the forefront of the design. The spacious sitting room enjoys picture windows overlooking the garden, French doors leading to the terrace, and a feature gas fire, creating a warm and welcoming atmosphere. There is a versatile family room, currently utilised as a bedroom, with oak flooring.

The principal bedroom is a true retreat, featuring a dedicated dressing area, en-suite shower room with underfloor heating, and doors opening to the limestone terrace. The second bedroom benefits from Jack and Jill access to a stylish bathroom with free standing bath and separate shower enclosure, while the third double bedroom enjoys a charming bay window seat, ideal for relaxing with a book.

This stunning home further benefits from a large garage with electric doors and driveway with ample parking. Set on a plot of over a quarter of an acre, this impressive bungalow combines elegance, comfort, and functionality, making it an ideal choice for those seeking a high-quality home in a desirable location. Early viewing is highly recommended to fully appreciate the exceptional accommodation and stylish finishes this property offers.

Situation

West Chilitington is an attractive and thriving village and has so much on offer, a busy village hall, tennis club, croquet club, cricket club, a post office and local shop in the old village along with the historic St Mary's Church which dates back to the 12th Century and also the village junior school, along with another parade of shops offering a village store and post office, butchers, hairdressers and beauty salon. The surrounding villages of Pulborough and Storrington offer various supermarkets and a range of independent shops. There are numerous walks near the local vineyards and onto various watering holes or an abundance of public footpaths. Rail links to London Victoria and London Bridge and the South Coast are in the neighbouring village of Pulborough.

The area around provides a wide range of sporting and recreational facilities with West Sussex Golf Club and other golf clubs further afield at Cowdray Park and Goodwood. Of special note is the RSPB nature reserve at Wiggonholt Brooks. The area has rugby, bowls and cricket clubs, and there are leisure centres at Storrington and Billingshurst. There is gliding at nearby Parham, theatres at Chichester, Horsham and Worthing and sailing centres all along the coast.
  • Entrance Hall
  • Principal bedroom suite with dressing area
  • En-Suite Shower Room
  • Bedroom 2
  • Bathroom
  • Bedroom 3
  • Bedroom 4 / Study
  • Kitchen
  • Dining Area
  • Sitting Room
  • Utility Room

Council Tax Band: G

Tenure: Freehold

EPC Rating: E

Why live in Storrington?

This picture-perfect village lies at the foot of the South Downs National Park, halfway along the South Downs Way. Properties here include bungalows, family homes and the famous Wells cottages that were individually designed by the architect Reginald Fairfax Wells in the 1920s to look and feel like 17th century buildings with thatched roofs, small windows and whitewashed exteriors.

Many of the homes in Storrington have wonderful views across rolling countryside and a conservation area just off the bustling high street ensures Storrington will remain as beautiful as it is today for generations to come.

There are lots of specialist shops in the town and convenient amenities such as the large recreational ground with its football and cricket pitches, the Chanctonbury Leisure Centre and an abundance of community groups offering classes in all sorts of interesting activities from ballroom dancing to photography. For a spot of culture, visit the Parham House and Gardens or the local Storrington and District Museum and for outdoor pursuits, take time to explore the natural beauty of the South Downs on foot, bike or horseback or, for a truly spectacular experience, take to the air in a glider.

Our local schools belong to a cluster group called STARS (Storrington Area Rural Schools) and, between them, offer a choice of paths from Reception through to Year 13. Steyning Grammar School is included in the list of STARS and is a popular choice as it’s non-selective and has its own Sixth Form.

Storrington is well connected too; the nearest train station is in the neighbouring village of Pulborough. The five-mile journey only takes 10 minutes by car or you can take a bus; the bus timetable is synced with the train timetable to make life even easier for local commuters.

If you’d like to buy, sell or let a property in Storrington, get in touch with your local team and discover the Henry Adams difference for yourself.

Read more