Facebook

Melton Drive, Storrington, RH20

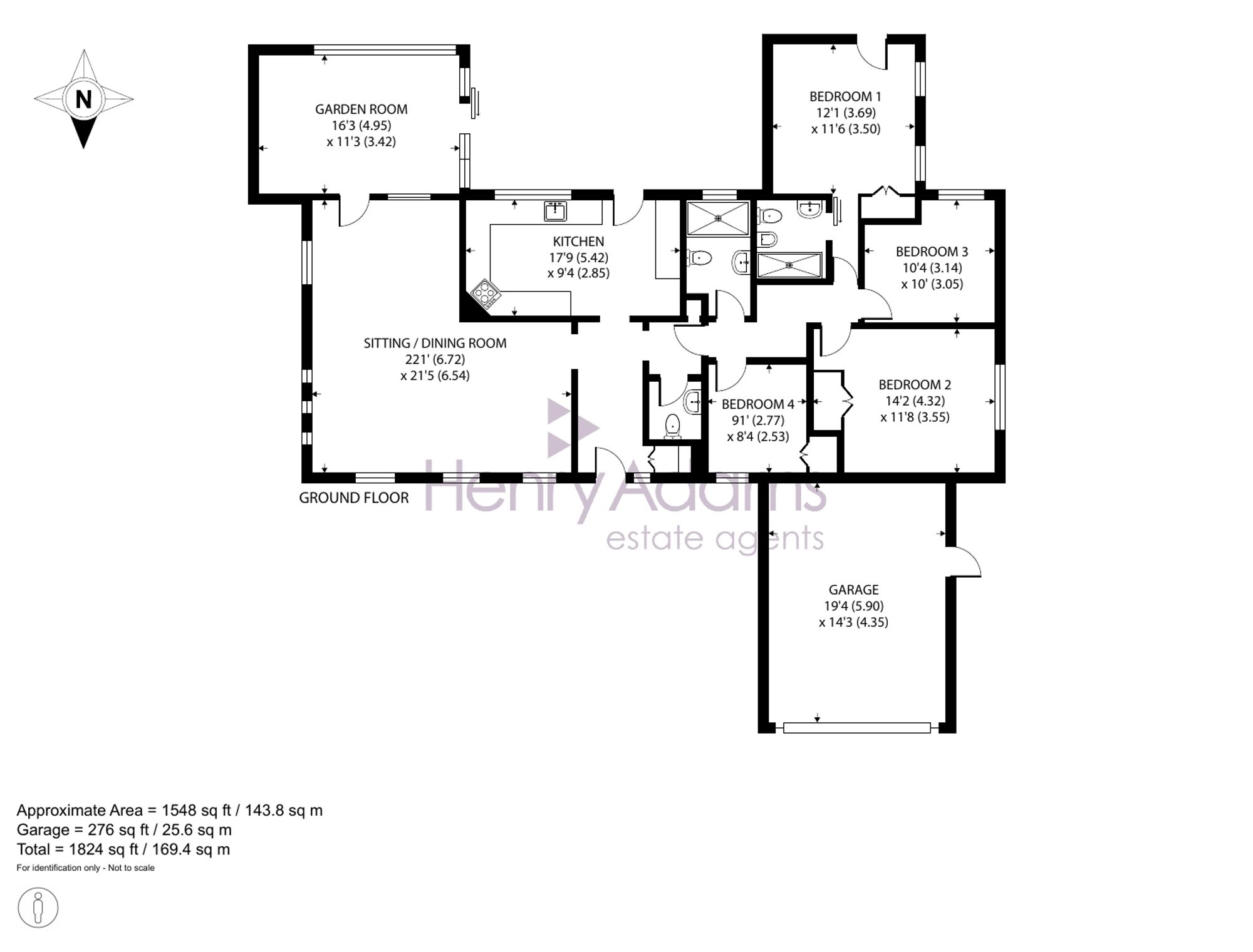
4 Bed │ 2 Bath │ 2 Rec

Offers Over £850,000

Save
Storrington

Christina Bearryman

Sales Associate

Key features

  • A well presented house on corner plot with large south facing gardens
  • Large double aspect bright sitting / dining room
  • Garden room opening to garden
  • Kitchen with double oven and hob, space for additional appliances, access to garden
  • Four bedrooms
  • Two modern shower rooms, one being en-suite to main bedroom
  • Double garage and driveway parking
  • Mature private gardens with a variety of plants and shrubs, patio area
  • Being sold with the advantage of no further chain
  • Within easy reach of the village and all amenities

Full description

Situated in a sought-after location, this impressive 4-bedroom detached bungalow presents a rare opportunity for discerning buyers. This well-maintained property occupies a corner plot boasting generous south-facing gardens, perfect for enjoying the sunshine throughout the day.

Internally the highlight of the home is the large double aspect sitting/dining room flooded with natural light, creating a welcoming space for relaxation and entertaining. Additionally, the garden room provides a seamless transition between indoor and outdoor living. The kitchen is well-equipped with a double oven and hob, ample space for additional appliances, and convenient access to the garden. Accommodation comprises four well-proportioned bedrooms, including a main bedroom with a modern en-suite shower room, as well as a second contemporary shower room for added convenience. The property is further enhanced by a double garage and driveway parking, ensuring ample space for vehicles. The mature private south facing gardens feature an array of plants and shrubs, a patio area for outdoor seating, and plenty of space for gardening enthusiasts to enjoy their green thumb. The property's corner plot location affords a sense of privacy and exclusivity, making it a rare find in the area.

The double garage and driveway parking provide ample space for vehicles, ensuring effortless parking for residents and guests alike. With its convenient access to local amenities and the village, residents can enjoy the best of both worlds – a peaceful retreat and easy access to every-day conveniences.

For added convenience the property has the benefit of underfloor heating to the inner hallway, kitchen and bathrooms and the radiators were updated along with a new boiler in 2021.

The property is being offered with the advantage of no onward chain.

Situation

Storrington village lies in the lea of the South Downs National Park and has an established range of shops including Waitrose, Costa and a number of independent shops and HSBC bank. There is a health centre and various sporting activities including football club, Pulborough Rugby Club, tennis club and not forgetting the South Downs for walking or cycling or the National Trust Sullington Warren or Sandgate Country Park. The towns of Horsham and Worthing are about 15 and 11 miles respectively with good access to the A24.

The area around provides a wider range of sporting and recreational facilities with West Sussex Golf Club and other golf clubs further afield at Cowdray Park and Goodwood. Of special note is the RSPB nature reserve at Wiggonholt Brooks. The area also has bowls and cricket clubs. There is gliding at nearby Parham, theatres at Chichester, Horsham and Worthing and sailing centres all along the coast.
  • Entrance Hall
  • Sitting / Dining Room
  • Garden Room
  • Kitchen
  • Bedroom 1
  • En-Suite Shower Room
  • Bedroom 2
  • Bedroom 3
  • Bedroom 4
  • Shower Room

Council Tax Band: F

Tenure: Freehold

EPC Rating: D

Why live in Storrington?

This picture-perfect village lies at the foot of the South Downs National Park, halfway along the South Downs Way. Properties here include bungalows, family homes and the famous Wells cottages that were individually designed by the architect Reginald Fairfax Wells in the 1920s to look and feel like 17th century buildings with thatched roofs, small windows and whitewashed exteriors.

Many of the homes in Storrington have wonderful views across rolling countryside and a conservation area just off the bustling high street ensures Storrington will remain as beautiful as it is today for generations to come.

There are lots of specialist shops in the town and convenient amenities such as the large recreational ground with its football and cricket pitches, the Chanctonbury Leisure Centre and an abundance of community groups offering classes in all sorts of interesting activities from ballroom dancing to photography. For a spot of culture, visit the Parham House and Gardens or the local Storrington and District Museum and for outdoor pursuits, take time to explore the natural beauty of the South Downs on foot, bike or horseback or, for a truly spectacular experience, take to the air in a glider.

Our local schools belong to a cluster group called STARS (Storrington Area Rural Schools) and, between them, offer a choice of paths from Reception through to Year 13. Steyning Grammar School is included in the list of STARS and is a popular choice as it’s non-selective and has its own Sixth Form.

Storrington is well connected too; the nearest train station is in the neighbouring village of Pulborough. The five-mile journey only takes 10 minutes by car or you can take a bus; the bus timetable is synced with the train timetable to make life even easier for local commuters.

If you’d like to buy, sell or let a property in Storrington, get in touch with your local team and discover the Henry Adams difference for yourself.

Read more