Facebook

Church Lane, Henfield, BN5

5 Bed │ 3 Bath │ 3 Rec

Offers Over £1,400,000

Save
Storrington

Ben Busby

Partner

Key features

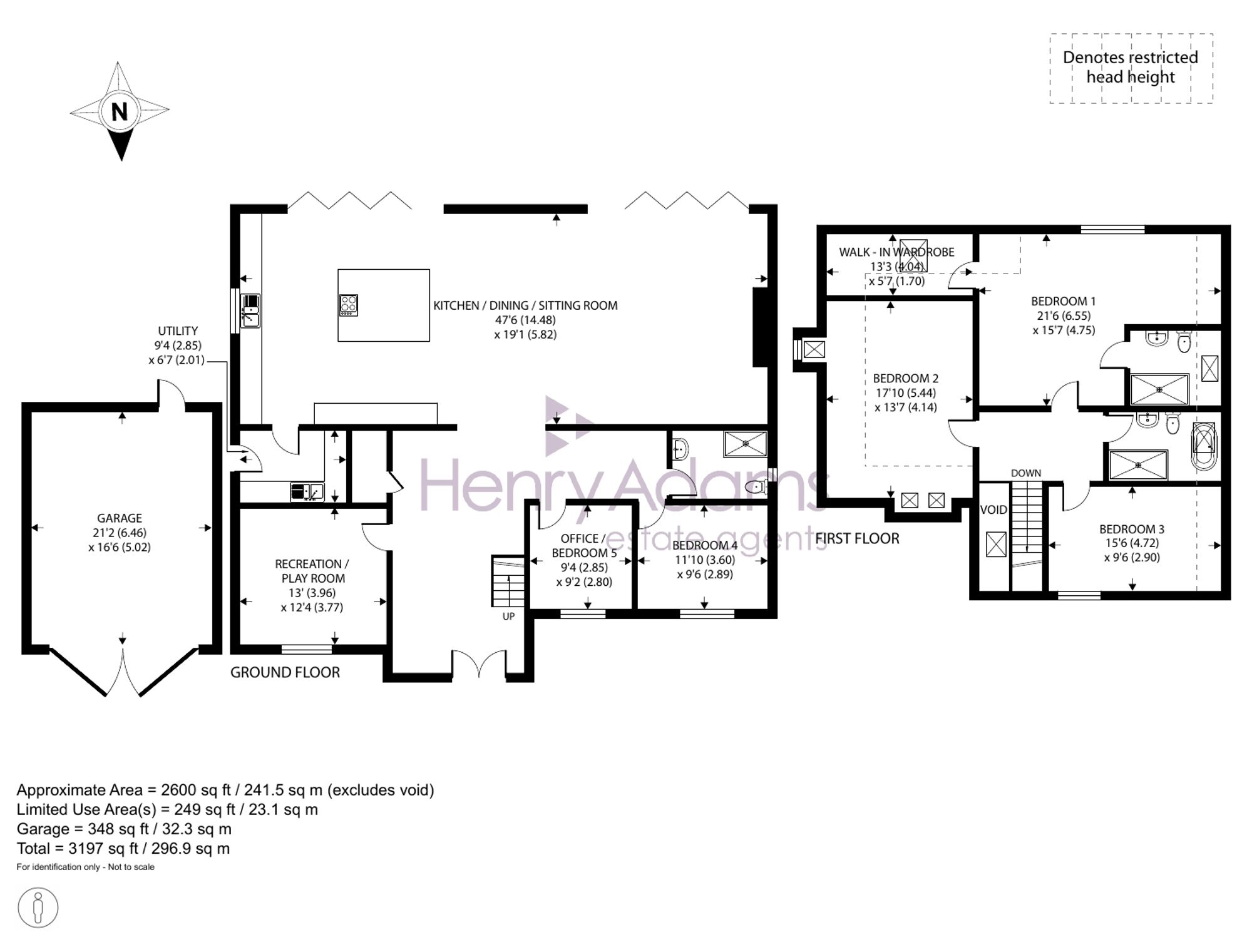
  • Five spacious double bedrooms
  • South/East Landscaped Gardens
  • Prime Henfield location with village amenities and countryside walks nearby
  • Planning permission for garden room and garage conversion
  • Driveway for multiple cars
  • Swimming spa and hot tub
  • Underfloor heating
  • Hand made fitted kitchen
  • One of a kind open plan living and dining room
  • Main bedroom with en-suite and walk in closet

Full description

A Truly Exceptional Family Home located within the heart of the village near by to countryside walks and amenities

This stunning five-bedroom detached residence has been individually  designed,  and lovingly maintained by its current owners. Offering an unrivalled blend of contemporary living, comfort, and space, it presents a rare opportunity to secure a one-of-a-kind family home.


At the heart of the home is a spectacular open-plan living and dining area — a beautifully designed space that seamlessly blends modern style with everyday practicality. Bathed in natural light, this unique area is perfect for both relaxed family living and entertaining on a grand scale. The integration of underfloor heating ensures a warm and inviting atmosphere all year round.

The ground floor also offers a stylish handmade fitted kitchen, designed with both form and function in mind, alongside additional reception areas providing flexibility for family life, home working, or relaxation.

Upstairs, the property boasts three generous double bedrooms, each thoughtfully presented to a high standard. The principal bedroom enjoys the luxury of space and style with en-suite and a walk in wardrobe, while the remaining bedrooms provide versatility for family, guests, or even a dedicated home office.

Bathrooms are finished to a modern specification, balancing sleek design with practical family use.

To the front of the property, there is a double car barn with additional storage, a substantial driveway provides parking for multiple vehicles, ensuring convenience for both residents and visitors.

To the rear, the garden is designed as an extension of the home’s living space. At its centrepiece is a swimming spa and hot tub, creating the perfect environment for relaxation, fitness and entertaining, whilst there is still ample space for children to play.

Planning Potential

This home comes with the added benefit of planning permission for a garden room and garage conversion, offering the opportunity to further enhance the property’s space, flexibility, and value.

A home of this calibre rarely comes to market. Impeccably maintained, thoughtfully upgraded, and brimming with potential, it represents the ideal forever family home. From the exceptional open-plan living spaces to the outdoor leisure facilities, every element has been designed to offer style, comfort, and convenience — all within a vibrant village setting.

The Location

Perfectly positioned on a desirable residential road in the heart of Henfield, this home enjoys all the convenience and charm of village life. Everyday amenities are close at hand, including:

  • Local shops and a supermarket

  • Four welcoming pubs

  • Numerous cafés

  • A popular public library

  • A highly regarded village school

Henfield offers a true sense of community while being exceptionally well-connected for commuters and families alike.

Outdoor Lifestyle

For lovers of the outdoors, the surrounding countryside offers an abundance of walks and open space right from your doorstep.

  • The Downs Link cycle and footpath, just minutes away, stretches from Shoreham to Guildford — perfect for walking, running, or cycling.

  • A local favourite is The Cabin at Berrett’s Farm: a relaxed spot for tea and coffee at picnic tables with far-reaching countryside views.

Family-Friendly Living

Henfield is particularly well-suited to families, with excellent facilities and support for children of all ages.

  • The school, park, skate park, tennis club, and leisure centre are all within a 5-minute walk.

  • Both the school and leisure centre offer breakfast and after-school clubs, with flexible booking — no waiting lists, no termly tie-ins, and excellent value for money. The leisure centre even provides school drop-offs, collections, and sports club prep.

  • A nursery and weekly playgroup are conveniently located in the nearby church hall.

Clubs & Activities

Children in Henfield are spoiled for choice when it comes to activities:

  • Football, cricket, tennis (with excellent-value lessons and membership)

  • Beavers, Brownies, and other youth groups

  • Kids’ fitness classes at the leisure centre

  • Plans underway for children’s paddle lessons

Henfield truly blends rural charm with village convenience, making it a highly sought-after location for families and commuters alike.

Situation

  • Entrance Hall
  • Living room
  • Kitchen
  • Utility Room
  • Recreation/Play Room
  • Home office
  • Bedroom 4
  • Shower room
  • Landing
  • Main bedroom
  • En-suite
  • Bedroom 2
  • Bedroom 3
  • Family bathroom

Council Tax Band: G

Tenure: Freehold

EPC Rating: D

Why live in Storrington?

This picture-perfect village lies at the foot of the South Downs National Park, halfway along the South Downs Way. Properties here include bungalows, family homes and the famous Wells cottages that were individually designed by the architect Reginald Fairfax Wells in the 1920s to look and feel like 17th century buildings with thatched roofs, small windows and whitewashed exteriors.

Many of the homes in Storrington have wonderful views across rolling countryside and a conservation area just off the bustling high street ensures Storrington will remain as beautiful as it is today for generations to come.

There are lots of specialist shops in the town and convenient amenities such as the large recreational ground with its football and cricket pitches, the Chanctonbury Leisure Centre and an abundance of community groups offering classes in all sorts of interesting activities from ballroom dancing to photography. For a spot of culture, visit the Parham House and Gardens or the local Storrington and District Museum and for outdoor pursuits, take time to explore the natural beauty of the South Downs on foot, bike or horseback or, for a truly spectacular experience, take to the air in a glider.

Our local schools belong to a cluster group called STARS (Storrington Area Rural Schools) and, between them, offer a choice of paths from Reception through to Year 13. Steyning Grammar School is included in the list of STARS and is a popular choice as it’s non-selective and has its own Sixth Form.

Storrington is well connected too; the nearest train station is in the neighbouring village of Pulborough. The five-mile journey only takes 10 minutes by car or you can take a bus; the bus timetable is synced with the train timetable to make life even easier for local commuters.

If you’d like to buy, sell or let a property in Storrington, get in touch with your local team and discover the Henry Adams difference for yourself.

Read more