Facebook

Crossways Park, West Chiltington, RH20

5 Bed │ 4 Bath │ 3 Rec

£1,350,000

Save
Storrington

Christina Bearryman

Sales Associate

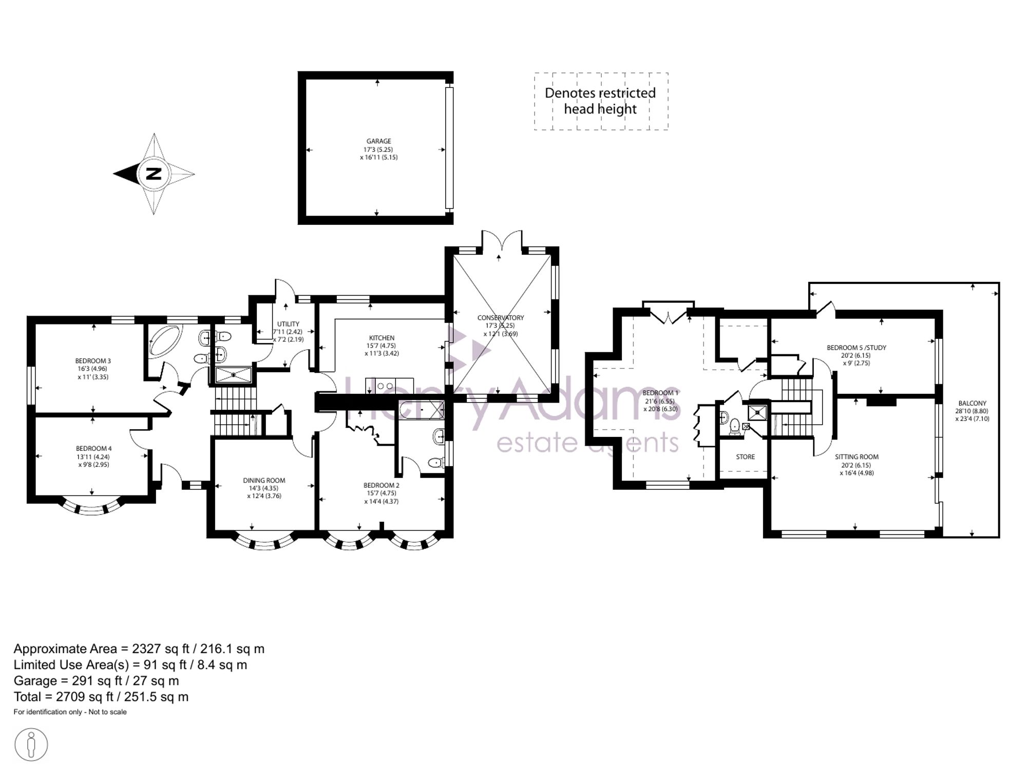
Key features

  • A beautifully presented home in an elevated position with stunning views towards the South Downs
  • Bright and spacious versatile accommodation over split levels with a number of rooms ideal for use as reception rooms or bedrooms
  • Sitting room opening to balcony with stunning views
  • Kitchen with AGA, separate hob and oven, doors leading out to conservatory which overlooks and opens onto the garden
  • Utility room with shower room off
  • Principal bedroom with Juliet balcony and en-suite shower room
  • Delightful gardens of just under an acre with a variety of plants and shrubs
  • Double garage, driveway parking and electric gates
  • Sought after area of Crossways Park in desirable West Chiltington

Full description

This beautifully presented five-bedroom detached house enjoys an elevated position in the highly sought after Crossways Park area of West Chiltington, offering far-reaching views towards the South Downs. The property provides bright and spacious accommodation arranged over split levels, with a flexible layout that allows several rooms to be used as either reception rooms or bedrooms according to your needs.

The inviting sitting room opens directly onto a south facing balcony, making the most of the stunning outlook. The well-appointed kitchen features an AGA, a separate hob and oven, and doors leading to a generous conservatory that overlooks and opens onto the garden, creating a wonderful space for entertaining or relaxing. A practical utility room with a shower room off adds further convenience. Adjacent to the kitchen is a large dining room.

The principal bedroom boasts a Juliet balcony and an en-suite shower room, providing a peaceful retreat with lovely views. There are three additional double bedrooms two of which have en-suite bathrooms. A fifth double bedroom is being used as a study. The property is finished to a high standard throughout, combining modern comforts with a sense of light and space.

The outside space is equally impressive oasis, with delightful gardens extending to just under an acre. The gardens are beautifully landscaped, featuring a wide variety of mature plants and shrubs, providing year-round interest and colour. There are several seating areas positioned to make the most of the views and sunshine, ideal for outdoor dining or enjoying the tranquil surroundings.

The property benefits from a double garage and ample driveway parking, all securely accessed via electric gates (offering both privacy and peace of mind). The location in Crossways Park is particularly desirable, offering a sense of community and easy access to local amenities, while the elevated position ensures a wonderful outlook and a feeling of seclusion. This is a rare opportunity to acquire a substantial, versatile home in a prime setting, perfect for family living or those seeking space and serenity.

Situation

West Chilitington is an attractive and thriving village and has so much on offer, a busy village hall, tennis club, croquet club, cricket club, a post office and local shop in the old village along with the historic St Mary's Church which dates back to the 12th Century and also the village junior school, along with another parade of shops offering a village store and post office, butchers, hairdressers and beauty salon. The surrounding villages of Pulborough and Storrington offer various supermarkets and a range of independent shops. There are numerous walks near the local vineyards and onto various watering holes or an abundance of public footpaths. Rail links to London Victoria and London Bridge and the South Coast are in the neighbouring village of Pulborough.

The area around provides a wide range of sporting and recreational facilities with West Sussex Golf Club and other golf clubs further afield at Cowdray Park and Goodwood. Of special note is the RSPB nature reserve at Wiggonholt Brooks. The area has rugby, bowls and cricket clubs, and there are leisure centres at Storrington and Billingshurst. There is gliding at nearby Parham, theatres at Chichester, Horsham and Worthing and sailing centres all along the coast.
  • Entrance Hall
  • Bedroom 4
  • Bedroom 3
  • Bathroom
  • Utility Room
  • Shower Room
  • Kitchen
  • Conservatory
  • Dining Room
  • Bedroom 2
  • En-Suite Bathroom
  • Bedroom 1
  • En-Suite Shower Room
  • Study / Bedroom 5
  • Sitting Room

Council Tax Band: G

Tenure: Freehold

EPC Rating: C

Why live in Storrington?

This picture-perfect village lies at the foot of the South Downs National Park, halfway along the South Downs Way. Properties here include bungalows, family homes and the famous Wells cottages that were individually designed by the architect Reginald Fairfax Wells in the 1920s to look and feel like 17th century buildings with thatched roofs, small windows and whitewashed exteriors.

Many of the homes in Storrington have wonderful views across rolling countryside and a conservation area just off the bustling high street ensures Storrington will remain as beautiful as it is today for generations to come.

There are lots of specialist shops in the town and convenient amenities such as the large recreational ground with its football and cricket pitches, the Chanctonbury Leisure Centre and an abundance of community groups offering classes in all sorts of interesting activities from ballroom dancing to photography. For a spot of culture, visit the Parham House and Gardens or the local Storrington and District Museum and for outdoor pursuits, take time to explore the natural beauty of the South Downs on foot, bike or horseback or, for a truly spectacular experience, take to the air in a glider.

Our local schools belong to a cluster group called STARS (Storrington Area Rural Schools) and, between them, offer a choice of paths from Reception through to Year 13. Steyning Grammar School is included in the list of STARS and is a popular choice as it’s non-selective and has its own Sixth Form.

Storrington is well connected too; the nearest train station is in the neighbouring village of Pulborough. The five-mile journey only takes 10 minutes by car or you can take a bus; the bus timetable is synced with the train timetable to make life even easier for local commuters.

If you’d like to buy, sell or let a property in Storrington, get in touch with your local team and discover the Henry Adams difference for yourself.

Read more