Facebook

Wick Farm, Finchdean, Waterlooville, PO8 0AZ

8 Bed │ 4 Bath │ 4 Rec

Guide Price £2,950,000

Save
Petersfield

Dean Kellaway

Branch Manager

Key features

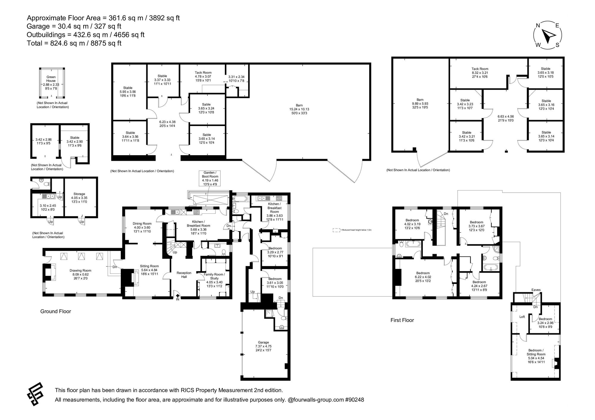
  • Unlisted, attractive brick and flint farmhouse
  • Self-contained annexe with 4 bedrooms
  • Landscaped gardens with topiary, borders & kitchen garden
  • Approx. 11 acres of paddocks and equestrian facilities
  • Over 100-acres of private grounds comprising; woodland, paddocks and gardens
  • Gated entrance, 2½ bay garage, multiple outbuildings
  • Peaceful setting within the South Downs National Park

Full description

Coast & Country by Henry Adams are delighted to represent the sellers of ‘Wick Farm’ a truly exceptional country home offering character, space and privacy in a peaceful rural setting. Wick Farm is un-listed and believed to date back to the 17th Century with some earlier origins which is a rare find. This impressive former farmhouse has been tastefully restored and interior-designed by the current owners to create a welcoming and elegant residence that blends period charm with modern living.

The main house offers spacious and versatile accommodation with four reception rooms including a spectacular 30ft vaulted family room with exposed beams. A stylish sitting room with open fireplace flows into a separate dining room and a bespoke Smallbone kitchen with granite worktops, integrated appliances and informal dining area. A dedicated playroom is ideal for young children, yet could double as a study space, while practical spaces such as a garden porch, utility area and boiler room add convenience.

Upstairs, four bedrooms and two bathrooms including a generous principal suite, all beautifully presented. In addition, a separate annexe, linked via the kitchen, provides flexible accommodation with a kitchenette, two bedrooms on the ground floor, one with en-suite shower whilst upstairs there is another two bedrooms – ideal for extended family or guests.

Outside

Set behind electric gates, the property sits within an enchanting valley, with the nearest neighbour half a mile away, and centrally positioned amongst landscaped gardens featuring formal topiary, herbaceous borders, a kitchen garden with raised beds, and a small orchard. Designed in the style of renowned garden designer John Brookes, the grounds include a pergola-covered terrace, stumpery, and a variety of tranquil seating areas. Additional outbuildings include a 2½ bay garage with electric doors, utility room, garden workshop and stable block.

 

Equestrian & Land

Wick Farm is ideally suited to equestrian use, with two stable yards offering a total of 9 loose boxes, all with water, power and vehicle access. The eastern yard has direct access to a bridleway, leading straight into the stunning South Downs countryside whilst the western yard sits in front of an all-weather sand school. There are approximately a total of 11 acres of paddocks with post and rail fencing, alongside a cedar-framed greenhouse, chicken house and hardstanding.

To the south, the property includes approximately 98-acres of private woodland, home to Wick Hangar – part of Hampshire’s distinctive chain of hangars. The woodland is professionally managed and offers not only ecological and recreational value, but potential tax benefits (professional advice recommended).

Location

Wick Farm enjoys a peaceful and private position on the edge of the charming village of Finchdean, nestled within the South Downs National Park – an Area of Outstanding Natural Beauty renowned for its rolling countryside, woodland walks and bridleways. Despite its idyllic rural setting, the property is well connected: the nearby villages of Rowlands Castle and Chalton offer local amenities, pubs and a village shop, while the historic market town of Petersfield and the city of Portsmouth are both within easy reach. There are excellent road and rail links via the A3 and mainline train station at Petersfield, providing regular services to London Waterloo in just over one hour. The area is also well served by a selection of highly regarded schools, both state and independent including Ditcham Park, Churchers College and Bedales making it an ideal location for families seeking country living with convenience.

What 3 Words

///superhero.lakeside.hidden

Situation

Tenure: Freehold

EPC Rating: F

Why live in Petersfield?

Petersfield often features on lists of the best places to live and work and was recently voted one of the top 10 most desirable market towns in England; The Guardian went so far as to describe Petersfield as ‘a commuter’s Nirvana, the urban equivalent of a foot rub and a G&T’.

We have a delightful choice of properties in the area, from beautiful character cottages, some dating back 500 years, to coach house style homes and large rural retreats to modern family homes. There’s also a thriving rental market here as the convenient location, attractive setting and abundant facilities make this an excellent base for those working in the wider area or simply wanting a perfect place to raise a family.

One of the major attractions for families is the choice of world-class schools – The Petersfield School is rated ‘outstanding’ by Ofsted and Bohunt School at nearby Liphook is one of the top performing state schools in the country. In the private sector, Churcher’s College and Bedales are located in the town, while Ditcham Park School is just to the southeast.

We have cosmopolitan range of shops, restaurants and cafés, with most major retailers represented. The Petersfield Market is held twice a week in The Square and a Hampshire Farmer’s Market is held on the first Sunday of every month. We also have many sports facilities, including two golf clubs, the Taro Leisure Centre and the Petersfield Open Air Swimming Pool, which, despite being open to the elements, is always heated to an average of 27 degrees.

But what really sets Petersfield apart is the beautiful countryside and its pretty villages. These include Selborne with its post office, primary school and choice of two pubs, Steep Village, which sits on wooded slopes known as The Hangers and was once home to Sir Alec Guinness, Buriton Village, which sits between Petersfield and the Queen Elizabeth Country Park and Rogate and Rake to the east within in the Rother Valley.

If you’d like to buy, sell or let a property in Petersfield, get in touch with your local team and discover the Henry Adams difference for yourself.

Read more