Facebook

Manor Farm Court, Selsey, PO20

1 Bed │ 1 Bath │ 1 Rec

Guide Price £155,000

Save
Selsey

Kevin Daymond

Partner

Key features

  • Retirement cottage in delightful complex overlooking communal gardens
  • Double Bedroom With Fitted Wardrobe
  • Modern Kitchen
  • Ground floor cloakroom
  • Double Glazing & Electric Heating
  • Parking Area For Residents & Visitors
  • Communal Lounge With Guest Suite (Pre-Bookable)
  • No onward chain
  • Age restricted to the over 60's

Full description

Set within a regarded retirement complex, this charming one-bedroom end terrace cottage offers an ideal setting for those seeking comfort and convenience in later life. The property is age-restricted to residents over 60, ensuring a peaceful and supportive community atmosphere. The modern kitchen is designed for practicality in a u shape for ease of use, while the ground floor cloakroom adds further convenience. The cottage benefits from double glazing and electric heating, ensuring year-round comfort. Residents have access to a communal lounge, perfect for socialising or relaxing, as well as a guest suite that can be pre-booked for visitors. With no onward chain, this property is ready for immediate occupation.

The cottage is set amidst beautifully maintained communal gardens, which surround the complex and create a tranquil, green environment. Residents can enjoy strolling along pathways bordered by well-tended flower beds and lawns, or spend time at the picturesque duck pond, complete with seating areas for quiet reflection. The communal gardens are designed for all residents to enjoy, offering both privacy and opportunities to connect with neighbours. Off-street parking is provided on a first come, first serve basis, ensuring convenience for both residents and their guests. This delightful outdoor setting perfectly complements the comfortable accommodation, making it an excellent choice for those seeking a relaxed and sociable retirement lifestyle.

Situation

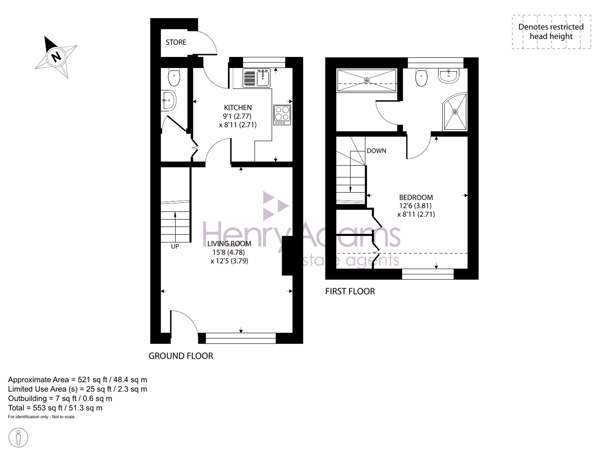
  • Living room 15' 7" x 12' 5" (4.74m x 3.79m)
  • Kitchen 9' 0" x 8' 11" (2.75m x 2.71m)
  • Inner lobby
  • Cloakroom
  • Landing
  • Double bedroom 12' 4" x 9' 2" (3.76m x 2.79m)
  • Shower Room

Council Tax Band: B

Tenure: Leasehold

Lease remaining: 85 years

EPC Rating: E

Why live in Selsey?

It may be classed as a town, but Selsey is still a seaside village at heart and, whether you’re looking for a dream home by the beach, a place to indulge your passion for watersports or a quiet retreat away from the hustle and bustle of life, Selsey has it all.

The old town in the south east quarter is known for its charming historic properties, including 17th century thatched houses while you’ll find many large and secluded homes offering stunning views of the water by the seafront. The north of Selsey has many 1970s style properties with more substantial, semi-rural homes set around them.

You’ll find a great selection of shops, pubs and restaurants right here on the High Street along with a strong sense of community, especially at Christmas when the Selsey Lights are a sight to behold. We have two local primary schools, Medmerry Primary and the Seal Primary Academy, and The Academy Selsey senior school in the town with more options in Chichester, including Chichester High School.

Selsey has a long-standing love of sport and is proud home to both Selsey Cricket Club and the Selsey Football and Social Club, as well as a bowls and tennis club, but you’ll find even more sporting activity by the water. If you like scuba diving or snorkelling we have some of the best water for diving in the UK, with more than 100 wrecks to explore just off the coast. If you’re keen to learn, the Mulberry Divers Centre on East Beach offers tuition to everyone from complete beginners to advanced divers. There’s swimming, sailing and windsurfing around the Selsey Bill headland or bike rides along the coastal cycle path or to the stunning beaches at Bracklesham Bay, East Wittering or West Wittering where you can feel the sand under your feet.

While Selsey offers the best of seaside living, it’s just less than 10 miles from the cultural heartland of Chichester and everything that the famous cathedral city has to offer, from the plentiful shops to the Festival Theatre. So you see, Selsey really does have it all.

If you’d like to buy, sell or let a property in Selsey, get in touch with your local team and discover the Henry Adams difference for yourself.

Read more