Facebook

Glenwood Road, Emsworth, PO10

4 Bed │ 1 Bath │ 2 Rec

Guide Price £525,000

Save
Emsworth

Joanna Coles

Branch Manager

Key features

  • Spacious Extended Semi-Detached Home
  • No Onward Chain
  • Four Bright Bedrooms
  • Light-Filled Interiors with Modern Finishes
  • West-Facing Private Garden
  • Ample Off-Road Parking

Full description

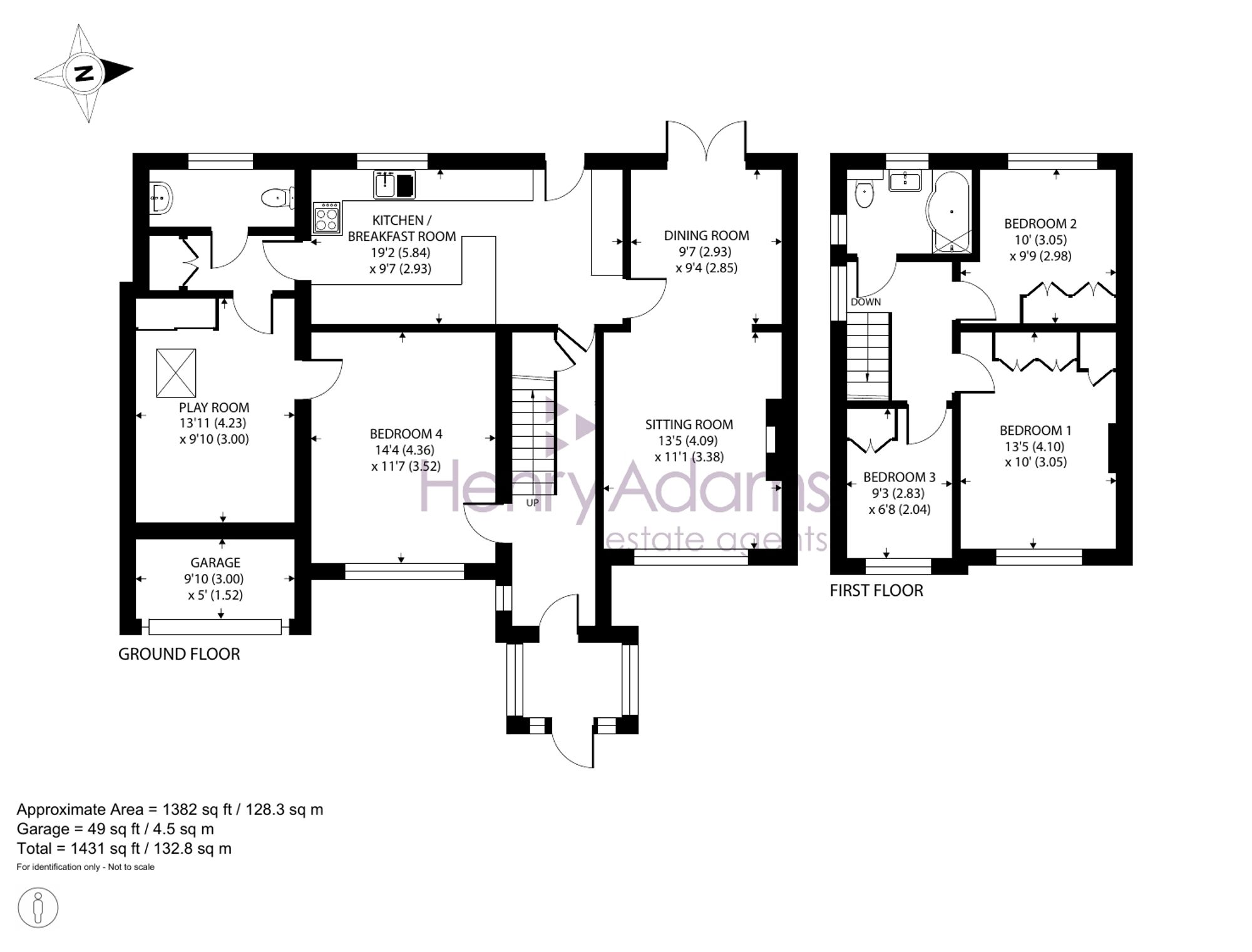
Nestled in a sought-after cul-de-sac, this beautifully extended semi-detached home combines style, space, and practicality. Located close to local shops, transport links, and highly regarded schools, it is an ideal family home for those seeking comfort, flexibility, and a welcoming village community.

Inside, a light-filled, contemporary interior with premium finishes and attention to detail creates a warm and inviting atmosphere. The entrance hall leads seamlessly into the open-plan sitting and dining area, flowing effortlessly from the kitchen. A log-burning stove forms a cosy focal point for family life, while the dining space accommodates gatherings with friends or family meals. Bespoke shutters frame the front window, and elegant herringbone flooring runs throughout the ground floor.

A versatile fourth bedroom could serve as a study, playroom, or home office, while a further ground-floor room, bathed in natural light from a skylight and complemented by fitted wardrobes, offers the perfect space for a home gym, creative studio, or flexible living area.

The heart of the home is the kitchen and breakfast area, a bright, sociable space with modern cabinetry, a breakfast bar, and room for casual dining. French doors lead directly to the west-facing garden, ideal for entertaining or relaxing on summer evenings.

Upstairs, three well-proportioned bedrooms provide calm, private retreats, each with built-in storage, complemented by a modern family bathroom with a bath, shower, and sleek vanity storage.

Outside, the west-facing garden is a peaceful escape, combining lawn, mature planting, and a decked seating area, while the front driveway provides ample off-road parking and a garage store completes the picture.

This home perfectly blends style, practicality, and versatility, offering a lifestyle of comfort, convenience, and modern family living in a friendly village setting.

Situation

The picturesque village of Southbourne sits just six miles east of the historic Cathedral city of Chichester, with its celebrated Festival Theatre and the iconic Goodwood Estate on the doorstep. The village offers a welcoming community with local shops, churches, a doctors’ surgery, and leisure facilities, alongside excellent primary and secondary schools. Excellent transport links include regular buses to Brighton and Portsmouth and a railway station connecting to London and the south coast. Outdoor enthusiasts will enjoy the nearby South Downs National Park, while the tranquil waters of Chichester Harbour are close at hand in Prinsted and Emsworth, offering scenic walks, boutique shops, fine dining, and a charming quay. Ideal for families and professionals seeking village life with easy access to culture, countryside, and coast.

Council Tax Band: D

Tenure: Freehold

EPC Rating: C

Why live in Emsworth?

The perfect blend of town, country and coastal life is what draws people from all walks of life to Emsworth, Havant and Rowlands Castle.

Moving to Emsworth 

Emsworth itself was once a fishing village, known for boatbuilding, ropemaking and oyster farming. Although many of the old ways are long gone, the town has retained much of its old-fashioned charm and added a modern twist. 

As one of the most successful estate agents in Emsworth, we love working in this fabulous seafront setting. Emsworth has lots of independent shops, a butcher, fishmonger, florist, delicatessen, supermarkets and nearby farm shops. We’re also spoilt by the number of popular pubs, bars and restaurants here where you can enjoy a chilled drink with friends as the sun goes down or fine dining with a waterside view. 

With its coastal setting, Emsworth is a paradise for sailors. Wonderful waterside properties line the harbour and there’s a choice of local sailing clubs, whether you’re just finding your sea legs or you’re a seasoned sailor. Nearby Hayling Island is the spiritual home of windsurfing. On weekends, you’ll often see them racing and dancing across the waves as you stroll the long, golden beaches. 

Emsworth is a great place for families too. You’ll find a great selection of good schools, including St. James Primary School, Emsworth Primary School, Warblington Secondary School and Bourne Community College

The many artists who live and work here throw open their studio doors to show their work at the annual Emsworth Art Trail. The Emsworth Horticultural Society holds the annual Emworth Show over the August Bank Holiday, which includes demonstrations of ancient crafts such as glass-blowing, wood turning, falconry and beekeeping. It’s a buzzing community with local business networks firing on all cylinders and its own magazine, The Ems, keeping everyone updated on local events. 

Moving to Rowlands Castle 

Just inland is the pretty village of Rowlands Castle, bordered by the spectacular scenery of the South Downs National Park. The village lies a few miles north of Chichester and Portsmouth, so there’s great access to all the amenities of city life from a countryside setting. Closer to home, Rowlands Castle itself has all you need for everyday living, from a convenience store, pharmacy, vets and a post office just off the traditional village green.

Henry Adams has been the trusted choice for estate agents in Rowlands Castle for over 30 years. In 2022, we extended our reach in the village when Emsworth Sales Branch Manager, Katie Cummings, seamlessly took the helm at Henry Adams in Emsworth and she continues to specialise in selling homes in Rowlands Castle. With her guidance, based on extensive knowledge of the local property market, you can confidently navigate buying or selling in this lovely village. 

Rowlands Castle has three friendly pubs and a cafe, a railway station with a direct line to London Waterloo, and easy access to the A3(M) interchange which links to Portsmouth, Petersfield and London. There are plenty of local opportunities for taking time to enjoy life, including Rowlands Castle Golf Club nearby, Rowlands Castle Tennis Club, and the great Stansted Estate for scenic walks and a sense of grandeur. 

Moving to Havant 

Nestled in the southeast corner of Hampshire is the historic market town of Havant. Situated close to the coast, Havant is bordered by the South Downs and the Solent. Langstone Bridge connects the mainland to Hayling Island with its long stretches of beaches and waterside walks. 

This area has great connections. The A27 runs along the southern fringes of Havant, linking to Chichester & Brighton to the east and to Portsmouth & Southampton to the west. Travelling northwards the A3(M) provides easy access to Horndean, Petersfield, Haslemere, Guildford and central London. 

Havant’s rich history dates back to Roman times and is mentioned in the Doomsday Book in 1086 when its population was about 100 people. Over the years, it’s grown through trade and agriculture, as well as the thriving glove-making trade in the 1700s. The Victorian-era train station now connects passengers directly to London with some journey times taking less than an hour and a half to the capital. The architecture reflects the evolution of Havant, with Georgian buildings lending character from earlier years.Today there are specialist retailers, high street shops, a twice-weekly market, restaurants, pubs, and Horizon Leisure Centre which has a 25m indoor pool and caters to a range of sporting interests. 

Warblington, Langstone, Denvilles and more 

Each of the areas surrounding Emsworth and Havant, such as Denvilles, Langstone, Bedhampton and Warblington, has its own character. As your local estate agent specialising in these locations, we operate centrally from our Emsworth office and use our local insights to help you find the perfect setting for your next home, whether you’re buying, selling, renting or letting. 

Warblington lies on the eastern fringes of Havant and is a sought-after residential area. Its train station links directly to London Victoria while Warblington School caters for the younger generation.Families and individuals can make the most of active leisure locally, such as The Avenue, a popular sports & social club, and the expanses of open countryside and coastline. 

Langstone lies on the upper reaches of Chichester Harbour and Langstone Harbour, which are Sites of Special Scientific Interest (SSSIs), the village has renowned pubs and a historic mill. Langstone Bridge offers a scenic passage across the water to Hayling Island, with its breathtaking coastal scenery. Attracting new and growing businesses to the area is Langstone Park, which is undergoing significant investment and development. 

Neighbouring Denvilles is a popular residential location where you’ll find attractive Victorian & Edwardian homes alongside more modern family homes from the 1960s to the present day. There’s a real sense of community, making this an ideal setting for individuals, couples and families. 

At Henry Adams Emsworth, we take pride in being the specialist estate agent serving this picturesque area. Our coverage extends to selling homes in Havant, Denvilles, Warblington, Langstone and many other local hamlets and villages, such as Southbourne, Rowlands Castle and, of course, Emsworth itself. 

If you’d like to buy, sell or let a property in any of these locations, get in touch with your local team and discover the Henry Adams difference for yourself.

Read more