Facebook

Tannery Close, Chichester, PO19

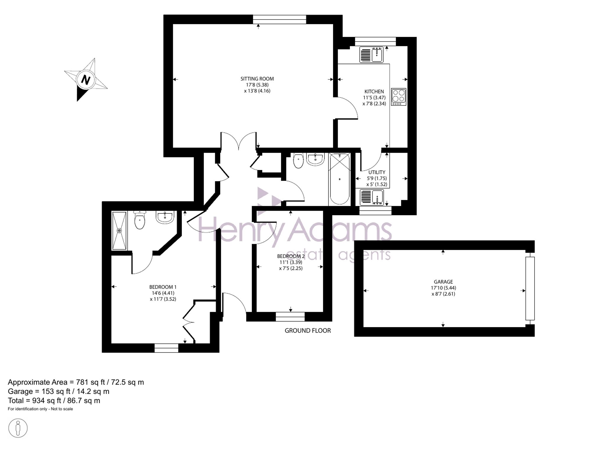
2 Bed │ 2 Bath │ 1 Rec

Guide Price £325,000

Save
Chichester

Richard Longhurst

Partner

Key features

  • Own private exterior front door
  • Ground floor apartment
  • South facing sitting room
  • Well fitted kitchen
  • En-suite principal bedroom
  • Bathroom
  • Garage and visitor parking
  • Communal garden

Full description

A most impressive purpose built two bedroom quality apartment situated just half a mile walk from the city centre.

A beautifully presented two-bedroom ground-floor apartment, built in 2002, forming part of a small and exclusive development of similar quality properties. The apartment enjoys a convenient location, just a level half a mile walk from the city centre shopping precinct.

The property benefits from its own private entrance directly from the well-maintained communal garden. Inside, a welcoming entrance hall leads through glazed double doors into a bright, south-facing sitting room. The kitchen is fitted with attractive shaker-style units and features integrated appliances including an electric oven, gas hob, fridge, freezer and dishwasher. A separate utility room incorporating washing machine and separate dryer.

There are two well-proportioned bedrooms, with the principal bedroom benefiting from an en-suite shower room, alongside a separate bathroom.

The development is approached via an attractive lychgate-style archway and is surrounded by neatly maintained communal gardens. Additional benefits include a garage and visitor parking.

An ideal main residence or a low-maintenance “lock-up-and-leave” holiday home.

Lease: 125 Years from 1st Jan 2002

Ground Rent: Not payable

Service Charge: £2,903.75 pa

Pets are not permitted

Chichester District Council - 25/26 Tax Band E £2,856.40 EPC-C

Directions - From the end of West Street proceed straight over the roundabout into Westgate, take the third turning on the left into Tannery Close. What3words - grows.maple.host

Situation

Tannery Close sits on the treelined, residential road of Westgate, under a mile from Chichester’s Market Cross and many city centre amenities. There is a doctors' surgery nearby along with a popular public house and attractions such as The Pallant House Gallery, renowned Festival Theatre along with the city’s mainline rail station are all within easy reach. To the north of Chichester lie the rolling foothills of The South Downs National Park and within the famous Goodwood Estate. To the south are the clam waters of Chichester Harbour, popular with sailors and at the mouth of the harbour are the beaches of West Wittering and East Head.

Council Tax Band: E

Tenure: Leasehold

Lease remaining: 102 years

EPC Rating: C

Why live in Chichester?

We consider ourselves very lucky to be working in a city that blends so many different architectural styles, from elegant Georgian buildings to contemporary new apartments and waterside properties that overlook the harbour.

In 2013, The Sunday Times listed Chichester as one of the top places to live in the UK with ‘something for everyone’ – and they weren’t wrong. Chichester is a cathedral city, a county town and home to some of the oldest churches and buildings in the country. There are many well-regarded public and state schools in the local area with further and higher education options available from Chichester College, West Dean College and the University of Chichester. Our great schools have always made Chichester very appealing for those looking for the perfect place to raise a family.

Our city centre is a shopper’s paradise and there are great places to eat and drink, from elegant restaurants to cosy cafés and pubs, all set along the city’s four main streets. Chichester Cathedral on West Street dominates the skyline and, on summer afternoons, its grounds are filled with local people enjoying picnics. In the evenings, the Cathedral plays a central part in the city’s nightlife by hosting classical music events.

Chichester has a number of public parks, the Chichester Tennis and Racquets Fitness Club and Westgate Leisure Centre, where you’ll find a large swimming pool and skate park and, if sailing is your thing, Chichester Harbour is a haven for you. There really is so much to do here you’ll be spoilt for choice; spend the day on one of the many local beaches, stretch your legs on the stunning South Downs or catch a show at the Festival Theatre before it moves to a permanent home in London’s West End.

If you’d like to buy, sell or let a property in Chichester, get in touch with your local team and discover the Henry Adams difference for yourself.

Read more