Facebook

Nyetimber Copse, West Chiltington, RH20

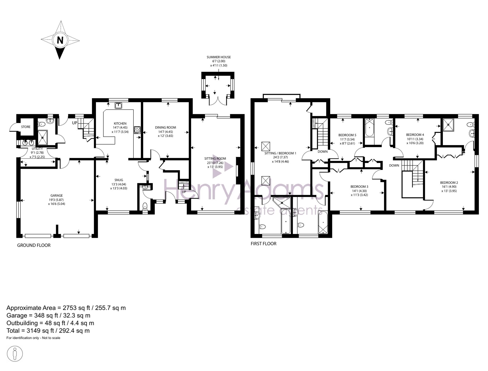
5 Bed │ 5 Bath │ 3 Rec

Guide Price £1,000,000

Save
Storrington

Christina Bearryman

Sales Associate

Key features

  • A well presented family home coming to the market for the first time since built
  • Five bedrooms, four bathrooms (three of which are en-suite)
  • Double aspect sitting room with patio doors to garden and terrace
  • Kitchen with integrated appliances and range of fitted cupboard
  • Utility room with external access
  • Integral double garage and ample driveway parking
  • South facing private garden with terrace. laid to lawn and with a swimming pool
  • Offered to the market with the advantage of no forward chain
  • Proceedable viewers only

Full description

This impressive five bedroom detached family home is offered to the market for the first time since its construction, providing an exceptional opportunity for discerning buyers seeking a spacious and well maintained residence. Located on private estate developed in the late 1970's early 80's with a number of individual properties with secluded plots in the sought after village of West Chiltington with a south facing garden and views to the South Downs.

The property features a thoughtfully designed layout, including a welcoming entrance hall that leads to a generous double aspect sitting room, which enjoys an abundance of natural light and benefits from patio doors that create a seamless flow to the garden and terrace, there is an open fire. The well appointed kitchen is equipped with a range of integrated appliances and ample fitted cupboards, opening to a family / breakfast room, located nearby is the dining room overlooking the rear garden. There is a practical utility room (with convenient external access) which provides additional storage and laundry facilities. There is a ground floor shower room located within easy access to the rear garden and the swimming pool.

The first floor accommodation comprises five well proportioned bedrooms, four bathrooms (three of which are en suite), ensuring comfort and privacy for all family members and guests. The accommodation is adaptable with a separate staircase from the rear lobby so could easily be changed for annexe accommodation if needed.

The integral double garage provides secure parking and additional storage, complemented by ample driveway parking for multiple vehicles. This home is further enhanced by a south facing private garden, thoughtfully laid to lawn and featuring a terrace and a swimming pool, perfect for relaxation and recreation. Presented has been well maintained throughout, and this property is offered with the significant advantage of no forward chain, facilitating a smooth and efficient purchase process. Proceedable viewers only are invited to arrange a viewing and discover all that this exceptional home has to offer.

Situation

West Chilitington is an attractive and thriving village and has so much on offer, a busy village hall, tennis club, croquet club, cricket club, a post office and local shop in the old village along with the historic St Mary's Church which dates back to the 12th Century and also the village junior school, along with another parade of shops offering a village store and post office, butchers, hairdressers and beauty salon. The surrounding villages of Pulborough and Storrington offer various supermarkets and a range of independent shops. There are numerous walks near the local vineyards and onto various watering holes or an abundance of public footpaths. Rail links to London Victoria and London Bridge and the South Coast are in the neighbouring village of Pulborough.
The area around provides a wide range of sporting and recreational facilities with West Sussex Golf Club and other golf clubs further afield at Cowdray Park and Goodwood. Of special note is the RSPB nature reserve at Wiggonholt Brooks. The area has rugby, bowls and cricket clubs, and there are leisure centres at Storrington and Billingshurst. There is gliding at nearby Parham, theatres at Chichester, Horsham and Worthing and sailing centres all along the coast.
  • Entrance Hall
  • Sitting Room
  • Dining Room
  • Kitchen
  • Snug / Family Room
  • Rear lobby
  • Utility Room
  • Bedroom 1
  • Bedroom 2
  • En-Suite Shower Room
  • Bedroom 3
  • En-Suite Bathroom
  • Bedroom 4
  • Bedrroom 5
  • Family Bathroom

Council Tax Band: G

Tenure: Freehold

EPC Rating: B

Why live in Storrington?

This picture-perfect village lies at the foot of the South Downs National Park, halfway along the South Downs Way. Properties here include bungalows, family homes and the famous Wells cottages that were individually designed by the architect Reginald Fairfax Wells in the 1920s to look and feel like 17th century buildings with thatched roofs, small windows and whitewashed exteriors.

Many of the homes in Storrington have wonderful views across rolling countryside and a conservation area just off the bustling high street ensures Storrington will remain as beautiful as it is today for generations to come.

There are lots of specialist shops in the town and convenient amenities such as the large recreational ground with its football and cricket pitches, the Chanctonbury Leisure Centre and an abundance of community groups offering classes in all sorts of interesting activities from ballroom dancing to photography. For a spot of culture, visit the Parham House and Gardens or the local Storrington and District Museum and for outdoor pursuits, take time to explore the natural beauty of the South Downs on foot, bike or horseback or, for a truly spectacular experience, take to the air in a glider.

Our local schools belong to a cluster group called STARS (Storrington Area Rural Schools) and, between them, offer a choice of paths from Reception through to Year 13. Steyning Grammar School is included in the list of STARS and is a popular choice as it’s non-selective and has its own Sixth Form.

Storrington is well connected too; the nearest train station is in the neighbouring village of Pulborough. The five-mile journey only takes 10 minutes by car or you can take a bus; the bus timetable is synced with the train timetable to make life even easier for local commuters.

If you’d like to buy, sell or let a property in Storrington, get in touch with your local team and discover the Henry Adams difference for yourself.

Read more