Facebook

Nursery Green, Loxwood, RH14

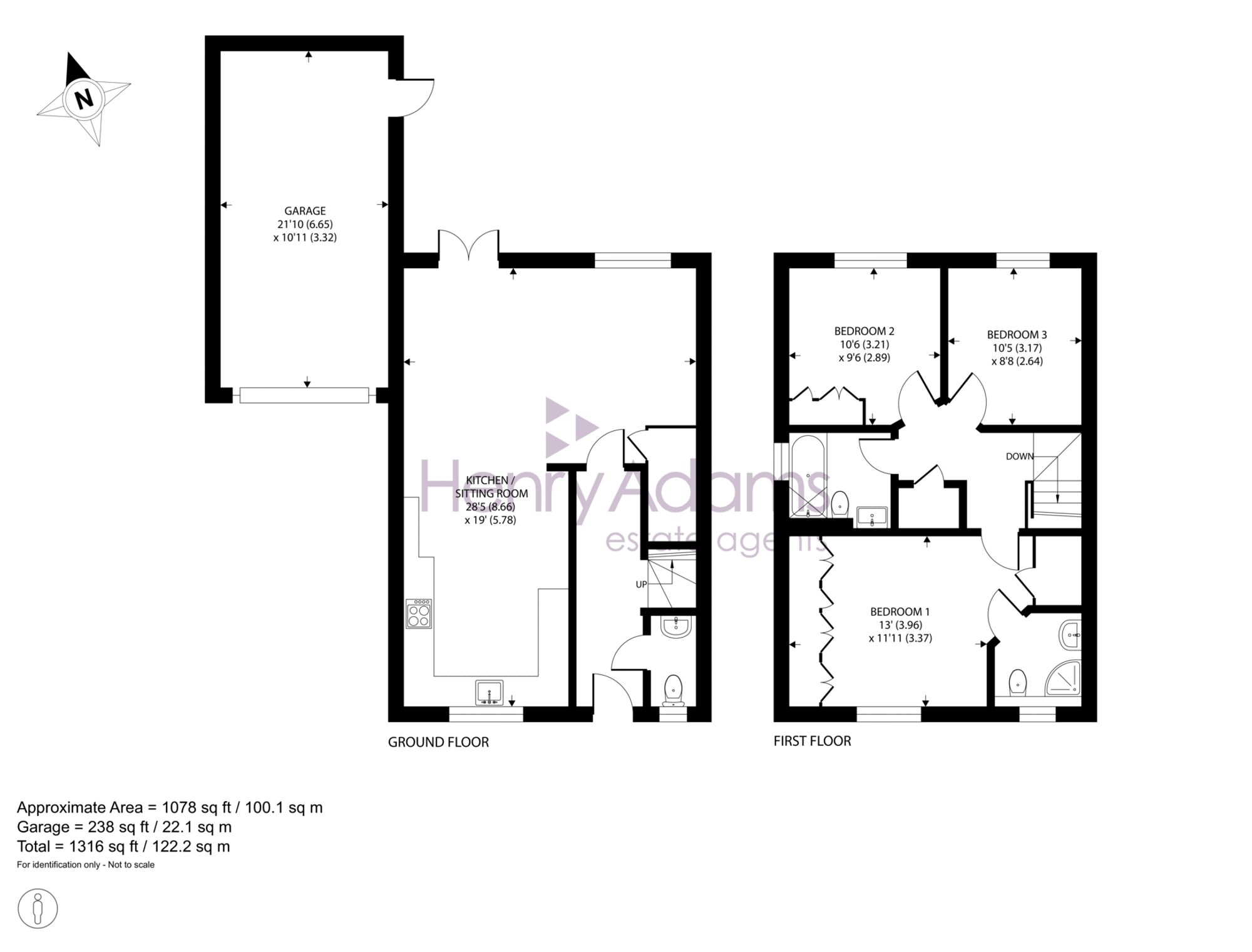
3 Bed │ 2 Bath │ 1 Rec

Offers Over £500,000

Save
Storrington

Ben Busby

Partner

Key features

  • A very well presented home with open plan living / kitchen on lovely private development
  • Kitchen with integrated Bosch appliances and a range of cupboards and space for dining table
  • Sitting room with French doors to garden, also with large under stairs storage cupboard
  • Ground floor cloakroom
  • Main bedroom with fitted wardrobes and en-suite shower room
  • Two further generous bedrooms and family bathroom
  • Good size garage with access from garden and electric up and over door
  • Driveway parking and additional visitors parking on development
  • Garden with patio area and size access

Full description

This beautifully presented three bedroom semi detached house is situated on a sought after development, offering modern open plan living and a high standard of finish throughout.

The spacious ground floor features a welcoming entrance hall, a convenient cloakroom and a stunning open plan living and kitchen area, perfect for both relaxing and entertaining. The contemporary kitchen is fitted with integrated Bosch appliances, a range of sleek cupboards and ample space for a dining table, making it ideal for family meals or hosting guests. The sitting room enjoys plenty of natural light and benefits from French doors, as well as a large under stairs storage cupboard for added practicality.

Upstairs, the main bedroom is a true retreat, complete with fitted wardrobes and a stylish en-suite shower room. Two further generously sized bedrooms provide flexible accommodation, whether for family, guests or a home office, and are served by a modern family bathroom.

Additional features include a good size garage with access from the garden and an electric up and over door, providing secure storage or parking. The property also benefits from driveway parking for several vehicles, with further visitors parking available within the development (ideal for hosting friends and family). With its contemporary design, high quality fixtures and thoughtfully planned layout, this home offers comfortable and versatile living in a desirable location. Early viewing is highly recommended to appreciate all that this exceptional property has to offer.

Situation

Loxwood is a popular village on the West Sussex/Surrey border. The village provides many amenities including a doctor’s surgery, pub, village school, butcher and delicatessen and hairdresser also a Budgens on the Nursery Green site. Loxwood supports a range of clubs, associations, community events and activities, including the annual Loxwood Beer Festival.
In addition to the amenities in the village, a wider selection is available at Cranleigh offering an excellent range of high street and independent shops. There are plenty of restaurants, coffee shops and country pubs, plus a vibrant weekly market.

More extensive amenities can be found in nearby Guildford, with its cobbled High Street and historic buildings offering an eclectic range of shops, an abundance of restaurants and entertainment including The Yvonne Arnaud Theatre, Electric Theatre and G Live venue, main line station into London Waterloo. With the Surrey Hills (an Area of Outstanding Natural Beauty) on the doorstep, this area is perfect for walking, cycling and riding. Horsham with shops, restaurants, theatre, cinema and main line station to London Victoria.
  • Entrance Hall
  • Cloakroom
  • Kitchen
  • Sitting Room
  • Landing
  • Bedroom 1
  • En-Suite Shower Room
  • Bedroom 2
  • Bedroom 3
  • Bathroom

Council Tax Band: E

Tenure: Freehold

EPC Rating: B

Why live in Storrington?

This picture-perfect village lies at the foot of the South Downs National Park, halfway along the South Downs Way. Properties here include bungalows, family homes and the famous Wells cottages that were individually designed by the architect Reginald Fairfax Wells in the 1920s to look and feel like 17th century buildings with thatched roofs, small windows and whitewashed exteriors.

Many of the homes in Storrington have wonderful views across rolling countryside and a conservation area just off the bustling high street ensures Storrington will remain as beautiful as it is today for generations to come.

There are lots of specialist shops in the town and convenient amenities such as the large recreational ground with its football and cricket pitches, the Chanctonbury Leisure Centre and an abundance of community groups offering classes in all sorts of interesting activities from ballroom dancing to photography. For a spot of culture, visit the Parham House and Gardens or the local Storrington and District Museum and for outdoor pursuits, take time to explore the natural beauty of the South Downs on foot, bike or horseback or, for a truly spectacular experience, take to the air in a glider.

Our local schools belong to a cluster group called STARS (Storrington Area Rural Schools) and, between them, offer a choice of paths from Reception through to Year 13. Steyning Grammar School is included in the list of STARS and is a popular choice as it’s non-selective and has its own Sixth Form.

Storrington is well connected too; the nearest train station is in the neighbouring village of Pulborough. The five-mile journey only takes 10 minutes by car or you can take a bus; the bus timetable is synced with the train timetable to make life even easier for local commuters.

If you’d like to buy, sell or let a property in Storrington, get in touch with your local team and discover the Henry Adams difference for yourself.

Read more