Facebook

Hillsboro Road, Bognor Regis, PO21

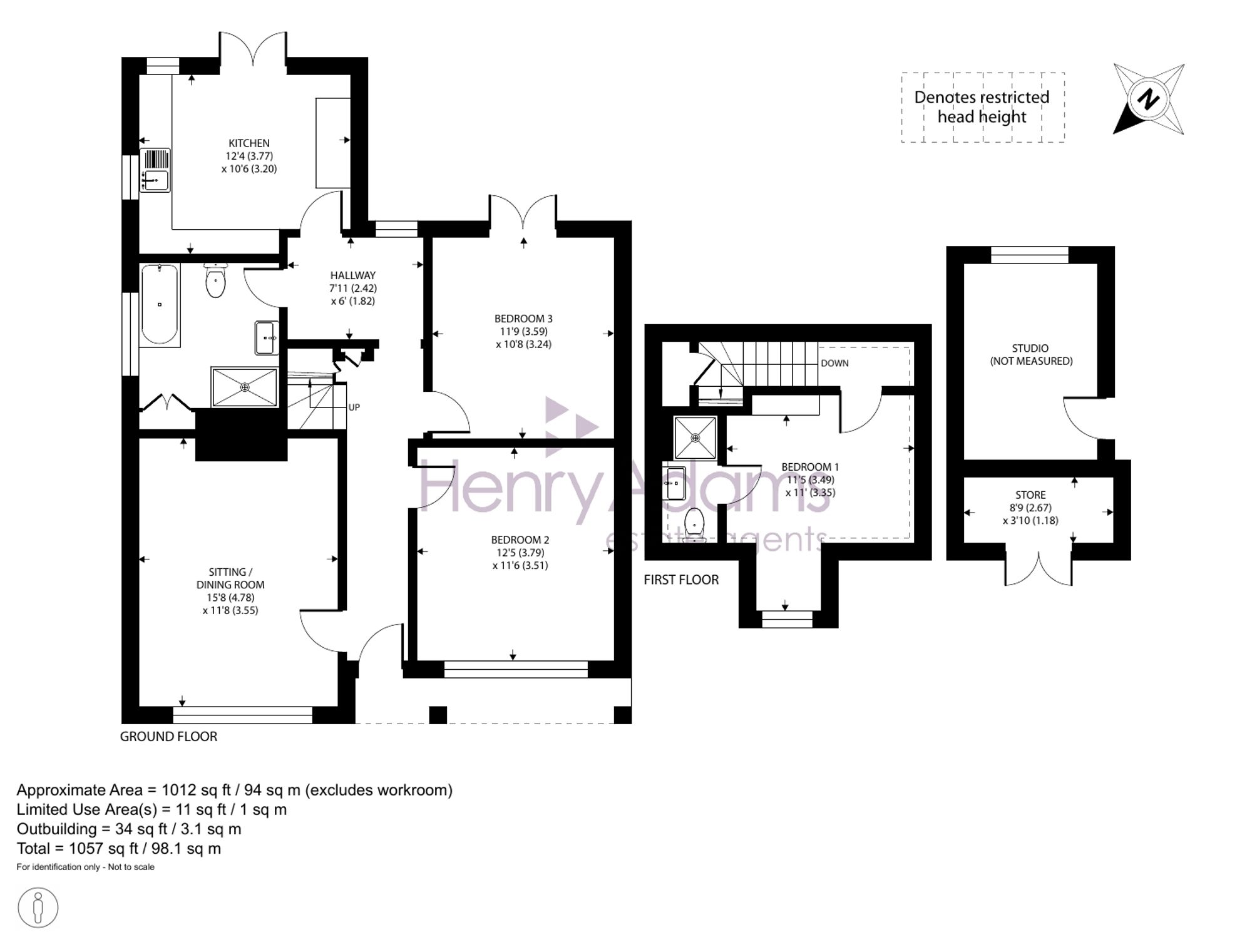
3 Bed │ 2 Bath │ 1 Rec

Guide Price £475,000

Save
Bognor Regis & Aldwick

Gail Chisham

Partner

Key features

  • Spacious Chalet Bungalow
  • Beautifully Renovated
  • Prime Bognor Regis Location
  • 3 Double Bedrooms
  • En-Suite
  • 4 Piece Suite Family Bathroom
  • Studio/Home Office in Garden
  • Driveway Parking
  • No Onward Chain

Full description

Situated on the ever popular Hillsboro Road in Bognor Regis, this superb three bedroom chalet bungalow has undergone extensive renovation and modernisation to an excellent standard throughout, creating a stylish and versatile home ready to move straight into.

The ground floor offers two well-proportioned double bedrooms alongside a spacious and bright sitting/dining room, ideal for both everyday living and entertaining. The modern fitted kitchen boasts ample cupboard space and generous room for white goods, finished with clean lines and contemporary styling.

Upstairs, the property benefits from a further bedroom complete with its own en-suite, making it an ideal principal suite, guest room, or private home office space.

Externally, the rear garden is mainly laid to lawn with patio areas perfect for outdoor seating and dining. The garden also leads to a converted studio, offering excellent flexibility for home working, hobbies or additional bedroom. To the front, the home boasts ample driveway parking.

This thoughtfully upgraded home combines modern comfort with flexible living accommodation, all set within a desirable residential area close to local amenities and transport links. Early viewing is highly recommended to appreciate the quality and space on offer.

Situation

Hillsboro Road is a character street and sits on the outskirts of the seaside town of Bognor Regis within walking distance to a local convenience store, the railway station with services to London and the South Coast plus the precinct shopping centre. Bognor Regis seafront is famous for its traditional promenade and pier.

What3Words ///minds.moves.excuse

Council Tax Band: D

Tenure: Freehold

EPC Rating: D

Why live in Bognor Regis & Aldwick?

The town of Bognor earned its seal of royal approval when King George V came here to convalesce in the 1920s. Fast forward and Bognor is now favoured as a commercial hub, with many large retailers moving to the area to take advantage of the wealth of commercial property available. There are also many new residential developments on the edge of the old town that blend well with the period properties and apartments on the seafront.

Bognor Regis is one of the sunniest places in the UK and our award-winning beaches are a great place to go to soak up the rays. The huge expanses of sand are bordered by a long esplanade that stretches for nearly three miles and provides the launch pad for the annual International Bognor Birdman competition.

We have a broad range of school options and plenty of recreational facilities for families. One of the best is Hotham Park in the centre of town, which has plenty to entertain the young ones, including a crazy golf course, a miniature railway and a boating lake. It also hosts several major events over the year, including Proms in the Park, a Country Fair and the South Downs Music Festival.

You’ll also find many places to eat and drink, especially along the esplanade and along the High Street, where fresh, locally caught fish feature on the menus. Local shopping is also good, with all the major chains you’d hope to find and some quirky independent shops too.

If you’d like to buy, sell or let a property in Bognor Regis & Aldwick, get in touch with your local team and discover the Henry Adams difference for yourself.

Read more