Facebook

Egmont Road, Easebourne, GU29

2 Bed │ 1 Bath │ 2 Rec

Offers in Region of £465,000

Save
Midhurst

Matt Shepherd

Partner

Key features

  • No Onward Chain
  • Potential to Extend (STPP)
  • Walking Distance to Town, Cowdray and Local Schools
  • Two Double Bedrooms / One Bathroom
  • Private Driveway and Single Garage
  • Level Rear Garden Laid to Lawn
  • In Need of Modernisation Throughout
  • Semi-Detached, Freehold House

Full description

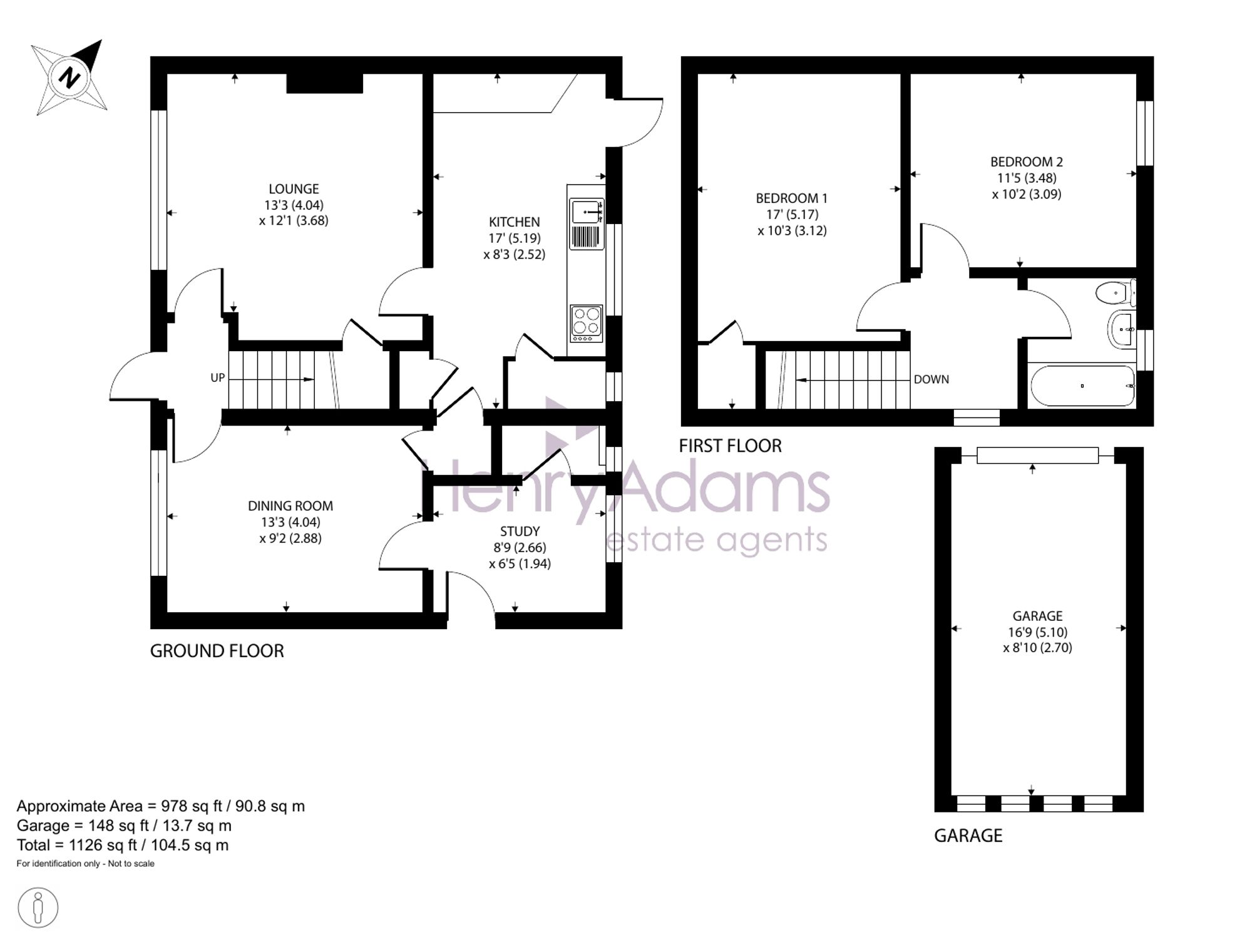
Situated in a highly sought-after location, this well-proportioned semi-detached home is offered to the market with no onward chain, presenting an exceptional opportunity for modernisation and extension (subject to the necessary planning consents). Positioned on a generous plot, the property boasts a private driveway and a single detached garage, making it ideal for families or downsizers seeking to create a long-term residence tailored to their needs.

Internally, the accommodation is both spacious and versatile. The ground floor comprises a bright and airy living room with a feature gas fireplace, a separate dining room - easily adaptable as a third bedroom if desired, and a well-sized kitchen/breakfast room with patio doors leading directly to the rear garden. Additionally, a further room offers flexible use as a study, utility/boot room, or potential shower room.

Upstairs, the property offers two generously sized double bedrooms and a well-appointed family bathroom, ensuring ample space and comfort for modern living.

The front and rear gardens are level and mainly laid to lawn, with mature borders and planting beds that offer both privacy and a pleasant outlook. The rear garden provides excellent potential for landscaping or extending the home, enhancing both its functionality and value.

Offering scope to update and personalise throughout, this property represents a great opportunity to invest in a well-located home with potential.

Situation

  • Sitting Room 13' 3" x 12' 1" (4.04m x 3.68m)
  • Kitchen / Dining Room 17' 0" x 8' 3" (5.19m x 2.52m)
  • Dining Room 13' 3" x 9' 5" (4.04m x 2.88m)
  • Study / Utility 8' 9" x 6' 4" (2.66m x 1.94m)
  • Bedroom 1 17' 0" x 10' 3" (5.17m x 3.12m)
  • Bathroom
  • Bedroom 2 11' 5" x 10' 2" (3.48m x 3.09m)

Council Tax Band: D

Tenure: Freehold

EPC Rating: C

Why live in Midhurst?

Midhurst lies on the River Rother, just 12 miles north of Chichester, and has the remarkable claim to fame of being the home of British polo thanks to the Cowdray Park Polo Club on the local Cowdray Estate, but there’s so much more to this pretty market town. It’s centuries old, boasting more than 100 listed buildings with a charming mix of medieval, Georgian, Victorian and Edwardian architecture that sits comfortably alongside more contemporary new homes.

The narrow lanes of Midhurst’s old town offer a fantastic variety of places to shop with an abundance of small independent boutiques all housed in ancient buildings. There are plenty of places to dine in and around the town centre, too, with options ranging from up-market restaurants specialising in local produce to high street favourites and charming tearooms where you can enjoy your favourite afternoon treat.

You’ll also find plenty to do here – when you’re not engaged in polo, fly-fishing or clay pigeon shooting on the Cowdray Estate, you could head over to the Cowdray Golf Club to enjoy some of the most scenic views in West Sussex and get involved with one of the many other clubs and societies that use it as a base. You’ll find a local camera club, the Midhurst Players, the Gardening Club and in August you could join in with the ten days of fun at the Midhurst Music, Arts and Dramatic Festival, ‘MADhurst’. There’s never a dull moment here!

As far as family life goes, we have many well-regarded schools in and around the area, all with strong Ofsted reports and excellent reputations, including Midhurst C of E Primary and Midhurst Rother College, which, between them, cater for pupils from age four to 18.

If you’d like to buy, sell or let a property in Midhurst, get in touch with your local team and discover the Henry Adams difference for yourself.

Read more