Facebook

Copper Hall Close, Rustington, BN16

2 Bed │ 1 Bath │ 1 Rec

Guide Price £170,000

Projected Gross Yield: 7.06% Estimated rent: £1,000.00PCM
Save
Storrington

Ben Busby

Partner

Key features

  • Two bedroom purpose built top floor apartment
  • Allocated parking
  • Short walk to Angmering station
  • 88 years remaining on the lease
  • Ground rent £50.00 per annum
  • Service charge £1154.56 per annum
  • Ideal investment or for a first time buyer
  • Potential rental income £1,000 per month
  • No forward chain

Full description

Presenting this two-bedroom purpose-built top-floor apartment, offering a prime opportunity for both investors and first-time buyers. Situated within a short walk of Angmering station, this property boasts convenient access to transportation links. Featuring an allocated parking space, this residence guarantees practicality and ease of living. With 88 years remaining on the lease and an annual ground rent of £50.00, this property affords future occupants peace of mind. The service charge, set at £1154.56 per annum (2024/25), ensures the upkeep of communal areas is efficiently maintained.

Exuding modernity and comfort, this apartment presents a lucrative investment opportunity with a potential rental income of £1,000 per month. With no forward chain, this property enables a seamless transition for prospective buyers. Don't miss this chance to secure a stylish home in a desirable location. Book your viewing now to appreciate the charm and convenience this property has to offer.

Situation

Rustington is an extremely popular seaside Village located between Brighton and Chichester. Offering a great range of popular restaurants, cafes and pubs. For shopping, Rustington offers a good choice of independent shops together with a Waitrose and several other well-known High Street brands including Iceland, WH Smith, Tesco and Sainsbury’s. The nearest railway station can be found at either Littlehampton or Angmering, with routes to London (Victoria) taking approximately 1 ½ hours and local bus services pass the surrounding area. Rustington is approximately 65 miles from London and 22 Miles from Brighton. The area is served with schools for all ages and local bus services pass the surrounding area.
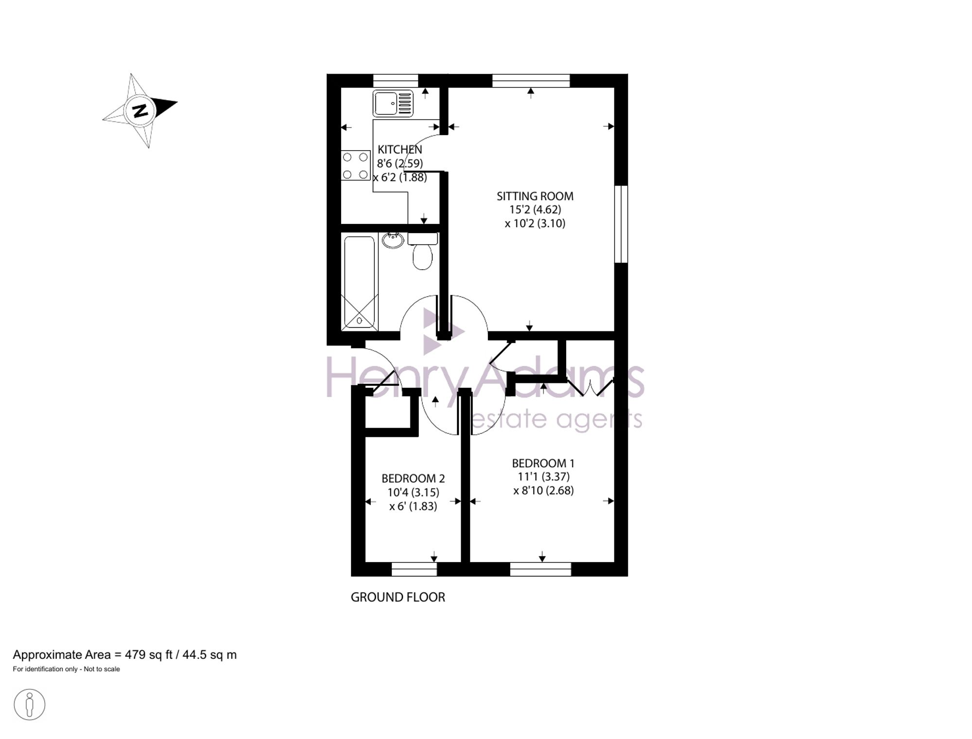
  • Entrance Hall
  • Sitting Room
  • Kitchen
  • Bedroom 1
  • Bedroom 2
  • Bathroom

Council Tax Band: A

Tenure: Leasehold

Lease remaining: 88 years

EPC Rating: C

Why live in Storrington?

This picture-perfect village lies at the foot of the South Downs National Park, halfway along the South Downs Way. Properties here include bungalows, family homes and the famous Wells cottages that were individually designed by the architect Reginald Fairfax Wells in the 1920s to look and feel like 17th century buildings with thatched roofs, small windows and whitewashed exteriors.

Many of the homes in Storrington have wonderful views across rolling countryside and a conservation area just off the bustling high street ensures Storrington will remain as beautiful as it is today for generations to come.

There are lots of specialist shops in the town and convenient amenities such as the large recreational ground with its football and cricket pitches, the Chanctonbury Leisure Centre and an abundance of community groups offering classes in all sorts of interesting activities from ballroom dancing to photography. For a spot of culture, visit the Parham House and Gardens or the local Storrington and District Museum and for outdoor pursuits, take time to explore the natural beauty of the South Downs on foot, bike or horseback or, for a truly spectacular experience, take to the air in a glider.

Our local schools belong to a cluster group called STARS (Storrington Area Rural Schools) and, between them, offer a choice of paths from Reception through to Year 13. Steyning Grammar School is included in the list of STARS and is a popular choice as it’s non-selective and has its own Sixth Form.

Storrington is well connected too; the nearest train station is in the neighbouring village of Pulborough. The five-mile journey only takes 10 minutes by car or you can take a bus; the bus timetable is synced with the train timetable to make life even easier for local commuters.

If you’d like to buy, sell or let a property in Storrington, get in touch with your local team and discover the Henry Adams difference for yourself.

Read more