Facebook

Berrall Way, Billingshurst, RH14

3 Bed │ 3 Bath │ 1 Rec

Guide Price £475,000

Projected Gross Yield: 4.12% Estimated rent: £1,700.00PCM
Save
Storrington

Ben Busby

Partner

Key features

  • A well presented three bedroom and three bathroom family home close to village centre and all amenities
  • Sitting / dining room with French doors opening to garden
  • Home office
  • Kitchen / breakfast room with integrated appliances and access to garden
  • Three bedrooms
  • Family bathroom and two en-suites
  • Delightful west facing courtyard style garden with access to garage and parking
  • Integrated Bose speakers in sitting room, kitchen and garden
  • On desirable Penfold Grange Estate
  • Billingshurst Primary Academy, The Weald and Billingshurst main line station all within walking distance

Full description

This well presented three bedroom, three bathroom semi detached house is ideally situated on the highly sought after Penfold Grange Estate, offering convenient access to the village centre and all local amenities. The property provides spacious and flexible accommodation, making it an excellent choice for families.

The welcoming entrance hall leads to a bright and airy sitting and dining room, featuring French doors that open directly to the garden, creating a perfect space for relaxation and entertaining. The modern kitchen and breakfast room is fitted with integrated appliances and also offers direct access to the garden, making it ideal for family meals and gatherings. A dedicated home office provides a quiet space for working from home or study. Upstairs, there are three well proportioned bedrooms, including a principal suite and a guest bedroom, both with en-suites, as well as a contemporary family bathroom. Integrated Bose speakers in the sitting room, kitchen and garden add a touch of luxury and enhance the home entertainment experience. The property is within walking distance of Billingshurst Primary Academy, The Weald School and Billingshurst main line station, making it a practical location for families and commuters alike.

The delightful west facing courtyard style garden is designed for low maintenance living and year round enjoyment. This private outdoor space offers a perfect setting for al fresco dining, relaxing or entertaining friends and family, with direct access to the garage and allocated parking. The garden also benefits from integrated Bose speakers, allowing you to enjoy music or podcasts while spending time outdoors. Mature planting and well maintained borders provide a pleasant outlook and a sense of seclusion. The garage offers useful storage space for bikes, garden equipment or additional belongings, while the parking area ensures convenience for residents and guests. The property’s position within the Penfold Grange Estate provides a peaceful setting, with attractive communal areas and easy access to open countryside for walks and outdoor activities.

Situation

Billingshurst is a thriving large village in the heart of West Sussex and surrounded by some fine countryside with a main line station to London (Victoria approximately 65 minutes) and the South Coast. Highly sought after schools in the locality from infant to sixth form with the Billingshurst Primary Academy School and then The Weald Community School. Leisure facilities with the Football Club, Cricket Club, tennis and bowls clubs, leisure centre with gym and swimming pool are all nearby. The centre, with its good range of shopping facilities including Sainsburys and Lidl, restaurants, pubs, library, post office, doctors' surgery, churches and bus services. The village provides good links with both Horsham and Gatwick International Airport. There is an abundance of history dating back to Roman times and many countryside walks on your doorstep.
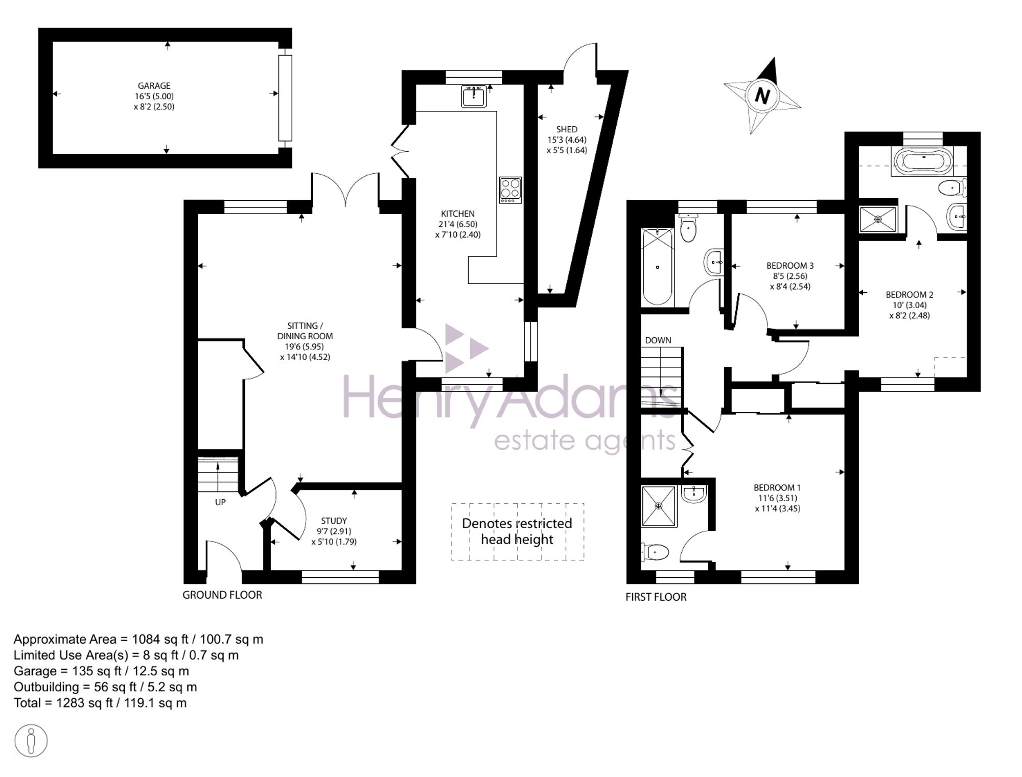
  • Entrance Hall
  • Sitting Room / Dining Room
  • Study
  • Kitchen
  • Landing
  • Bedroom 1
  • En-Suite
  • Bedroom 2
  • En-Suite Bathroom
  • Bedroom 3
  • Bathroom

Council Tax Band: E

Tenure: Freehold

EPC Rating: C

Why live in Storrington?

This picture-perfect village lies at the foot of the South Downs National Park, halfway along the South Downs Way. Properties here include bungalows, family homes and the famous Wells cottages that were individually designed by the architect Reginald Fairfax Wells in the 1920s to look and feel like 17th century buildings with thatched roofs, small windows and whitewashed exteriors.

Many of the homes in Storrington have wonderful views across rolling countryside and a conservation area just off the bustling high street ensures Storrington will remain as beautiful as it is today for generations to come.

There are lots of specialist shops in the town and convenient amenities such as the large recreational ground with its football and cricket pitches, the Chanctonbury Leisure Centre and an abundance of community groups offering classes in all sorts of interesting activities from ballroom dancing to photography. For a spot of culture, visit the Parham House and Gardens or the local Storrington and District Museum and for outdoor pursuits, take time to explore the natural beauty of the South Downs on foot, bike or horseback or, for a truly spectacular experience, take to the air in a glider.

Our local schools belong to a cluster group called STARS (Storrington Area Rural Schools) and, between them, offer a choice of paths from Reception through to Year 13. Steyning Grammar School is included in the list of STARS and is a popular choice as it’s non-selective and has its own Sixth Form.

Storrington is well connected too; the nearest train station is in the neighbouring village of Pulborough. The five-mile journey only takes 10 minutes by car or you can take a bus; the bus timetable is synced with the train timetable to make life even easier for local commuters.

If you’d like to buy, sell or let a property in Storrington, get in touch with your local team and discover the Henry Adams difference for yourself.

Read more