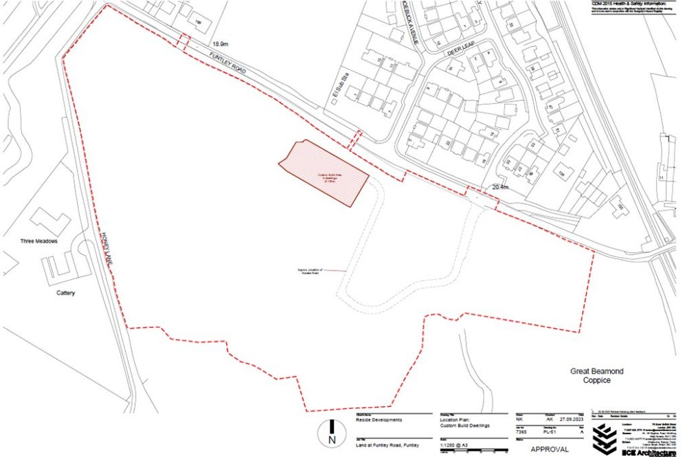
6 x Custom Build plots available for detached or semi-detached units, each measuring circa 1044 sq ft within wider development site. Please see brochure for full details.
Offers invited on behalf of West Sussex County Council. Residential development opportunity with full planning permission for 34 dwellings under reference...
Prime Residential Development Site with Outline Planning Permission for 226 units with all matters reserved other than access. Site area 10.08 hectares (25 acres) -...
Freehold site just outside Chichester with direct access onto the A259. Price and method of sale upon application. Informal tender with bids required no later than...