01730 817370

Mill Lane, Stedham, GU29, Offers in Region of £720,000
2 Bed │ 2 Bath │ 2 Rec

Mill Lane, Stedham, GU29

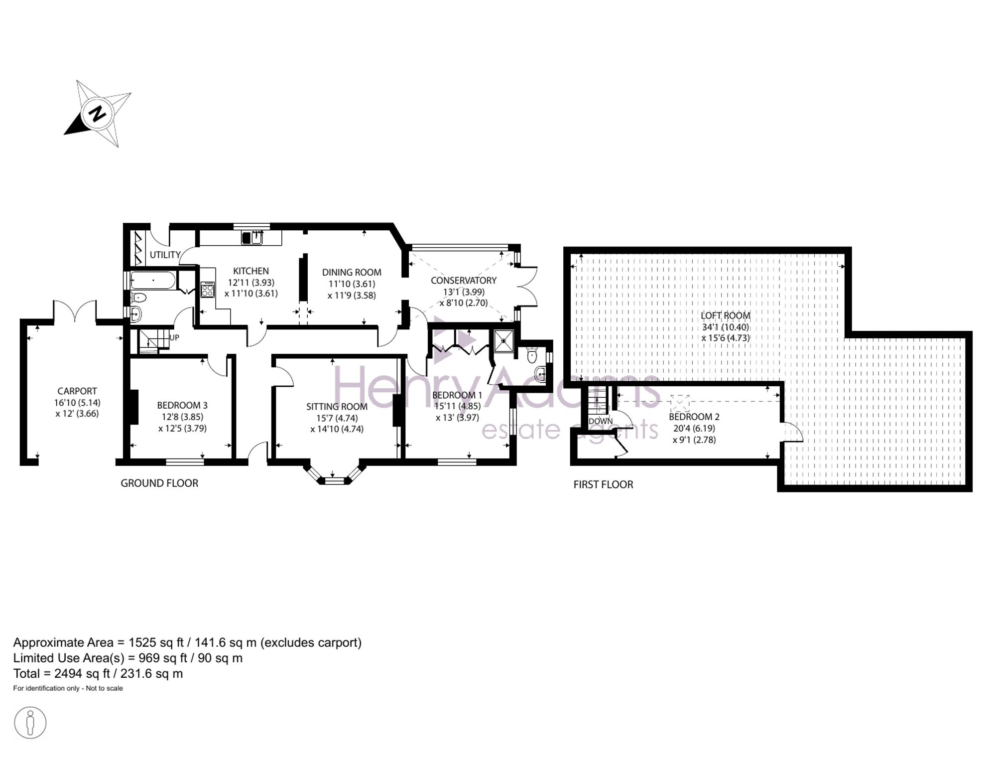
Floorplan

Mill Lane, Stedham, GU29 floorplans

Description

Location