01730 817370

Bepton, Midhurst, GU29, Offers in Region of £1,400,000
5 Bed │ 2 Bath │ 3 Rec

Bepton, Midhurst, GU29

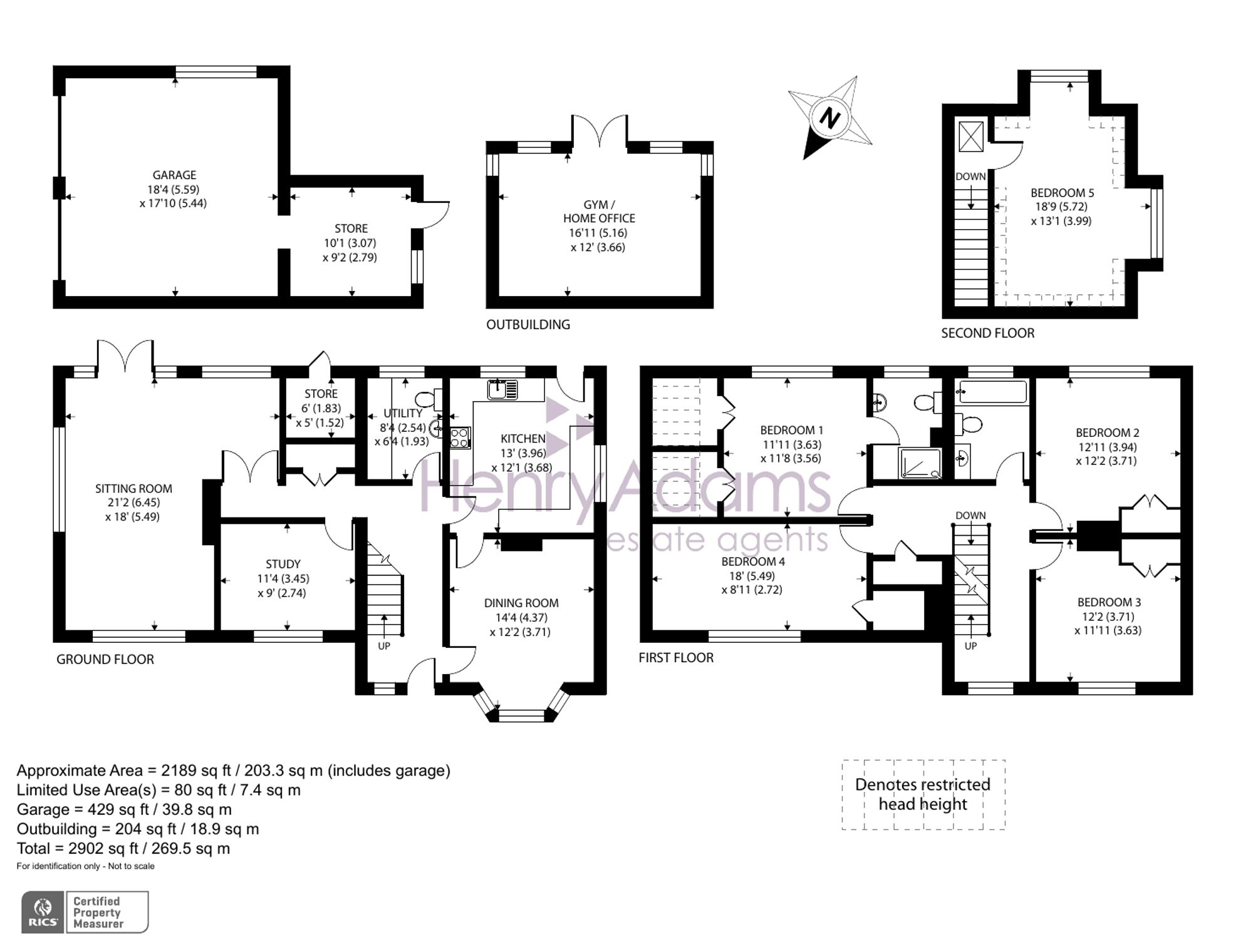
Floorplan

Bepton, Midhurst, GU29 floorplans

Description

Location